
1/1
Γραφείο προς Ενοικίαση
€ 5/μήνα
Τελευταία ενημέρωση: 17/03/2026
Περιγραφή
κωδικός: 8617 N
NAJAM HALE – VIŠENAMJENSKI POSLOVNI PROSTOR
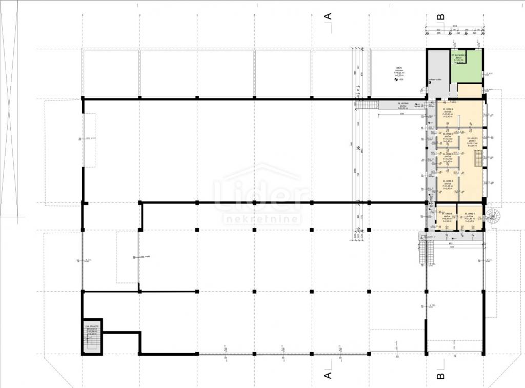
Iznajmljuje se hala ukupne površine 2194 m² po cijeni od 5 € / m² (najam kompletne hale).
Postoji mogućnost najma hale kao 4 zasebne cjeline, prema potrebama najmoprimca. Cijena u tom slučaju po dogovoru.
Prostor je idealan za:
suhu marinu
proizvodnju i servis brodica
skladišnu ili drugu proizvodnu djelatnost
Hala pruža fleksibilnost organizacije prostora te je pogodna za različite poslovne namjene.
Za više informacija i dogovor oko razgleda, slobodno se javite.
ID CODE: 8617 N
Lider nekretnine Kvarner
Ovlašteni posrednik
Mob: +385 91 9575 662
Tel: +385 51 211 800
E-mail: nekretnine-kvarner@lider.hr
www.lider.hr
Χαρακτηριστικά
- Συμβόλαιο
- Ενοικίαση
- Τύπος
- Γραφείο
- Εμβαδόν
- 2.194 m²
- Σύνολο ορόφων
- 1
Πληροφορίες τιμής
- Τιμή
- € 5/μήνα
- Τιμή ανά m²
- 0 €/m²
Λεπτομέρειες κόστους
- Εγγύηση
- Δεν αναφέρεται
Ενεργειακή απόδοση
Ενεργειακή πιστοποίηση
Χωρίς ταξινόμηση
Σχέδιο ακινήτου
Πρόσθετες επιλογές