
1/1
Μονοκατοικία Brodsko Vinogorje, Slavonski Brod, Slavonski Brod
€ 75.000
Τελευταία ενημέρωση: 03/03/2026
Περιγραφή
κωδικός: 1156
ID CODE: 1156
Edi Bračun
Agent s licencom
Mob: +385 95 8939 386
Tel: 035 448 862
E-mail: edi@trgo-invest-nekretnine.hr
www.trgo-invest-nekretnine.hr
Χαρακτηριστικά
- Τύπος
- Μονοκατοικία
- Συμβόλαιο
- Πώληση
- Ανελκυστήρας
- Όχι
- Εμβαδόν
- 160 m²
- Δωμάτια
- 5+
- Υπνοδωμάτια
- 0
- Μπαλκόνι
- Όχι
- Βεράντα
- Όχι
- Γκαράζ, χώροι στάθμευσης
- 1 σε πάρκινγκ/κλειστό πάρκινγκ, 2 εξωτερικό
Πληροφορίες τιμής
- Τιμή
- € 75.000
- Τιμή ανά m²
- 469 €/m²
Ενεργειακή απόδοση
Έτος κατασκευής
1982Ενεργειακή πιστοποίηση
Χωρίς ταξινόμηση
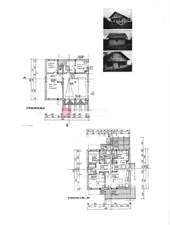
Σχέδιο ακινήτου
Πρόσθετες επιλογές