Τριάρι Tribunj, Tribunj

€ 446.426
3
103 m²
2
ΙΣ
Όχι
Βεράντα

Σημείωση

Τελευταία ενημέρωση: 09/03/2026
Περιγραφή

This description has been translated automatically and may not be accurate

κωδικός: 890-S1

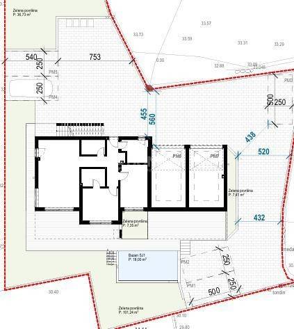
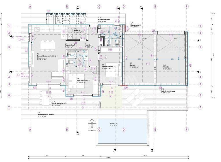
A modern apartment on the ground floor of a newly built residential building with a total of three residential units is for sale in Tribunj. The apartment is functionally designed and consists of an entrance hall of 9.38 m², a spacious living room with kitchen and dining area of 28.78 m², two bedrooms of 12.08 m² and 12.02 m², two bathrooms of 4.24 m² and 5.31 m², and a laundry room of 3.65 m². The living area opens onto a covered terrace of 19.35 m² and an additional covered terrace of 22.47 m², while in front there is also an uncovered terrace of 21.80 m², creating an ideal space for outdoor living. A special value of the property is the swimming pool of 18 m² and the private garden that provides a high level of privacy and comfort. The apartment also includes two outdoor parking spaces.

The building is designed as a modern multi-family property with three residential units distributed over the ground floor and two upper floors. It features contemporary architecture, spacious terraces and a carefully designed outdoor area with a pool and green spaces. Each residential unit has its own parking spaces, and the project is designed to provide residents with maximum privacy and comfort.

Tribunj is one of the most beautiful places on the Šibenik Riviera, known for its authentic Dalmatian atmosphere, picturesque old town and crystal-clear sea. The proximity of Vodice and Šibenik as well as the national parks Krka and Kornati makes this location extremely attractive for living, vacationing or investing in property by the sea.

ID CODE: 890-S1

Bonum nekretnine
Mob: 095 750 5763
Tel: 022 644 555
E-mail: info@bonum.com.hr
www.bonum-nekretnine.com
Χαρακτηριστικά
Τύπος
Διαμέρισμα
Συμβόλαιο
Πώληση
Όροφος
Ισόγειο
Σύνολο ορόφων
2
Ανελκυστήρας
Όχι
Εμβαδόν
103 m²
Δωμάτια
3
Υπνοδωμάτια
2
Μπάνια
2
Μπαλκόνι
Όχι
Βεράντα
Ναι
Γκαράζ, χώροι στάθμευσης
2 εξωτερικό
Θέρμανση
Αυτόνομη, θέρμανση αέρος
Κλιματισμός
Αυτόνομη, κρύο/ζέστη
Άλλα χαρακτηριστικά
  • Πόρτα ασφαλείας
Πληροφορίες τιμής
Τιμή
€ 446.426
Τιμή ανά m²
4.334 €/m²
Ενεργειακή απόδοση
  • Θέρμανση

    Αυτόνομη, θέρμανση αέρος
  • Κλιματιστικό μηχάνημα

    Αυτόνομη, κρύο/ζέστη
  • Ενεργειακή πιστοποίηση

    Χωρίς ταξινόμηση
Ανακαλύψτε κάθε γωνιά του ακινήτου
+8
Πρόσθετες επιλογές

Επικοινώνησε με τον αγγελιοδότη

Ή