Τεσσάρι Tribunj, Tribunj

€ 716.595
4
130 m²
2
1
Όχι
Βεράντα

Σημείωση

Τελευταία ενημέρωση: 09/03/2026
Περιγραφή

This description has been translated automatically and may not be accurate

κωδικός: 890-S3

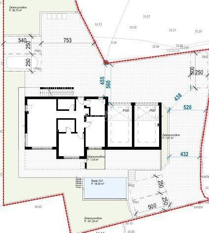
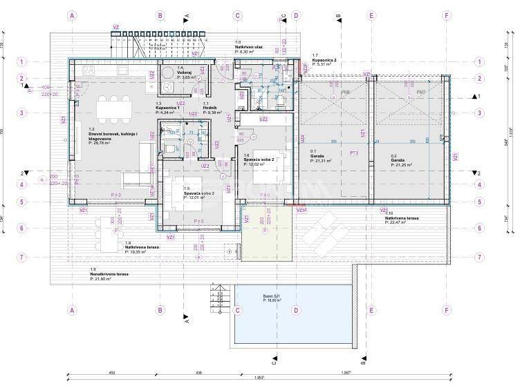
In Tribunj, a spacious duplex apartment is for sale, located on the first and second floor of a modern new residential building with a total of three residential units. The first level of the apartment consists of an entrance hall of 8.37 m², two bedrooms of 12.22 m² and 12.00 m², and a third bedroom of 7.74 m². On the same level there are also two bathrooms of 5.00 m² and 4.28 m², a storage room and a covered terrace of 12.17 m².

On the second level there is a spacious living room with kitchen and dining area of 40.16 m², an additional toilet of 2.79 m² and a large covered terrace of 29.01 m² which offers the perfect space for enjoying the outdoors. The apartment includes a garage on the ground floor of the building and one outdoor parking space.

The building is designed as a modern villa with three residential units distributed over the ground floor and two upper floors. Contemporary architecture, spacious terraces and high-quality construction create a harmonious combination of luxury and functionality, while the landscaped courtyard with a swimming pool and green areas further enhances the quality of living.

Tribunj is one of the most desirable places on the Šibenik Riviera, known for its authentic Dalmatian atmosphere, marina and crystal-clear sea. The proximity of Vodice and Šibenik as well as the national parks Krka and Kornati makes this location ideal for living, vacationing or investing in real estate on the Adriatic.

ID CODE: 890-S3

Bonum nekretnine
Mob: 095 750 5763
Tel: 022 644 555
E-mail: info@bonum.com.hr
www.bonum-nekretnine.com
Χαρακτηριστικά
Τύπος
Διαμέρισμα
Συμβόλαιο
Πώληση
Όροφος
1 όροφος
Σύνολο ορόφων
2
Ανελκυστήρας
Όχι
Εμβαδόν
130 m²
Δωμάτια
4
Υπνοδωμάτια
3
Μπάνια
2
Μπαλκόνι
Όχι
Βεράντα
Ναι
Γκαράζ, χώροι στάθμευσης
1 σε πάρκινγκ/κλειστό πάρκινγκ, 1 εξωτερικό
Θέρμανση
Αυτόνομη, θέρμανση αέρος
Κλιματισμός
Αυτόνομη, κρύο/ζέστη
Πληροφορίες τιμής
Τιμή
€ 716.595
Τιμή ανά m²
5.512 €/m²
Ενεργειακή απόδοση
  • Έτος κατασκευής

    2026
  • Θέρμανση

    Αυτόνομη, θέρμανση αέρος
  • Κλιματιστικό μηχάνημα

    Αυτόνομη, κρύο/ζέστη
  • Ενεργειακή πιστοποίηση

    Χωρίς ταξινόμηση
Ανακαλύψτε κάθε γωνιά του ακινήτου
+8
Πρόσθετες επιλογές

Επικοινώνησε με τον αγγελιοδότη

Ή