1/33


Τριάρι Šijana, Pula, Monvidal - Monte Ghiro, Πούλα
€ 199.000
Τελευταία ενημέρωση: 29/03/2026
Περιγραφή
κωδικός: SH112
ID CODE: SH112
Claudio Mezzalira
Licencirani agent za nekretnine
Mob: +385 99 285 7323
Tel: +385 99 285 7323
E-mail: claudio@sevenhills.hr
www.sevenhills.hr
Χαρακτηριστικά
- Τύπος
- Διαμέρισμα
- Συμβόλαιο
- Πώληση
- Όροφος
- 2 όροφος
- Σύνολο ορόφων
- 2
- Ανελκυστήρας
- Όχι
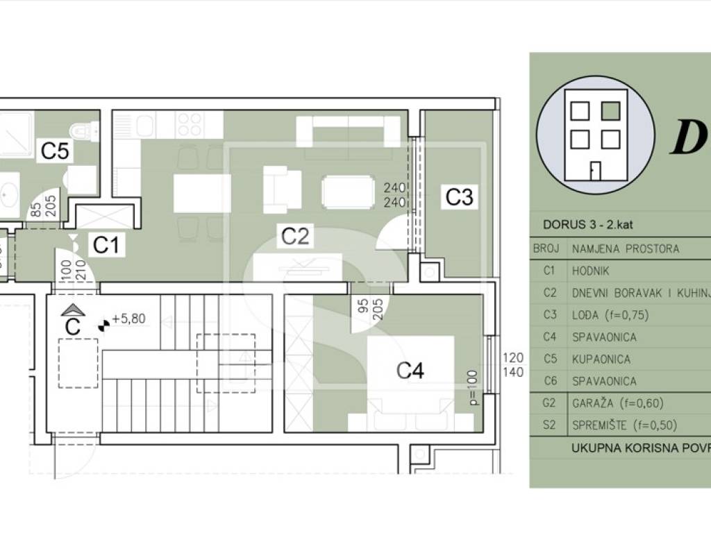
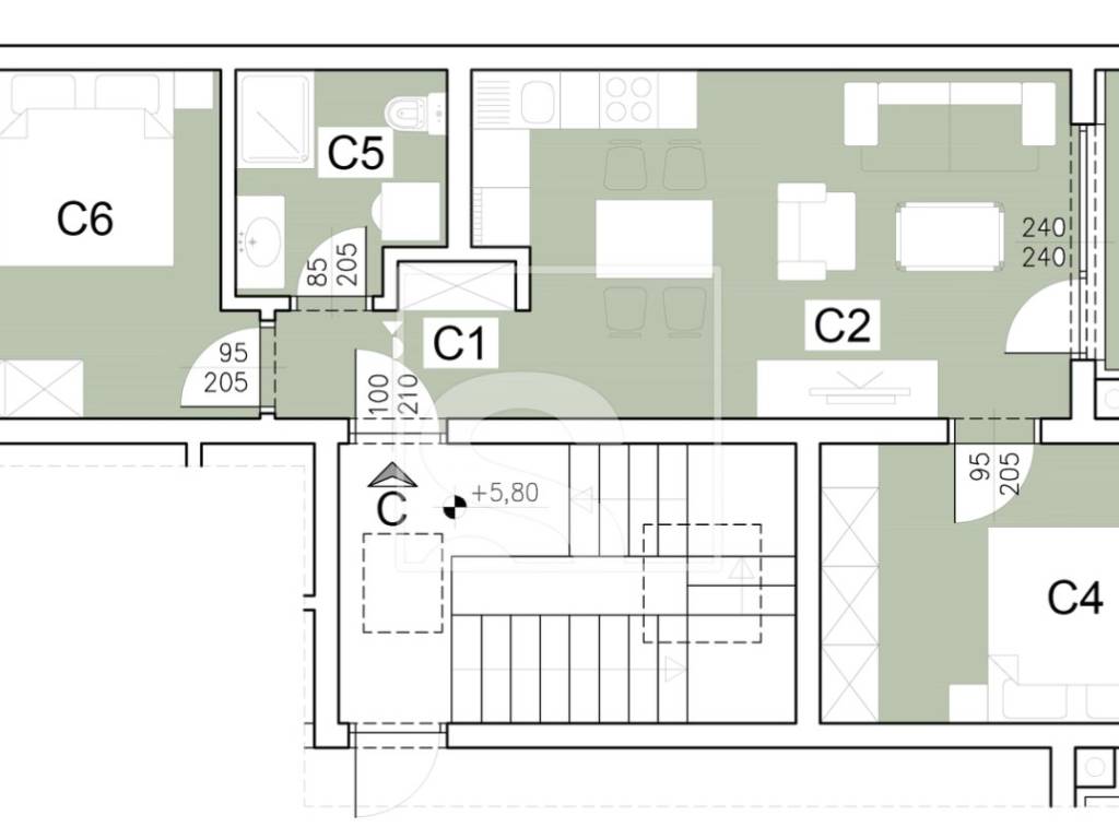
- Εμβαδόν
- 76 m²
- Δωμάτια
- 3
- Υπνοδωμάτια
- 2
- Μπαλκόνι
- Όχι
- Βεράντα
- Όχι
- Γκαράζ, χώροι στάθμευσης
- 1 σε πάρκινγκ/κλειστό πάρκινγκ
- Κλιματισμός
- Αυτόνομη, κρύο/ζέστη
Άλλα χαρακτηριστικά
Πληροφορίες τιμής
- Τιμή
- € 199.000
- Τιμή ανά m²
- 2.618 €/m²
Ενεργειακή απόδοση
Έτος κατασκευής
2026Κλιματιστικό μηχάνημα
Αυτόνομη, κρύο/ζέστηΕνεργειακή πιστοποίηση
Χωρίς ταξινόμηση
Ανακαλύψτε κάθε γωνιά του ακινήτου
Πρόσθετες επιλογές