Τριάρι Čiovo, Trogir, Trogir

€ 260.000
3
60 m²
1
1
Όχι
Βεράντα

Σημείωση

Τελευταία ενημέρωση: 10/03/2026
Περιγραφή

This description has been translated automatically and may not be accurate

κωδικός: 893-S4

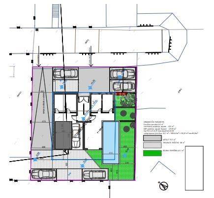
On the first floor of a modern residential building there is a functional two-bedroom apartment with a total area of 60.1 m². The apartment consists of an entrance hallway, a bathroom with toilet, two bedrooms, and a spacious living room with an open-plan kitchen and dining area. From the living room there is access to a pleasant terrace of 10.35 m², providing an ideal space for relaxation and enjoying the outdoors. The layout is practical and well organized, with plenty of natural light.

The building is designed as a modern residential villa with a high construction standard and carefully planned shared amenities. Residents have access to private parking spaces, landscaped green areas, and shared facilities such as a swimming pool, summer kitchen, fitness area, sauna, and social spaces. The surroundings of the building are beautifully landscaped and common areas are covered by video surveillance for additional security.

The property is located on the island of Čiovo in a quiet and attractive area near Trogir. The location offers an excellent combination of natural surroundings and urban accessibility, with quick access to the historic center of Trogir, Split and Split International Airport. Numerous beaches, bays and a marina are located nearby, making this location highly attractive for both living and investment.

ID CODE: 893-S4

Bonum nekretnine
Mob: 095 750 5763
Tel: 022 644 555
E-mail: info@bonum.com.hr
www.bonum-nekretnine.com
Χαρακτηριστικά
Τύπος
Διαμέρισμα
Συμβόλαιο
Πώληση
Όροφος
1 όροφος
Σύνολο ορόφων
2
Ανελκυστήρας
Όχι
Εμβαδόν
60 m²
Δωμάτια
3
Υπνοδωμάτια
2
Μπάνια
1
Μπαλκόνι
Όχι
Βεράντα
Ναι
Γκαράζ, χώροι στάθμευσης
1 εξωτερικό
Θέρμανση
Αυτόνομη, θέρμανση αέρος
Κλιματισμός
Αυτόνομη, κρύο/ζέστη
Πληροφορίες τιμής
Τιμή
€ 260.000
Τιμή ανά m²
4.333 €/m²
Ενεργειακή απόδοση
  • Έτος κατασκευής

    2026
  • Θέρμανση

    Αυτόνομη, θέρμανση αέρος
  • Κλιματιστικό μηχάνημα

    Αυτόνομη, κρύο/ζέστη
  • Ενεργειακή πιστοποίηση

    Χωρίς ταξινόμηση
Ανακαλύψτε κάθε γωνιά του ακινήτου
+7
Πρόσθετες επιλογές

Επικοινώνησε με τον αγγελιοδότη

Ή