1/8


Αγροτεμάχιο προς Πώληση
Πούλα€ 230.000
Τελευταία ενημέρωση: 18/03/2026
Περιγραφή
κωδικός: 3514
PRODAJE SE
prekrasno građevinsko zemljište sa svim priključcima na parceli (struja, voda i kanalizacija).
Parcela je ograđena betonskim zidom.
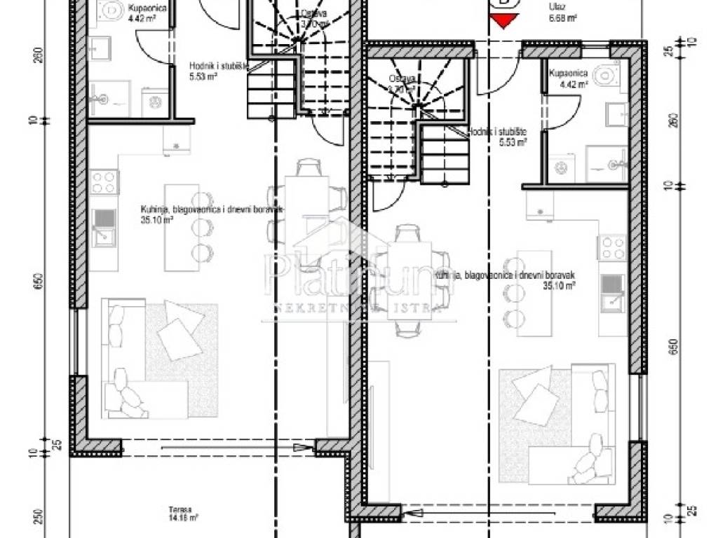
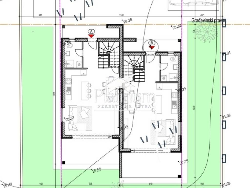
Plaćen projekat za gradnju dvojne kuće svaka sa 3 sobe i površine 115m2. Projekat je predan na građevinsku dozvolu.
MOGUĆNOST GRADNJE SA NAŠOM PARTNERSKOM GRAĐEVINSKOM FIRMOM.
PRILIKA.
ČISTO VLASNIŠTVO
info na 00385 91 1608456
Χαρακτηριστικά
- Συμβόλαιο
- Πώληση
- Τύπος
- Αγροτεμάχιο
- Εμβαδόν
- 500 m²
Πληροφορίες τιμής
- Τιμή
- € 230.000
- Τιμή ανά m²
- 460 €/m²
Ανακαλύψτε κάθε γωνιά του ακινήτου
Πρόσθετες επιλογές