Δυάρι πρώτος όροφος, Vodice

€ 215.000
2
67 m²
1
1
Όχι

Σημείωση

Τελευταία ενημέρωση: 19/03/2026
Περιγραφή

This description has been translated automatically and may not be accurate

κωδικός: S2343

Vodice, building under construction, we offer for sale a charming two-bedroom apartment located on the 1st floor of a residential building in the planning stage. The planned start of construction is April 2026, with the planned move-in date in summer 2027.

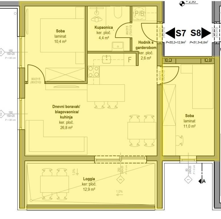
Apartment labeled S7 with a total area of 67.37 m2 consists of: bedroom 1, bedroom 2, kitchen with dining area and living room, hallway, bathroom, and loggia. The apartment includes one parking space in front of the building.

PRICE: €215,000.00 - VAT included in the price (buyer does not pay real estate transfer tax)

The building is constructed with quality materials according to the latest standards and includes:

- Styrofoam facade
- Burglar and fire-resistant entrance doors
- Anthracite PVC joinery with electric shutters
- Mosquito nets
- White interior doors
- Air conditioning units in all rooms and living room
- Laminate flooring in bedrooms
- High-quality ceramic tiles in the rest of the apartment
- Electric underfloor heating in the bathroom

The building is located 1200 m from the city center, 700 m from the sea, and 800 m from Hangar beach.

Buyers of this property are exempt from agency commission.
The project is in the reservation phase, and a preliminary purchase contract will be signed upon the start of construction.
For any additional information, we are at your disposal.

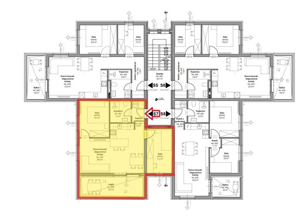
OTHER AVAILABLE APARTMENTS:

GROUND FLOOR:

Apartment with garden S1 on the ground floor with an area of 81.69 m2, consisting of: living room, bathroom, hallway, room 1, room 2, terrace, balcony, and garden of 136 m2 plus two parking spaces in the building’s courtyard = €228,000.00, VAT included in the price

Apartment with garden S2 with an area of 85.31 m2, consisting of: living room, bathroom, hallway, room 1, room 2, terrace, balcony, and garden of 169 m2 plus two parking spaces in the building’s courtyard = €238,000.00, VAT included in the price

Apartment with garden S3 with an area of 57.41 m2, consisting of: living room, bathroom, hallway, room 1, room 2, terrace, and garden of 54 m2 plus one parking space in the building’s courtyard = €189,000.00, VAT included in the price

Apartment with garden S4 with an area of 57.41 m2, consisting of: living room, bathroom, hallway, room 1, room 2, terrace, and garden of 57 m2 plus one parking space in the building’s courtyard = €189,000.00, VAT included in the price

1ST FLOOR:

Apartment S5 with an area of 64.6 m2, consisting of: living room, bathroom, hallway, room 1, room 2, and balcony plus two parking spaces in the building’s courtyard = €206,000.00, VAT included in the purchase price

Apartment S6 with an area of 64.6 m2, consisting of: living room, bathroom, hallway, room 1, room 2, and balcony plus two parking spaces in the building’s courtyard = €206,000.00, VAT included in the purchase price

Apartment S7 with an area of 67.37 m2, consisting of: living room, bathroom, hallway, room 1, room 2, and loggia plus one parking space in the building’s courtyard = €215,000.00, VAT included in the purchase price

Apartment S8 with an area of 55.7 m2, consisting of: living room, bathroom, hallway, room 1, room 2, and balcony plus one parking space in the building’s courtyard = €183,810.00, VAT included in the purchase price

2ND FLOOR:

Apartment S9 with an area of 104.77 m2, consisting of: living room, two bathrooms, hallway, room 1, room 2, room 3, loggia, terrace 1, and terrace 2 plus two parking spaces in the building’s courtyard = €293,000.00, VAT included in the purchase price

Apartment S10 with an area of 64.6 m2, consisting of: living room, bathroom, hallway, room 1, room 2, and balcony plus two parking spaces in the building’s courtyard = €206,000.00, VAT included in the purchase price

Apartment S11 with an area of 67.37 m2, consisting of: living room, bathroom, hallway, room 1, room 2, and loggia plus one parking space in the building’s courtyard = €215,000.00, VAT included in the purchase price
Χαρακτηριστικά
Τύπος
Διαμέρισμα | Ακίνητο μεσαίας κατηγορίας
Συμβόλαιο
Πώληση
Όροφος
1 όροφος
Σύνολο ορόφων
2
Ανελκυστήρας
Όχι
Εμβαδόν
67 m²
Δωμάτια
2
Υπνοδωμάτια
2
Μπάνια
1
Μπαλκόνι
Όχι
Βεράντα
Όχι
Θέρμανση
Αυτόνομη, θερμαντικά σώματα, ρεύμα
Κλιματισμός
Αυτόνομη
Απόσταση από τη θάλασσα
700 m
Άλλα χαρακτηριστικά
  • Πόρτα ασφαλείας
Πληροφορίες τιμής
Τιμή
€ 215.000
Τιμή ανά m²
3.209 €/m²
Ενεργειακή απόδοση
  • Έτος κατασκευής

    2026
  • Θέρμανση

    Αυτόνομη, θερμαντικά σώματα, ρεύμα
  • Κλιματιστικό μηχάνημα

    Αυτόνομη
  • Ενεργειακή πιστοποίηση

    Εκκρεμεί πιστοποίηση
Σχέδιο ακινήτου
Ανακαλύψτε κάθε γωνιά του ακινήτου
+3
Πρόσθετες επιλογές

Επικοινώνησε με τον αγγελιοδότη

Ή