Τριάρι Veli vrh, Pula, Veli Vrh - Industrijska zona, Πούλα

€ 233.550
3
86 m²
1
ΙΣ
Ναι

Σημείωση

Τελευταία ενημέρωση: 08/04/2026
Περιγραφή

This description has been translated automatically and may not be accurate

κωδικός: 6077

PULA - NEW BUILDING | Apartment on the ground floor 86.50 m² | large terrace | garage parking space, A2

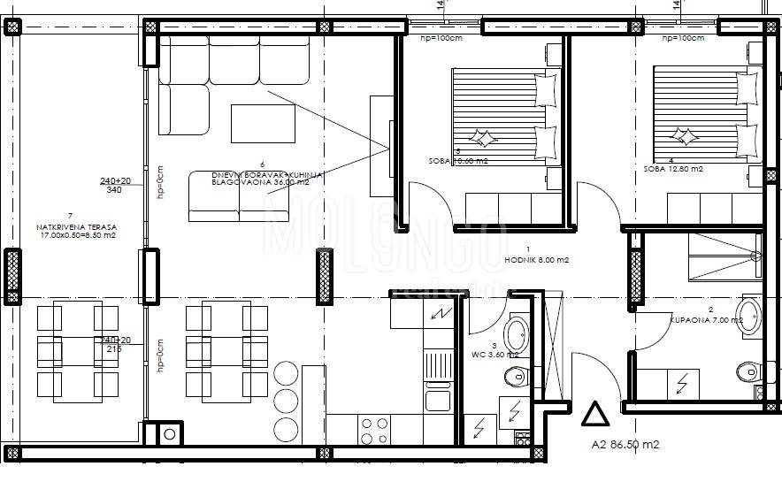
We offer a spacious apartment in a new building in Pula, located on the ground floor of a modern residential building, with a total area of 86.50 m². The project is currently under construction, and the planned completion of the works is October 2027.

Stan je funkcionalnog i komfornog rasporeda te se sastoji od:

entrance hall
two bedrooms
bathrooms
additional toilet
kitchen with dining room
spacious living room
large terraces with an exit from the living room

The apartments are sold according to the "turnkey" system.

The purchase of a garage parking space at the price of €18,500 is mandatory with the apartment.

There is also the possibility of purchasing a storage room in the basement of the building (not a condition of purchase).

The planned completion of construction is 10/2027. year.

Due to its area, additional toilet and large terrace, this apartment is an ideal property for family life or investment.

ID CODE: 6077

Zoran Stupar
Agent s licencom
Mob: +385 99 5705 551
Tel: +385 52 774 199
E-mail: zoran.stupar@mololongorealestate.com
www.mololongorealestate.com
Χαρακτηριστικά
Τύπος
Διαμέρισμα
Συμβόλαιο
Πώληση
Όροφος
Ισόγειο
Σύνολο ορόφων
4
Ανελκυστήρας
Ναι
Εμβαδόν
86 m²
Δωμάτια
3
Υπνοδωμάτια
2
Μπάνια
1
Μπαλκόνι
Όχι
Βεράντα
Όχι
Γκαράζ, χώροι στάθμευσης
1 σε πάρκινγκ/κλειστό πάρκινγκ, 1 εξωτερικό
Θέρμανση
Αυτόνομη, θέρμανση αέρος
Κλιματισμός
Αυτόνομη, κρύο/ζέστη
Πληροφορίες τιμής
Τιμή
€ 233.550
Τιμή ανά m²
2.716 €/m²
Ενεργειακή απόδοση

Κατανάλωση ενέργειας

A+

Πρόσθετες επιλογές

Επικοινώνησε με τον αγγελιοδότη

Ή