map icon

Διαμέρισμα πρώτος όροφος, Privlaka

Privlaka
€ 380.688
106 m²
1

Σημείωση

Τελευταία ενημέρωση: 02/05/2026
Περιγραφή

κωδικός: s334

Ekskluzivna novogradnja u Privlaci pokraj Zadra

U ponudi je moderna i kvalitetna stambena zgrada smještena na izvrsnoj lokaciji u Privlaci, mirnom i atraktivnom mjestu nedaleko od Zadra. Nekretnina se nalazi na samo 150 metara od mora i prekrasne pješčane plaže, što budućim vlasnicima omogućuje uživanje u blizini mora, čistom zraku i mediteranskom načinu života. Posebna prednost ove nekretnine su stanovi na prvom i drugom katu koji imaju neometan panoramski pogled na more i otoke zadarskog arhipelaga. Lokacija je mirna i ugodna za život, ali ujedno blizu svih važnih sadržaja poput trgovina, restorana, kafića i šetnica uz more. Zgrada se sastoji od 10 stambenih jedinica te se trenutno nalazi u završnoj fazi izgradnje, a planirani završetak radova i useljenje očekuju se do 01.06.2026. godine. Prilikom gradnje i opremanja koriste se visokokvalitetni materijali i moderna oprema s ciljem osiguravanja dugotrajnosti, energetske učinkovitosti i visokog standarda stanovanja. Stanovi su projektirani s naglaskom na funkcionalan raspored prostorija, puno prirodnog svjetla te prostrane terase idealne za uživanje na otvorenom. Stanovi u prizemlju imaju pripadajuće privatne vrtove koji pružaju dodatni prostor za odmor, druženje, dječju igru ili uređenje vlastite zelene oaze. Ova nekretnina predstavlja odličnu priliku za obiteljski život, odmor ili investiciju u turistički najam s obzirom na veliku potražnju za kvalitetnim nekretninama u ovom dijelu Dalmacije. Prodavatelj je pravna osoba u sustavu PDV-a, što znači da kupac ne plaća porez na promet nekretnina.

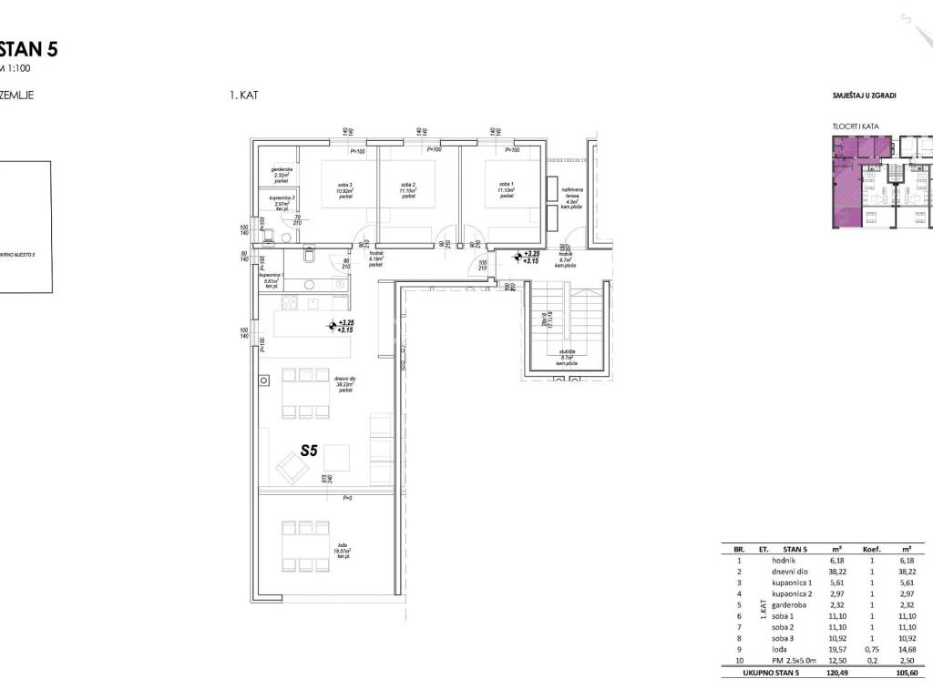
Stan S5. U ponudi je prostran i funkcionalan trosobni stan ukupne površine 120,49 m² (obračunski 105,60 m²), smješten na 1. katu moderne stambene zgrade. Stan je osmišljen tako da pruža maksimalnu udobnost i funkcionalnost, s jasno odvojenim dnevnim i noćnim dijelom. Ulaz u stan vodi u hodnik iz kojeg se pristupa svim prostorijama. Središnji dio stana čini prostrani dnevni boravak s blagovaonicom i kuhinjom površine 38,22 m², otvorenog koncepta, idealan za obiteljski život i druženje. Iz dnevnog boravka izlazi se na prostranu lođu površine 19,57 m² koja pruža dodatni prostor za opuštanje na otvorenom. Noćni dio stana sastoji se od tri spavaće sobe (11,10 m², 11,10 m² i 10,92 m²) koje pružaju dovoljno prostora za obitelj ili uređenje radne sobe. Stan ima dvije kupaonice (5,61 m² i 2,97 m²), što dodatno povećava praktičnost svakodnevnog života, te garderobu od 2,32 m². Stanu pripada i parkirno mjesto dimenzija 2,5 × 5,0 m. Zahvaljujući odlično organiziranom rasporedu, velikim staklenim površinama i prostranoj lođi, ovaj stan predstavlja idealan izbor za ugodan i kvalitetan obiteljski život.
 
Dostupni stanovi:
PRIZEMLJE (stanovi s vrtom)
S1 – 100,99 m², 2 spavaće sobe – 364.000 €
S2 – 88,41 m², 2 spavaće sobe – 318.700 €
S3 – 87,86 m², 2 spavaće sobe – 316.700 €
S4 – 88,43 m², 2 spavaće sobe – 318.790 €
1. KAT
S5 – 105,60 m², 3 spavaće sobe – 380.688 €
S6 – 107,13 m², 3 spavaće sobe – 386.200 €
S7 – 129,99 m², 2 spavaće sobe – 468.600 €
S8 – 131,06 m², 2 spavaće sobe – 472.470 €
2. KAT
S9 – PRODANO
S10 – PRODANO
Za više informacija, tlocrt stanova ili dogovor oko razgledavanja slobodno nas kontaktirajte.
Χαρακτηριστικά
Τύπος
Διαμέρισμα
Συμβόλαιο
Πώληση
Όροφος
1 όροφος
Εμβαδόν
106 m²
Γκαράζ, χώροι στάθμευσης
1 σε πάρκινγκ/κλειστό πάρκινγκ
Άλλα χαρακτηριστικά
  • Πόρτα ασφαλείας
Πληροφορίες τιμής
Τιμή
€ 380.688
Τιμή ανά m²
3.591 €/m²
Ενεργειακή απόδοση
  • Έτος κατασκευής

    2026
  • Ενεργειακή πιστοποίηση

    Δεν υπόκειται
Ανακαλύψτε κάθε γωνιά του ακινήτου
+10
Πρόσθετες επιλογές

Επικοινώνησε με τον αγγελιοδότη

Ή