Τεσσάρι Srima, Vodice, Vodice

€ 751.452
4
192 m²
2
Όχι
Βεράντα

Σημείωση

Τελευταία ενημέρωση: 20/03/2026
Περιγραφή

This description has been translated automatically and may not be accurate

κωδικός: 5546

A luxurious apartment for sale in a new building on the second row to the sea in Srima.

The apartment is located in a residential building with a total of 8 apartments. The building consists of the ground floor, first, second and third floors. The distance to the center is 600 m.

The apartments are equipped with high-quality windows and doors with electric blinds and mosquito nets, burglar-proof and fire-proof entrance doors, electric floor heating in the bathrooms, modern sanitary facilities. The rooms and the living room are equipped with air conditioning and a TV connection.

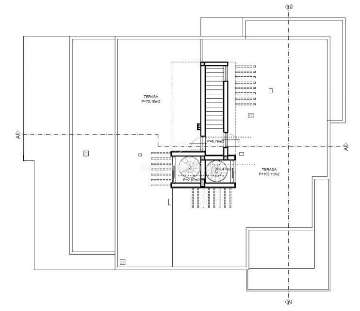
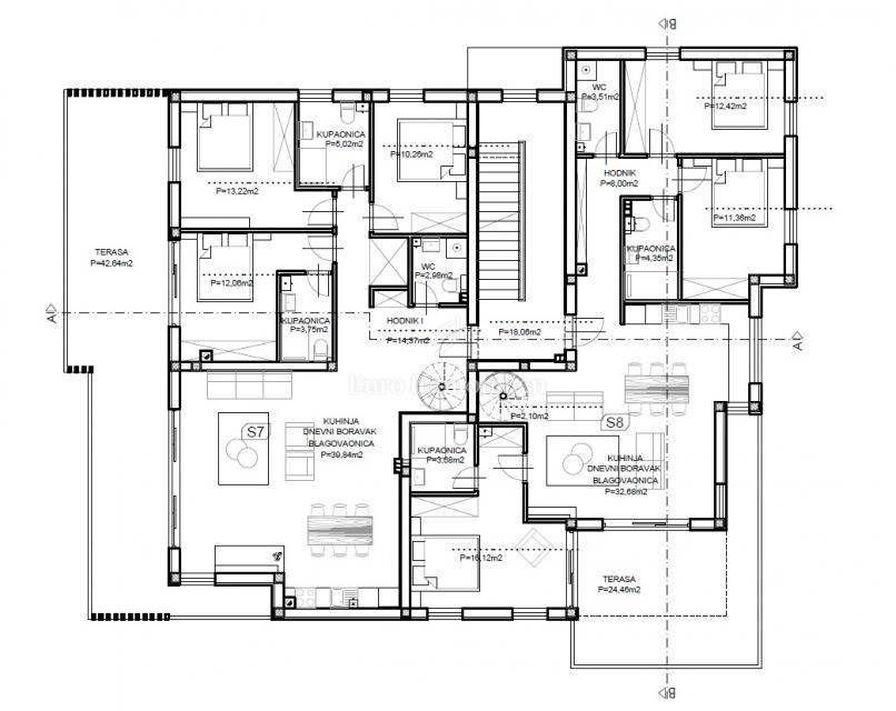
APARTMENT S7 is located on the second floor and consists of three bedrooms, hallway, staircase, toilet, two bathrooms, living room, dining room and kitchen. On the second floor there is a terrace of 42.64 m2. On the third floor there is a staircase and a large terrace of 70.10 m2. It has one parking space.

Provizija agencije za kupca iznosi 3% + PDV i plaća se u slučaju kupovine nekretnine kod zaključenja kupoprodajnog Ugovora.

ID CODE: 5546

Euro Immobilien d.o.o.
Mob: 00385 (0)99 444 0500
Tel: +385 51 220 024
E-mail: info@euro-immobilien.hr
www.euro-immobilien.hr
Χαρακτηριστικά
Τύπος
Διαμέρισμα
Συμβόλαιο
Πώληση
Σύνολο ορόφων
3
Ανελκυστήρας
Όχι
Εμβαδόν
192 m²
Δωμάτια
4
Υπνοδωμάτια
3
Μπάνια
2
Μπαλκόνι
Όχι
Βεράντα
Ναι
Γκαράζ, χώροι στάθμευσης
1 εξωτερικό
Θέρμανση
Αυτόνομη, θέρμανση αέρος
Κλιματισμός
Αυτόνομη, κρύο/ζέστη
Πληροφορίες τιμής
Τιμή
€ 751.452
Τιμή ανά m²
3.914 €/m²
Ενεργειακή απόδοση
  • Θέρμανση

    Αυτόνομη, θέρμανση αέρος
  • Κλιματιστικό μηχάνημα

    Αυτόνομη, κρύο/ζέστη
  • Ενεργειακή πιστοποίηση

    Χωρίς ταξινόμηση
Σχέδιο ακινήτου
Ανακαλύψτε κάθε γωνιά του ακινήτου
+2
Πρόσθετες επιλογές

Επικοινώνησε με τον αγγελιοδότη

Ή