Μονοκατοικία πολλαπλών οικογενειών Privlaka, Privlaka

€ 530.000
5
306 m²
3
Όχι

Σημείωση

Τελευταία ενημέρωση: 20/03/2026
Περιγραφή

This description has been translated automatically and may not be accurate

κωδικός: 5787

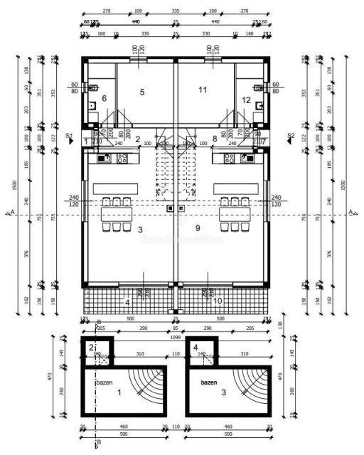
Two halves of a house with a pool in a new building in Privlaka are for sale. The property consists of two completely identical residential units that extend to the ground floor and the 1st floor. It is located on a plot of 528 m2.

HOUSE 1
GROUND FLOOR - entrance, hall, bedroom, bathroom, kitchen with dining room and living room, terrace, swimming pool
1ST FLOOR - staircase with corridor, hall, three bedrooms, two bathrooms, terrace
Price: 590,000 EUR

HOUSE 2
GROUND FLOOR - entrance, hall, bedroom, bathroom, kitchen with dining room and living room, terrace, swimming pool
1ST FLOOR - staircase with corridor, hall, three bedrooms, two bathrooms, terrace
Price: 590,000 EUR

Each half has 2 parking spaces.

The construction of the building consists of strip foundations, reinforced concrete vertical and horizontal cerclages and ceiling slabs. A thermal facade made of styrofoam d=12cm is placed on the external walls and finished with facade thin-layer silicate plaster. Windows and exterior doors are made of multi-chamber PVC profiles with double-layer insulating glazing. The ETICS system is used as additional thermal protection of the walls.

Provizija agencije za kupca iznosi 3% + PDV i plaća se u slučaju kupovine nekretnine kod zaključenja kupoprodajnog Ugovora.

ID CODE: 5787

Euro Immobilien d.o.o.
Mob: 00385 (0)99 444 0500
Tel: +385 51 220 024
E-mail: info@euro-immobilien.hr
www.euro-immobilien.hr
Χαρακτηριστικά
Τύπος
Μονοκατοικία πολλαπλών οικογενειών
Συμβόλαιο
Πώληση
Σύνολο ορόφων
1
Ανελκυστήρας
Όχι
Εμβαδόν
306 m²
Δωμάτια
5
Υπνοδωμάτια
4
Μπάνια
3
Μπαλκόνι
Όχι
Βεράντα
Όχι
Γκαράζ, χώροι στάθμευσης
2 εξωτερικό
Πληροφορίες τιμής
Τιμή
€ 530.000
Τιμή ανά m²
1.732 €/m²
Ενεργειακή απόδοση
  • Ενεργειακή πιστοποίηση

    Χωρίς ταξινόμηση
Σχέδιο ακινήτου
Πρόσθετες επιλογές

Επικοινώνησε με τον αγγελιοδότη

Ή