Κατάστημα - Εμπορικός χώρος προς Πώληση

€ 2.700.000
5+
1.700 m²

Σημείωση

Τελευταία ενημέρωση: 27/09/2025
Περιγραφή

κωδικός: ID 1118103

IZUZETNA PRILIKA ZA INVESTICIJU!
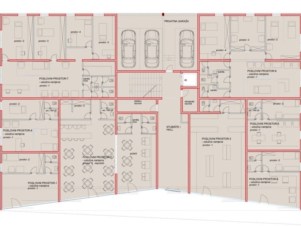
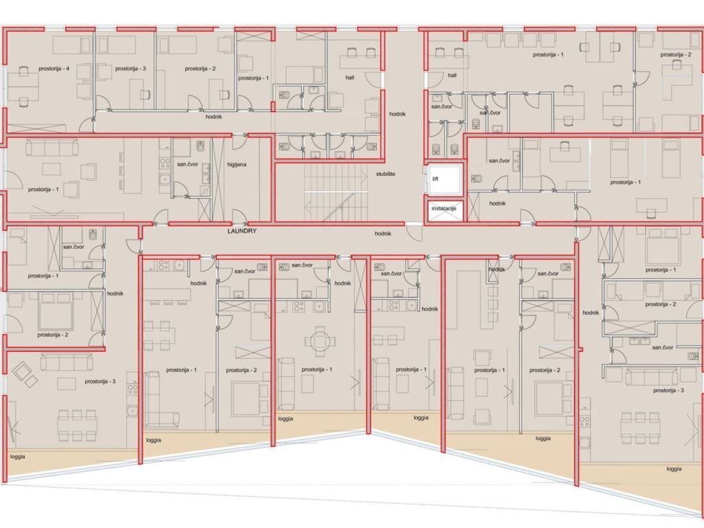
Prodaje se poslovno stambena zgrada u izgradnji koja se nalazi na odlićnoj lokaciji u predgrađu Splita, samo 120 m od mora. Zgrada ukupne površine cca. 1700 m2 gradi se na parceli od 2500 m2 i ima tri etaže povezane unutarnjim stepenicama. Prizemlje se sastoji od 8 prostorija koje mogu biti namijenjene za uslužnu djelatnost (stomatologija, frizerski salon, kozmetički salon, caffe bar i sl.). Prostori su površine od 39 m2 do 123 m2 i opremljeni su sanitarnim čvorovima. Na prvom katu se nalaze dva poslovna prostora i osam stanova (3 studio apartmana, 2 dvosobna apartmana i 3 jednosobna stana) od kojih sedam ima terase s panoramskim pogledom na more. Na drugom katu nalazi se penthouse površine 150 m2 koji se sastoji od prostranog dnevnog boravka otvorenog koncepta s kuhinjom i blagovaonicom, tri spavaće sobe, dvije kupaonice i ulaznog prostora. Penthouse je okružen terasom od 600 m2, s prekrasnim nezaboravnim od 360º panoramskim pogledom na planine, more i otoke. Terasa može sadržavati teniski teren, bazen, jacuzzi i ljetnu kuhinju sa roštiljem. Penthouse ima garažu za tri automobila koja se nalazi u prizemlju zgrade i sa kojom je direktno povezan liftom.
Zgrada ima parking za 35 automobila.
Trenutno je zgrada u roh-bau fazi, a cijena joj je 2.700.000 eura. Kako gradnja napreduje, cijena nekretnine će se mijenjati.

Dodatne informacije o objektu, njegovoj toćnoj lokaciji i razgledavanje mogući su nakon potpisivanja ugovora o posredovanju s agencijom koji je u skladu sa Zakonom o zaštiti osobnih podataka i Zakonom o posredovanju u prometu nekretnina.
Χαρακτηριστικά
Συμβόλαιο
Πώληση
Εμβαδόν
1.700 m²
Δωμάτια
5+ δωμάτια
Άλλα χαρακτηριστικά
  • Προσανατολισμός νότος
Πληροφορίες τιμής
Τιμή
€ 2.700.000
Τιμή ανά m²
1.588 €/m²
Ενεργειακή απόδοση
  • Κατάσταση

    Νεόδμητο / Υπό κατασκευή
  • Ενεργειακή πιστοποίηση

    Χωρίς ταξινόμηση
Ανακαλύψτε κάθε γωνιά του ακινήτου
+8
Πρόσθετες επιλογές

Επικοινώνησε με τον αγγελιοδότη

Ή