Τεσσάρι νέο, δεύτερος όροφος, Diklo - Puntamika, Ζάδαρ

€ 614.300
4
136 m²
2
2
Ναι
Βεράντα

Σημείωση

Τελευταία ενημέρωση: 22/04/2026
Περιγραφή

This description has been translated automatically and may not be accurate

κωδικός: 4418

For sale is a new, modern project, quality new buildings with a sea view in an excellent location in Zadar, in the wider area of Dikla, only 450 m from the sea and well-kept beaches.
It is a multi-apartment building project, in the initial phase of construction, consisting of 6 luxury three-room apartments with an underground garage.
The building has 4 floors: basement, ground floor, first and second floor, and at the top of the building there are two roof terraces that belong to the penthouse apartments on the 2nd floor.
The building will have a built-in elevator through all floors, high-quality ALU carpentry with large glass walls, heating of the apartments will be carried out using a heat pump for underfloor heating, and air conditioning and cooling using a multi-split air conditioning system, and each room will have its own unit.
Each apartment has 2 parking spaces (outdoor or indoor), and some of the apartments also have a storage room in the basement.
The planned deadline for the completion of construction works is the summer of 2025.
Payment of the first part of the amount of 10% of the price of the property (down payment), and for the rest of the amount, the possibility of financing with a housing loan.

BUILDING EQUIPMENT:
- underground garage parking spaces for tenants
- storage in the basement
- noiseless elevator through all floors
- closed staircase covered with ceramic tiles
- anti-burglary and fire-resistant entrance doors with comprehensive frames
- comfortable bedrooms
- large glass walls
- large covered terraces / landscaped gardens

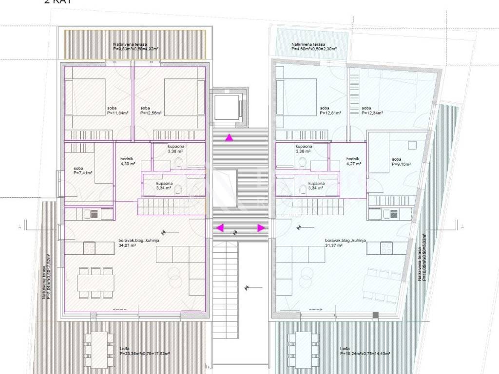
2nd floor - Penthouse with roof terrace
The apartment is located on the 2nd floor of the building and consists of an entrance/hallway, living room with kitchen and dining room, 3 bedrooms and 2 bathrooms.
The interior space of the apartment occupies an area of 82.25 m2.
From the living room there is access to the outdoor covered terraces that surround the apartment on two sides, and from the bedroom there is access to the loggia. In the basement of the building there are 2 attached garage parking spaces (13.75 m2 +13.75 m2).
Above the apartment there is a beautiful spacious roof terrace (75 m2), with a view of the sea and the Adriatic islands.
The total calculated useful value of the area of the apartment with accessories is 136.53 m2.

EQUIPMENT OF THE APARTMENT
- entrance area, bathrooms and kitchen covered with ceramic tiles
- floor coverings made of high-quality parquet and tiles
- three-layer ALU carpentry with built-in mosquito nets and electric blinds
- terraces covered with ceramic tiles, decorative stone on the walls & glass fences
- underfloor heating
- air conditioning devices

For a tour of the location / real estate and all other information, feel free to contact us.

LOCATION:
The location of the facility is excellent due to its proximity to the sea and the beach approx. 450 m, the distance to the city center is approx. 3 km, and from the airport Zemunik is approx. 16 km.
Diklo is famous as an elite part of the city of Zadar, and it is located along the coast with plenty of holiday accommodation, restaurants, bars and shops. A long local promenade with a landscaped beach leads to the local marina, and from the pebble shore there is a wonderful view of the islands of the Zadar archipelago.
Εάν θέλετε να μάθετε περισσότερα, μπορείτε να μιλήσετε με Marija Strenja.
Χαρακτηριστικά
Τύπος
Διαμέρισμα
Συμβόλαιο
Πώληση
Όροφος
2
Σύνολο ορόφων
2
Ανελκυστήρας
Ναι
Εμβαδόν
136 m²
Δωμάτια
4
Υπνοδωμάτια
3
Μπάνια
2
Βεράντα
Ναι
Γκαράζ, χώροι στάθμευσης
1 εξωτερικό
Θέρμανση
Αυτόνομη, θέρμανση αέρος, ρεύμα
Κλιματισμός
Αυτόνομη, κρύο/ζέστη
Άλλα χαρακτηριστικά
  • Μονός υαλοπίνακας/ Κουφώματα αλουμινίου
  • Πόρτα ασφαλείας
Λεπτομέρεια επιφάνειας

Κατοικία

Όροφος
2
Εμβαδόν
136,5 m²
Συντελεστής
100%
Τύπος επιφάνειας
Κύρια
Συνολική επιφάνεια
136,5 m²
Πληροφορίες τιμής
Τιμή
€ 614.300
Τιμή ανά m²
4.517 €/m²
Λεπτομέρειες κόστους
Κοινόχρηστα
Χωρίς κοινόχρηστα έξοδα
Ενεργειακή απόδοση
  • Έτος κατασκευής

    2025
  • Κατάσταση

    Νεόδμητο / Υπό κατασκευή
  • Θέρμανση

    Αυτόνομη, θέρμανση αέρος, ρεύμα
  • Κλιματιστικό μηχάνημα

    Αυτόνομη, κρύο/ζέστη
Ανακαλύψτε κάθε γωνιά του ακινήτου
+32
Πρόσθετες επιλογές

Επικοινώνησε με τον αγγελιοδότη

Ή