map icon

Διαμέρισμα νέο, ισόγειο, Nin

Nin
€ 310.880
5
78 m²
1
ΙΣ
Ναι
Βεράντα

Σημείωση

Τελευταία ενημέρωση: 23/12/2025
Περιγραφή

This description has been translated automatically and may not be accurate

κωδικός: 3852-1

Luxury flat/apartment for sale only 20 m from the sea in Zaton. It is a new building with an elevator, in the 2.nd row to the sea in Zaton near Zadar, this apartment has a sea view.

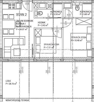
This is a ground floor apartment. The layout of the rooms consists of a hallway, 2 bedrooms, a bathroom, a kitchen with a dining room and a living room, and a covered terrace. The net usable area of the described premises with a terrace is 68.11 m2. In addition, the apartment has two parking spaces and a garden of approx. 24.65 m2.
The total net area of the apartment with all accessories is 77.72 m2.

The estimated deadline for moving in is the summer of 2024.
The investor is a company, so the buyer does not pay real estate sales tax.
Payment of the first part of the amount of 10% of the price of the property (down payment), and for the rest of the amount, the possibility of financing with a housing loan.
This property is only 700 m from the center of Zaton, and the city of Zadar is about 12 km away.

Equipment:
Construction with brick thermal blocks. Facade thermal insulation is 10 cm styrofoam. The floor coverings are tiles and parquet. Aluminum windows with three-layer glass, mosquito nets and electric shutters and blinds. Air conditioners are in the living room and in each bedroom. In addition, underfloor heating with a heat pump and air conditioning (Mitshubishi). Furthermore, the entrance door is burglar-proof and fire-proof. There also is an outdoor shower in the garden.
Energy certificate A is expected for this property.

Location:
Zaton is a small tourist town located between two historical cities - Nin (2 km) and Zadar (12 km), it represents a unique combination of Dalmatian architecture, pleasant Mediterranean climate, preserved nature, rich cultural and historical heritage and lively tourist everyday life.
Sandy beaches in the shade of centuries-old pines are ideal for families with children.
Nin is a place known for its sandy beaches and healing mud, and is located in the immediate vicinity of Paklenica and Kornati National Parks.
Χαρακτηριστικά
Τύπος
Διαμέρισμα
Συμβόλαιο
Πώληση
Όροφος
Ισόγειο
Ανελκυστήρας
Ναι
Εμβαδόν
78 m²
Δωμάτια
5
Υπνοδωμάτια
2
Μπάνια
1
Βεράντα
Ναι
Κλιματισμός
Κεντρική, κρύο/ζέστη
Άλλα χαρακτηριστικά
  • Πόρτα ασφαλείας
Πληροφορίες τιμής
Τιμή
€ 310.880
Τιμή ανά m²
3.986 €/m²
Ενεργειακή απόδοση
  • Έτος κατασκευής

    2025
  • Κατάσταση

    Νεόδμητο / Υπό κατασκευή
  • Κλιματιστικό μηχάνημα

    Κεντρική, κρύο/ζέστη
  • Ενεργειακή πιστοποίηση

    Χωρίς ταξινόμηση
Ανακαλύψτε κάθε γωνιά του ακινήτου
+14
Πρόσθετες επιλογές

Επικοινώνησε με τον αγγελιοδότη

Ή