map icon

Διαμέρισμα νέο, δέκατος όροφος, Turan - Kantrida - Costabella, Ριέκα

ΡιέκαTuran - Kantrida - Costabella
€ 1.146.342
5+
255 m²
2
10

Σημείωση

Τελευταία ενημέρωση: 20/02/2026
Περιγραφή

κωδικός: 4176-1

NOVO - Stambeni kompleks Rio-Kantrida u Rijeci, objekti B1 i B2
Kompleks se nalazi na atraktivnoj lokaciji Kantrida Marčeljeva Draga, lokacija na pola puta između centra Rijeke i Opatije. Idealna pozicija stanova omogućava dostupnost svim sadržajima školi i vrtiću, zelenim površinama, šetnjicama, shopping centrima, sportskim terenima i ostalim bitnim društvenim i javnim sadržajima s pogledom na opatijsku rivijeru, more i otoke.

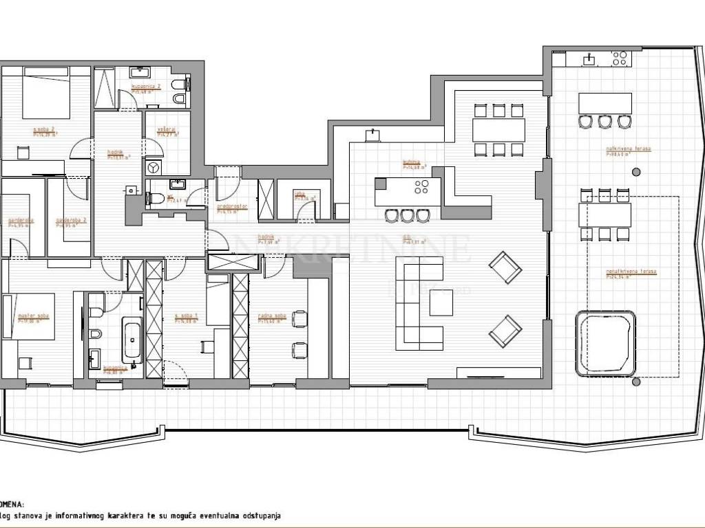
PENTHOUSE onake PH1-10-B2 ukupne netto površine 240,63m u objektu B2 - deseti kat, a sastoji se od predprostora, 2 hodnika, izbe, dnevnog boravka i kuhinje, 3 spavaće sobe, 1 radne sobe, 2 kupaonice, 2 garderobe, vešeraja, WC-a, natkrivene i nenatkrivene terase.

U izgradnji je višestambena građevina sa 78 stambenih jedinica raspoređenih na 11 etaža, prizemlje i deset katova. Na etaži suterena (-1) i podruma (-2) planiran je smještaj garažnih parkirnih mjesta i spremišta.
Izgradnja i oprema sa visokokvalitetnim materijalima koji zadovoljavaju najviše kriterije gradnje koje prati moderno i sofisticirano uređenje.
Raspon cijene stanova, ovisno o etaži i orijentaciji,je od3.390,00 /m do 4.490,00 /m.
Cjenik stanova je podložan promjenama te je njegova valjanost vremenski ograničena (postojeći vrijedi do 30.06.2025.).
Uz stan je obavezno garažno parkirno mjesto i spremište.
Dovršetak projekta i useljenje očekuju se do 30.06.2027.
Χαρακτηριστικά
Τύπος
Διαμέρισμα
Συμβόλαιο
Πώληση
Όροφος
10 όροφος
Εμβαδόν
255 m²
Δωμάτια
5+
Υπνοδωμάτια
3
Μπάνια
2
Πληροφορίες τιμής
Τιμή
€ 1.146.342
Τιμή ανά m²
4.495 €/m²
Ενεργειακή απόδοση
  • Έτος κατασκευής

    2027
  • Κατάσταση

    Νεόδμητο / Υπό κατασκευή
  • Ενεργειακή πιστοποίηση

    Χωρίς ταξινόμηση
Ανακαλύψτε κάθε γωνιά του ακινήτου
+4
Πρόσθετες επιλογές

Επικοινώνησε με τον αγγελιοδότη

Ή