map icon

Μονοκατοικία 136 τμ, νέα, Privlaka

Privlaka
€ 475.000
5+
136 m²
3

Σημείωση

Τελευταία ενημέρωση: 05/12/2025
Περιγραφή

κωδικός: 563-1

NOVOGRADNJA S BAZENOM PRIVLAKA
Cijena: 475.000
Na prodaju je moderna samostojeća kuća s projektiranim bazenom, smještena u mirnom dijelu Privlake svega 550 m od plaže Škrapavac i šetnice uz more.
Glavne karakteristike:

Površina parcele: 364 m
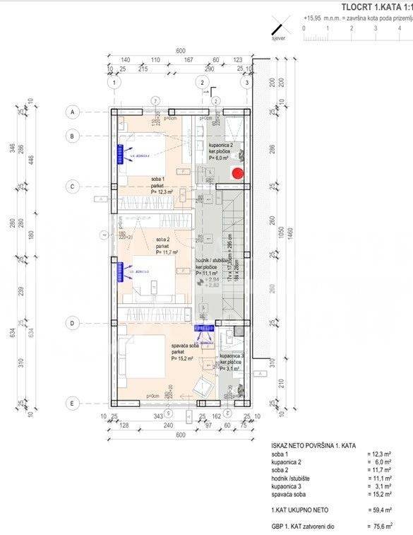
Stambena građevina: prizemlje + kat (P+1), ukupna GBP 135,70 m
Tlocrtna površina: 75,60 m
Projektirani bazen: 26,2 m, dimenzije 7,5 x 3,5 m, svijetla dubina 1,5 m

Raspored prostorija:
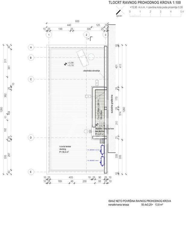
Prizemlje predulaz, predsoblje, kuhinja, kupaonica, dnevni boravak s blagovaonicom, natkrivena terasa, spremište. 1. kat hodnik, master spavaća soba s vlastitom kupaonicom, dvije dodatne sobe i kupaonica. Krovna terasa pristup sa stubišta.
Kotirani tlocrti su među fotografijama.
Dodatne značajke:

2 parkirna mjesta
PVC stolarija s IZO staklom niske emisije, rolete
Keramičke obloge podova
Toplinska izolacija EPS 10 cm
Ravni krov, armirano-betonska konstrukcija
Hortikulturno uređeno dvorište s autohtonim raslinjem i privatnim prostorom za opuštanje

Lokacija:

Plaža Škrapavac: 550 m
Trgovina: 550 m
Uređena šetnica uz more do centra Privlake

Ova nekretnina idealna je za miran obiteljski život ili kao investicija za turistički najam.
Kontaktirajte nas za više informacija ili dogovor razgledavanja na +385 91 603 6561.
Εάν θέλετε να μάθετε περισσότερα, μπορείτε να μιλήσετε με Ivana Klasan.
Χαρακτηριστικά
Τύπος
Μονοκατοικία
Συμβόλαιο
Πώληση
Όροφος
Ισόγειο
Εμβαδόν
136 m² | επαγγελματικό 500 m²
Δωμάτια
5+
Υπνοδωμάτια
3
Μπάνια
3
Κλιματισμός
Κεντρική, κρύο/ζέστη
Άλλα χαρακτηριστικά
  • Πόρτα ασφαλείας
  • Πισίνα
Λεπτομέρεια επιφάνειας

Κατοικία

Όροφος
Ισόγειο
Εμβαδόν
136,0 m²
Συντελεστής
100%
Τύπος επιφάνειας
Κύρια
Συνολική επιφάνεια
136,0 m²

Γη

Όροφος
Ισόγειο
Εμβαδόν
364,0 m²
Συντελεστής
100%
Τύπος επιφάνειας
Δευτερεύουσα
Συνολική επιφάνεια
364,0 m²
Πληροφορίες τιμής
Τιμή
€ 475.000
Τιμή ανά m²
950 €/m²
Ενεργειακή απόδοση
  • Έτος κατασκευής

    2025
  • Κατάσταση

    Νεόδμητο / Υπό κατασκευή
  • Κλιματιστικό μηχάνημα

    Κεντρική, κρύο/ζέστη
  • Ενεργειακή πιστοποίηση

    Χωρίς ταξινόμηση
Ανακαλύψτε κάθε γωνιά του ακινήτου
+14
Πρόσθετες επιλογές

Επικοινώνησε με τον αγγελιοδότη

Ή