Οικοδομήσιμο οικόπεδο προς Πώληση

€ 75.000
564 m²

Σημείωση

Τελευταία ενημέρωση: 14/03/2026
Περιγραφή

κωδικός: 2459-1

U okolici Višnjana, u iznimno mirnom ambijentu na prodaji je građevinsko zemljište, površine 564 m. Zemljište se nalazi u tipičnom istarskom selu sa svega nekoliko kuća, na rubu naselja. Teren je ravan, uzvišen, te pruža otvoreni panoramski pogled na okolna brda.

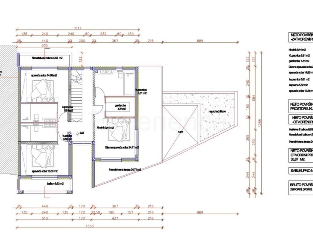
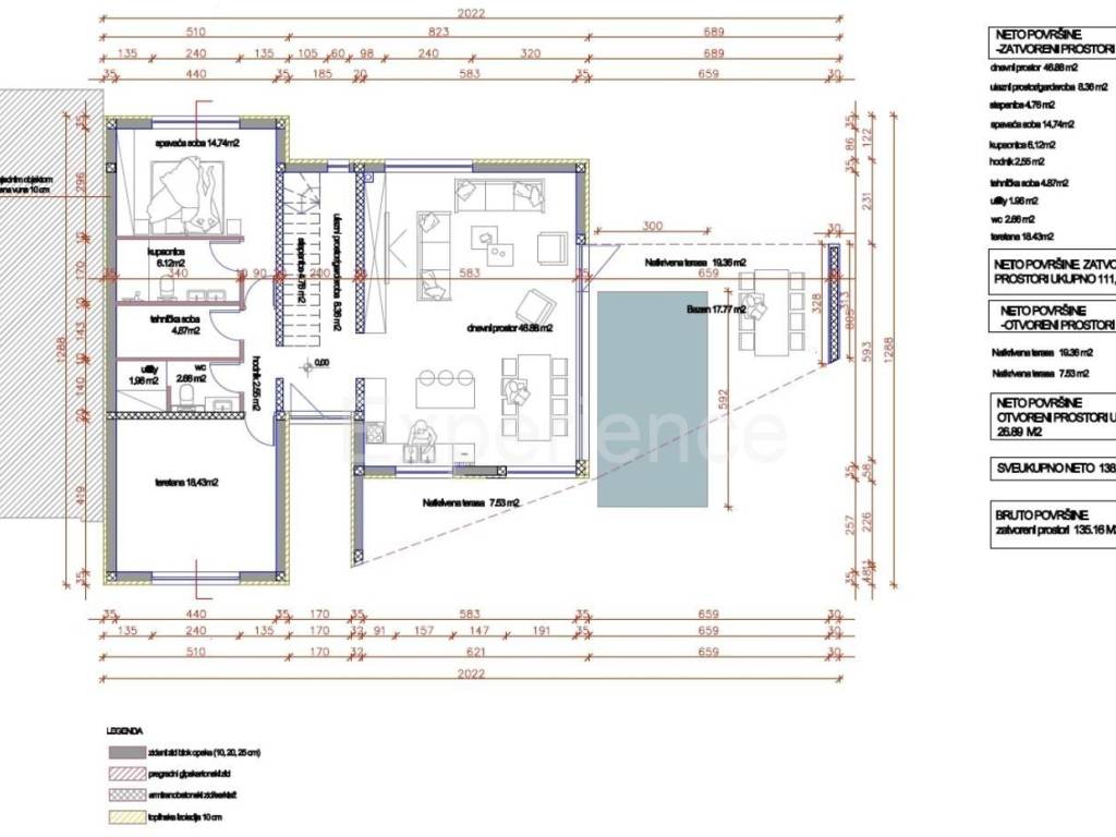
Ishodovana je građevinska dozvola i plaćene su komunalije za izgradnju dvojne obiteljske kuće sa bazenom, ukupne neto površine 317 m. Plaćen je komunalni doprinos u iznosu od 7.500 .

Priključci za struju i vodu nalaze se uz parcelu.
Εάν θέλετε να μάθετε περισσότερα, μπορείτε να μιλήσετε με Patricija Simonetti.
Χαρακτηριστικά
Συμβόλαιο
Πώληση
Τύπος
Οικοδομήσιμο οικόπεδο
Εμβαδόν
564 m²
Πληροφορίες τιμής
Τιμή
€ 75.000
Τιμή ανά m²
133 €/m²
Ανακαλύψτε κάθε γωνιά του ακινήτου
+6
Πρόσθετες επιλογές

Επικοινώνησε με τον αγγελιοδότη

Ή