map icon

Δυάρι νέο, τρίτος όροφος, Okrug

Okrug
€ 320.000
2
80 m²
2
3
Βεράντα

Σημείωση

Τελευταία ενημέρωση: 28/01/2026
Περιγραφή

This description has been translated automatically and may not be accurate

κωδικός: 2868-1

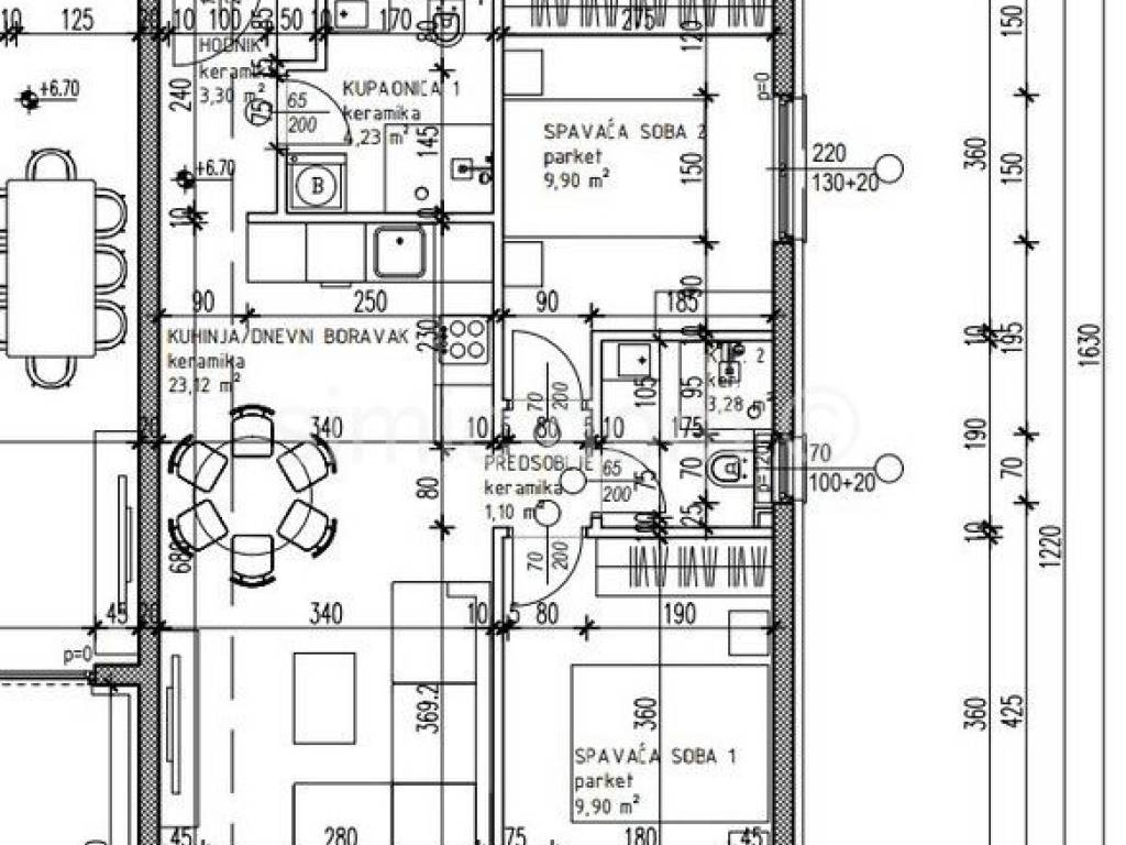
For sale is an apartment in new construction on the south side of the island of Ciovo, only 10 minutes' walk from the beach. The apartment is designated as S8 and is located on the third floor of a building with an elevator. It has a total internal area of 55.46m2, a balcony of 14.62m2 and a roof terrace of 70m2 floor area. From the roof terrace there is a spectacular panoramic view of the sea and the entire Okrug Gornji. The total net area of the apartment is 80.37m2. It consists of two bedrooms, two bathrooms and a kitchen with a living room and a dining room, which leads to a spacious balcony. The apartment includes a private parking spot. The building has a 28m2 swimming pool that can be used by all owners. The building will be of high quality, with 10 cm thermal insulation. Each apartment will have underfloor heating and air conditioning. Construction began in February 2024, and occupancy is expected in May 2025.

Viewing this property is possible only with the signing of our standard agency agreement, which is the basis for further actions related to the sale of real estate, all in accordance with the Law on Data Protection and the Real Estate Brokerage Act.
Χαρακτηριστικά
Τύπος
Διαμέρισμα
Συμβόλαιο
Πώληση
Όροφος
3 όροφος
Εμβαδόν
80 m²
Δωμάτια
2
Μπάνια
2
Βεράντα
Ναι
Κλιματισμός
Κεντρική, κρύο/ζέστη
Άλλα χαρακτηριστικά
  • Πισίνα
Πληροφορίες τιμής
Τιμή
€ 320.000
Τιμή ανά m²
4.000 €/m²
Ενεργειακή απόδοση
  • Κατάσταση

    Νεόδμητο / Υπό κατασκευή
  • Κλιματιστικό μηχάνημα

    Κεντρική, κρύο/ζέστη
  • Ενεργειακή πιστοποίηση

    Χωρίς ταξινόμηση
Ανακαλύψτε κάθε γωνιά του ακινήτου
+5
Πρόσθετες επιλογές

Επικοινώνησε με τον αγγελιοδότη

Ή