map icon

Δυάρι νέο, ισόγειο, Vodice

Vodice
€ 345.000
2
78 m²
1
ΙΣ

Σημείωση

Τελευταία ενημέρωση: 28/01/2026
Περιγραφή

This description has been translated automatically and may not be accurate

κωδικός: 2843-1

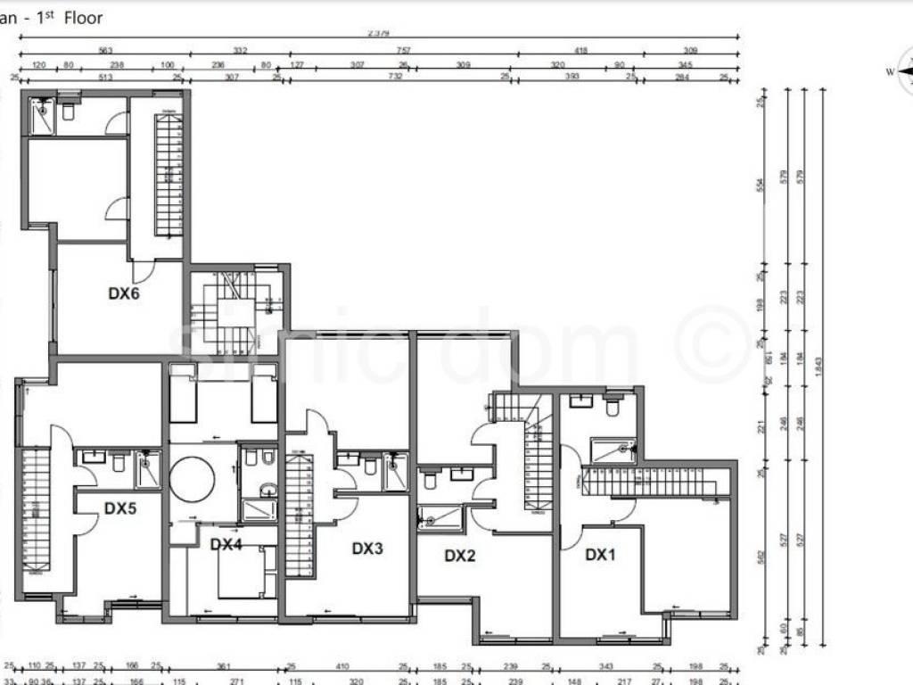
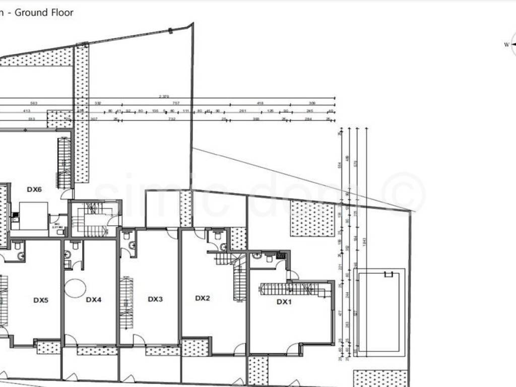
An apartment is for sale in new construction in a great location in Vodice, only 120m from a beautiful beach and 800m from the center of Vodice. The DX6 apartment is a two-story extending over a ground floor and the first floor, which are connected by the so-called "floating stairs". The entrance to the apartment is on the ground floor and has a southwest orientation. Total internal surface of the property is 78.26m2, with another 25m2 terrace and a garden of 8.37m2 (floor area). One outdoor parking space is included in the price, with the possibility of paying extra for one more parking space. The lower floor of the apartment has a living room, a kitchen with a dining room and a toilet. The upper floor consists of a hallway, one bathroom and two bedrooms. In agreement with the investor, it is possible to arrange the installation of a pergola and jacuzzi in the garden. The building will have a beautiful and modern design that includes a white facade and glass surfaces in anthracite color. Large sliding walls installed throughout the apartment allow a wonderful view of the sea and communication with the garden space. In this phase of the construction process, the buyer can choose the materials in agreement with the investor. The building will have superior thermal and hydro insulation as well as floors with high-quality anti-slip ceramic floor tiles with minimal joint width. The living room and both bedrooms will have quality Hyundai air conditioners. This property represents an excellent investment for buyers looking for quality new construction near the beach and amenities.

Viewing this property is possible only with the signing of our standard agency agreement, which is the basis for further actions related to the sale of real estate, all in accordance with the Law on Data Protection and the Real Estate Brokerage Act.
Χαρακτηριστικά
Τύπος
Διαμέρισμα
Συμβόλαιο
Πώληση
Όροφος
Ισόγειο
Εμβαδόν
78 m²
Δωμάτια
2
Μπάνια
1
Πληροφορίες τιμής
Τιμή
€ 345.000
Τιμή ανά m²
4.423 €/m²
Ενεργειακή απόδοση
  • Κατάσταση

    Νεόδμητο / Υπό κατασκευή
  • Ενεργειακή πιστοποίηση

    Χωρίς ταξινόμηση
Ανακαλύψτε κάθε γωνιά του ακινήτου
+4
Πρόσθετες επιλογές

Επικοινώνησε με τον αγγελιοδότη

Ή