Διαμέρισμα άριστη κατάσταση, τέταρτος όροφος, Kustošija Centar, Ζάγκρεμπ

€ 400.000
5+
118 m²
2
4
Βεράντα

Σημείωση

Τελευταία ενημέρωση: 03/05/2026
Περιγραφή

This description has been translated automatically and may not be accurate

κωδικός: 482-1

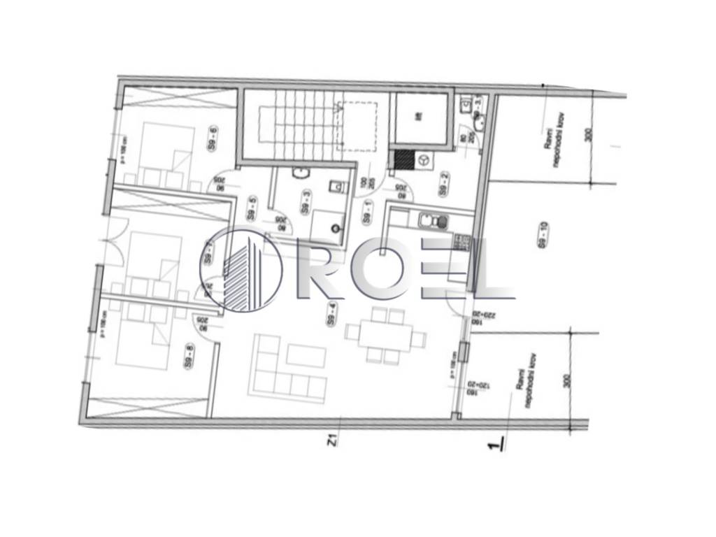
A beautiful four-room penthouse is located on the fourth floor of a new building in Ilica, NKP 117.60 m2. It consists of a hallway (2.79 m2), a storage room (4.71 m2), a bathroom with a toilet (12.10 m2), a kitchen, a living room and a dining room (43.13 m2) with access to a terrace with a view of 19.28 m2 (4.82 m2) and a balcony size 9.67 m2 (2.42 m2), three bedrooms (11.81 m2, 12.27 m2 and 13.30 m2) and toilet (1.70 m2). (4.64 m2). The apartment has two outdoor parking spaces of 12.50 m2 (3.13 m2). The living area of the apartment is 104 m2. The floor in the apartment will be covered with parquet and ceramics. The external carpentry is PVC, glazed with three-layer IZO glass, and the internal wooden veneer. External blinds are provided for protection from the sun. Electricity will be used as an energy source for heating and hot water preparation. An air-water type heat pump (underfloor heating) is provided to meet the building's total heating needs. Electricity is also used for cooking purposes.
June, 2025
MICRO LOCATION:
The building is located in one of the most sought-after districts of Zagreb, where residents enjoy a peaceful family life surrounded by nature, while at the same time city amenities are within reach. It has good traffic connections. The bus stop is across the street from the building. It is located near all amenities essential for life.
Εάν θέλετε να μάθετε περισσότερα, μπορείτε να μιλήσετε με Monika Kuliš.
Χαρακτηριστικά
Τύπος
Διαμέρισμα
Συμβόλαιο
Πώληση
Όροφος
4 όροφος
Εμβαδόν
118 m²
Δωμάτια
5+
Υπνοδωμάτια
3
Μπάνια
2
Βεράντα
Ναι
Πληροφορίες τιμής
Τιμή
€ 400.000
Τιμή ανά m²
3.390 €/m²
Ενεργειακή απόδοση
  • Έτος κατασκευής

    2025
  • Κατάσταση

    Πολύ καλή / Ανακαινισμένο
  • Ενεργειακή πιστοποίηση

    Χωρίς ταξινόμηση
Ανακαλύψτε κάθε γωνιά του ακινήτου
+19
Πρόσθετες επιλογές

Επικοινώνησε με τον αγγελιοδότη

Ή