Τριάρι νέο, Voštarnica - Poluotok, Ζάδαρ

€ 442.200
3
110 m²
1
Όχι
Βεράντα

Σημείωση

Τελευταία ενημέρωση: 24/01/2026
Περιγραφή

κωδικός: 108201-10

Stan u prizemlju sa zelenim vrtom – Bili Brig

U ponudi je moderan stan smješten u prizemlju ekskluzivne zgrade s ukupno 6 stambenih jedinica.
Stan pruža savršenu ravnotežu komfora, privatnosti i funkcionalnosti – idealan za obiteljski život ili kao mirna urbana oaza.

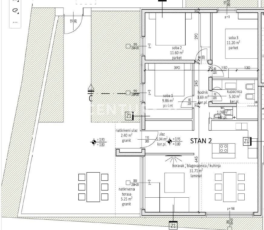
Stan 2 – netto površine 110,55 m2 (bruto 257,84 m2)
Smješten je na visini od 0,95 m iznad tla te ima zaseban ulaz sa bočne strane zgrade.

Sastoji se od
ulaznog prostora
open space dnevnog dijela s kuhinjom, blagovaonicom i dnevnim boravkom
natkrivene terase
natkrivenog ulaza
tri prostrane spavaće sobe
kupaonice i zasebnog WC-a

Površine
stambeni dio 80,39 m2
natkrivena terasa 5,25 m2
natkriveni ulaz
zeleni vrt 76,23 m2
popločano dvorište
dva parkirna mjesta

Ukupna neto obračunska površina iznosi 110,55 m2.

Zgrada je projektirana s naglaskom na kvalitetu života – samo šest stanova, vrhunska izolacija i pažljivo odabrani materijali. Komunikacija među etažama ostvarena je zatvorenim stubištem, što dodatno doprinosi miru i privatnosti.

Posebnosti stana
privatni zeleni vrt i dvorište
odlična orijentacija i puno prirodnog svjetla
poseban ulaz – osjećaj samostojeće kuće
mirno i uređeno okruženje



Useljenje 06/2026.



Stojim vam na raspolaganju za sva pitanja.

Saša Martišek,

licencirani agent

T: 097 75 47 775

E: sasa.martisek@c21.hr

CENTURY 21 LIDER NEKRETNINE
Εάν θέλετε να μάθετε περισσότερα, μπορείτε να μιλήσετε με Smiljana Drk.
Χαρακτηριστικά
Τύπος
Διαμέρισμα | Ακίνητο μεσαίας κατηγορίας
Συμβόλαιο
Πώληση
Σύνολο ορόφων
2
Ανελκυστήρας
Όχι
Εμβαδόν
110 m²
Δωμάτια
3
Υπνοδωμάτια
3
Μπάνια
1
Μπαλκόνι
Όχι
Βεράντα
Ναι
Θέρμανση
Αυτόνομη, θερμαντικά σώματα, ρεύμα
Κλιματισμός
Αυτόνομη
Πληροφορίες τιμής
Τιμή
€ 442.200
Τιμή ανά m²
4.020 €/m²
Ενεργειακή απόδοση
  • Έτος κατασκευής

    2025
  • Κατάσταση

    Νεόδμητο / Υπό κατασκευή
  • Θέρμανση

    Αυτόνομη, θερμαντικά σώματα, ρεύμα
  • Κλιματιστικό μηχάνημα

    Αυτόνομη
Ανακαλύψτε κάθε γωνιά του ακινήτου
+25
Πρόσθετες επιλογές

Επικοινώνησε με τον αγγελιοδότη

Ή