map icon

Διαμέρισμα ημιυπόγειο, Kostrena

Kostrena
€ 870.000
5
209 m²
3
1
Ναι
Μπαλκόνι
Βεράντα

Σημείωση

Τελευταία ενημέρωση: 17/11/2025
Περιγραφή

This description has been translated automatically and may not be accurate

κωδικός: 6767

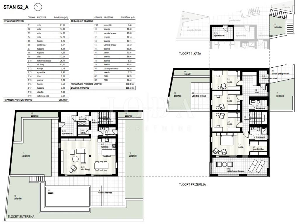
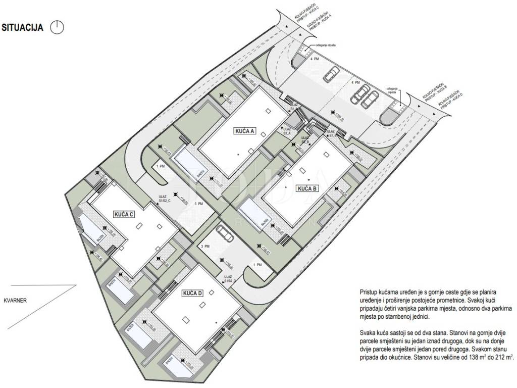
We are selling a luxurious duplex apartment with a total area of 210 m in a green and quiet part of Kostrena. The apartment is located in a new building with a beautiful sea view and includes a private pool, terraces, a landscaped garden and top-notch technical equipment.

The apartment consists of:
- living room and dining room with kitchen
- four bedrooms, a living room
- three bathrooms, an additional toilet, a hallway and a terrace

The apartment includes the following associated spaces:
- private pool
- two terraces and a landscaped garden
- two outdoor parking spaces
- storage room

The property is equipped with:
- underfloor heating via a heat pump
- air conditioning
- aluminum joinery
- security doors and top-quality finishing materials

It is being sold on a turnkey basis, without furniture. The seller is VAT registered.
Expected completion of construction in 2026.

ID CODE: 6767

Stjepan Vrsalović, mag.oec.
Agent s licencom
Mob: 0914848887
Tel: 051403771
E-mail: stjepan@joda-nekretnine.hr
www.joda-nekretnine.hr
Εάν θέλετε να μάθετε περισσότερα, μπορείτε να μιλήσετε με Stjepan Vrsalović, mag.oec..
Χαρακτηριστικά
Τύπος
Διαμέρισμα
Συμβόλαιο
Πώληση
Όροφος
1
Ανελκυστήρας
Ναι
Εμβαδόν
209 m² | επαγγελματικό 565 m²
Δωμάτια
5
Υπνοδωμάτια
4
Μπάνια
3
Μπαλκόνι
Ναι
Βεράντα
Ναι
Κλιματισμός
Αυτόνομη, κρύο/ζέστη
Λεπτομέρεια επιφάνειας

Κατοικία

Όροφος
1
Εμβαδόν
209,0 m²
Συντελεστής
100%
Τύπος επιφάνειας
Κύρια
Συνολική επιφάνεια
209,0 m²

Γη

Όροφος
Ισόγειο
Εμβαδόν
356,0 m²
Συντελεστής
100%
Τύπος επιφάνειας
Δευτερεύουσα
Συνολική επιφάνεια
356,0 m²
Πληροφορίες τιμής
Τιμή
€ 870.000
Τιμή ανά m²
1.540 €/m²
Ενεργειακή απόδοση
  • Έτος κατασκευής

    2026
  • Κλιματιστικό μηχάνημα

    Αυτόνομη, κρύο/ζέστη
  • Ενεργειακή πιστοποίηση

    Δεν υπόκειται
Ανακαλύψτε κάθε γωνιά του ακινήτου
+9
Πρόσθετες επιλογές

Επικοινώνησε με τον αγγελιοδότη

Ή