Τριάρι νέο, ισόγειο, Dobrinj

€ 265.000
3
80 m²
1
ΙΣ

Σημείωση

Τελευταία ενημέρωση: 29/03/2026
Περιγραφή

This description has been translated automatically and may not be accurate

κωδικός: 6481

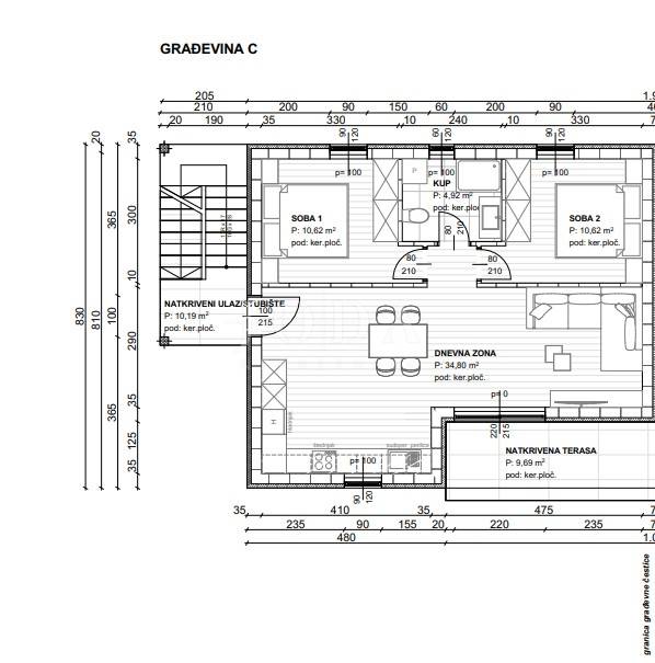
A ground-floor apartment is for sale in a luxury duplex building (Building C), located in the heart of one of the most attractive parts of the island of Krk, in the village of Čižići, right by the sea.
The building is under construction, with completion planned for the beginning of summer 2025. It is a building with three apartments, each having its own separate entrance via an external staircase, ensuring privacy and comfort.

The apartment spans 80.84 m and consists of two bedrooms of 10.62 m each, a living room with an area of 34.80 m, a bathroom (4.92 m), and a terrace with a covered entrance.
The apartment comes with one parking space, and the entire building is located in a peaceful yet very attractive part of Čižići, which is especially popular during the summer months due to its proximity to the sea and natural beauty.
It is a rare opportunity to find such a property on the first line to the sea on the island of Krk, offering not only a comfortable living space but also the potential for an excellent business opportunity in one of the most sought-after destinations on the Adriatic.

ID CODE: 6481

Josip Šikić, mag.oec
Agent s licencom
Mob: +385 91 890 4694
Tel: +385 51 403 771
E-mail: info@joda-nekretnine.hr
www.joda-nekretnine.hr
Χαρακτηριστικά
Τύπος
Διαμέρισμα
Συμβόλαιο
Πώληση
Όροφος
Ισόγειο
Εμβαδόν
80 m²
Δωμάτια
3
Υπνοδωμάτια
2
Μπάνια
1
Μπαλκόνι
Όχι
Βεράντα
Όχι
Κλιματισμός
Αυτόνομη, κρύο/ζέστη
Πληροφορίες τιμής
Τιμή
€ 265.000
Τιμή ανά m²
3.313 €/m²
Ενεργειακή απόδοση

Κατανάλωση ενέργειας

A+

Ανακαλύψτε κάθε γωνιά του ακινήτου
+9
Πρόσθετες επιλογές

Επικοινώνησε με τον αγγελιοδότη

Ή