Τριάρι νέο, πρώτος όροφος, Dobrinj

€ 265.000
3
73 m²
1
1

Σημείωση

Τελευταία ενημέρωση: 29/03/2026
Περιγραφή

This description has been translated automatically and may not be accurate

κωδικός: 6479

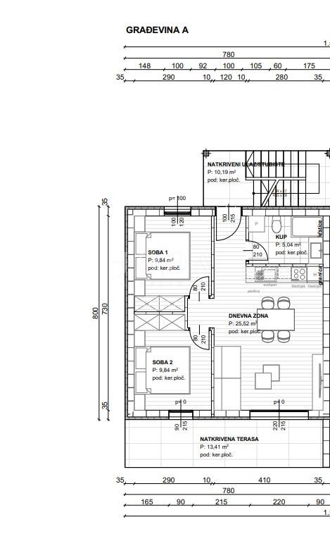
A 1st-floor apartment is for sale, located in a luxury semi-detached residential building in the heart of one of the most attractive parts of the island of Krk, in the village of Čižići, right by the sea. The building is under construction, with completion expected in early summer 2025. It is a building with three apartments, each with its own separate entrance via an external staircase, providing a sense of privacy and comfort.

The apartment on the 1st floor covers an area of 73.84 m. The interior includes two bedrooms, each 9.84 m, a living room of 25.52 m, a bathroom (5.04 m), a terrace, and a covered entrance. The apartment comes with one parking space, and the entire building is located in a quiet yet highly attractive part of Čižići, which is particularly popular during the summer months due to its proximity to the sea and natural beauty.

It is a rare opportunity to find such a property in the first row to the sea on the island of Krk, offering not only comfortable living but also the potential for an excellent business opportunity in one of the most desirable destinations on the Adriatic.

ID CODE: 6479

Josip Šikić, mag.oec
Agent s licencom
Mob: +385 91 890 4694
Tel: +385 51 403 771
E-mail: info@joda-nekretnine.hr
www.joda-nekretnine.hr
Χαρακτηριστικά
Τύπος
Διαμέρισμα
Συμβόλαιο
Πώληση
Όροφος
1 όροφος
Εμβαδόν
73 m²
Δωμάτια
3
Υπνοδωμάτια
2
Μπάνια
1
Μπαλκόνι
Όχι
Βεράντα
Όχι
Κλιματισμός
Αυτόνομη, κρύο/ζέστη
Πληροφορίες τιμής
Τιμή
€ 265.000
Τιμή ανά m²
3.630 €/m²
Ενεργειακή απόδοση

Κατανάλωση ενέργειας

A+

Ανακαλύψτε κάθε γωνιά του ακινήτου
+9
Πρόσθετες επιλογές

Επικοινώνησε με τον αγγελιοδότη

Ή