1/17


Οικοδομήσιμο οικόπεδο προς Πώληση
Opatija€ 1.300.000
Τελευταία ενημέρωση: 18/11/2025
Περιγραφή
κωδικός: 15545
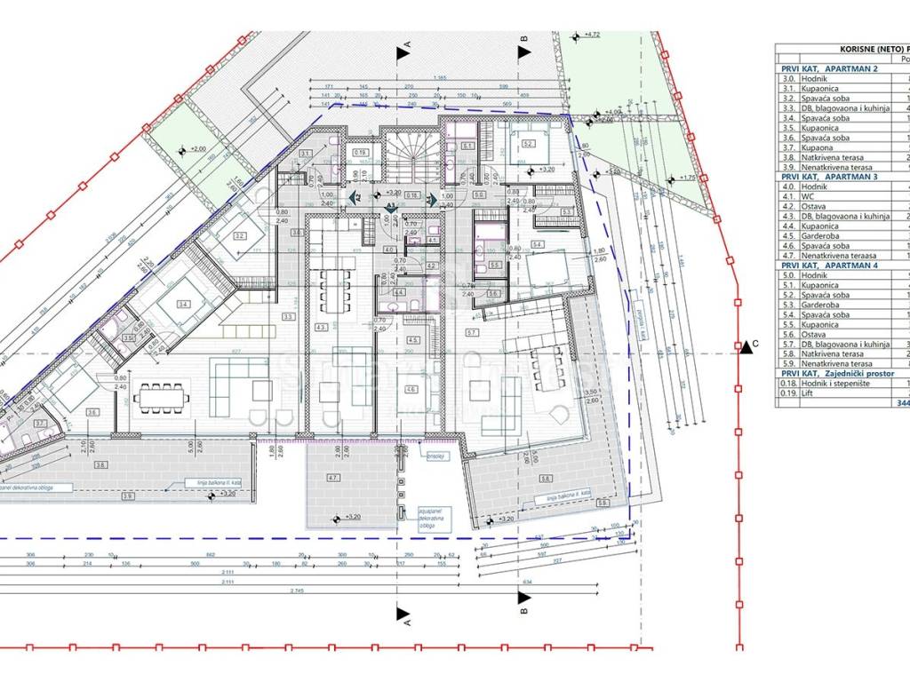
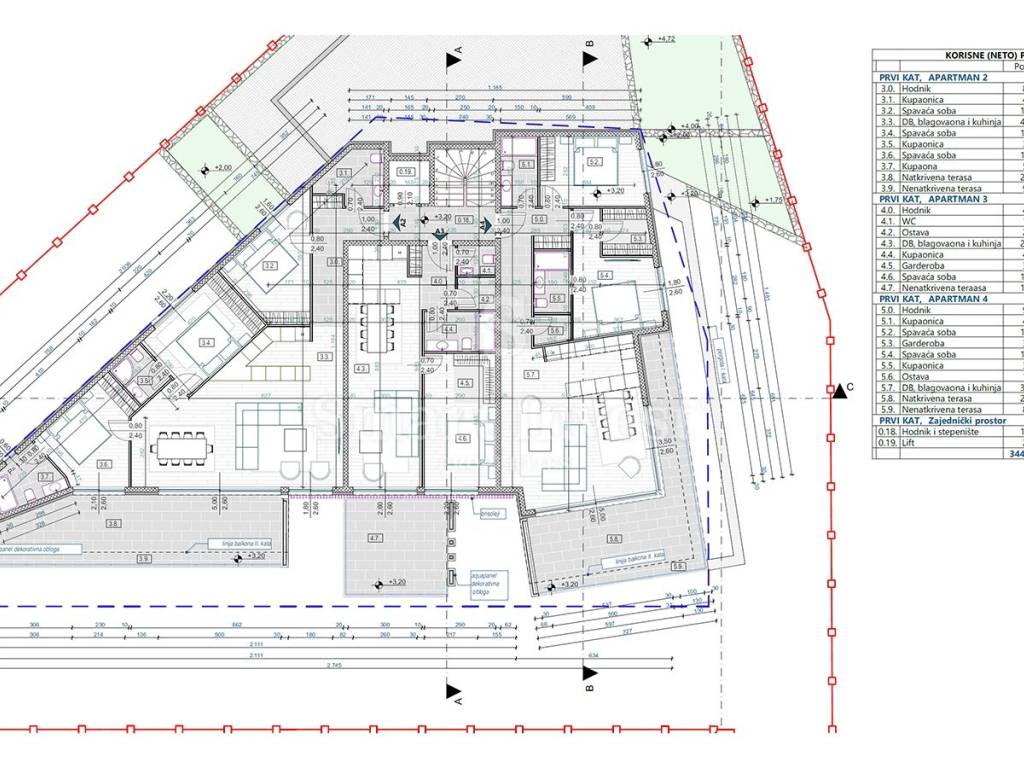
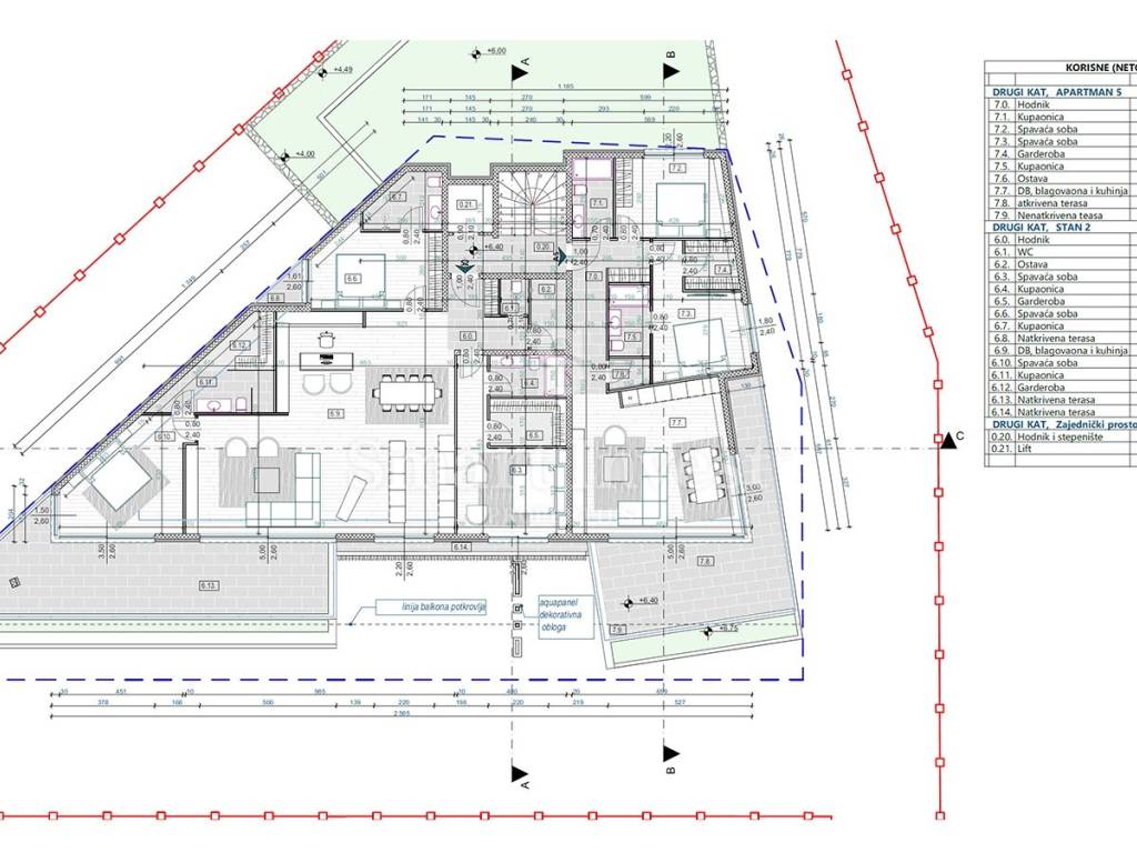
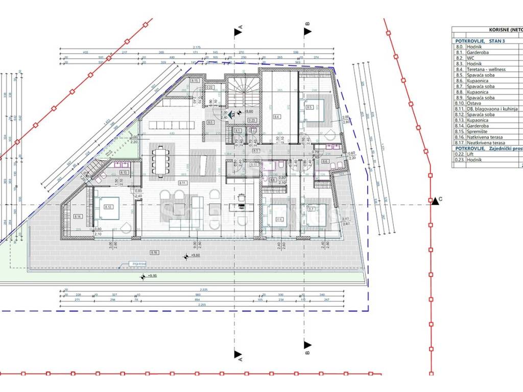
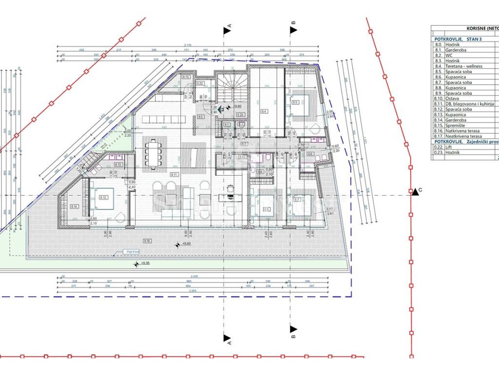
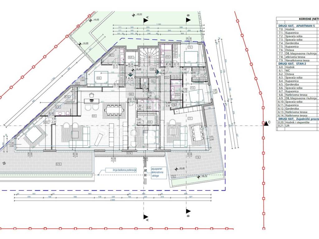
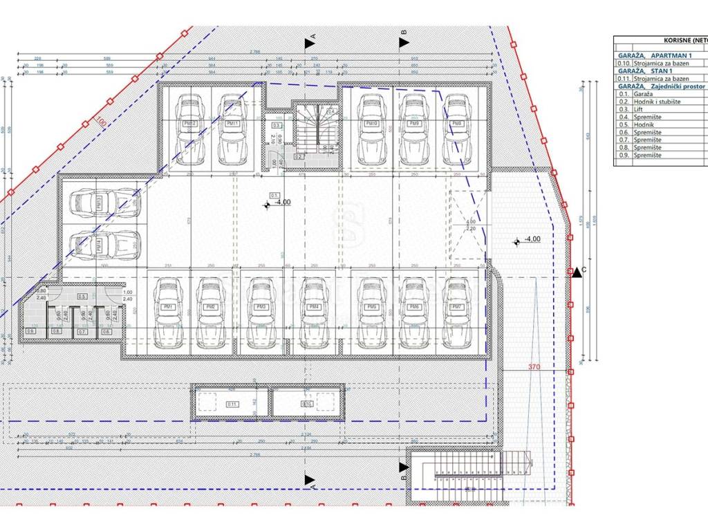
OPATIJA, teren od 1168 m2 s građevinskom dozvolom za izgradnju stambene zgrade s 8 stanova.
Za razgled i detalje slobodno nazovite +385/99/320-0008
ID KOD AGENCIJE: 15545
Katarina Žiganto
Agent s licencom
Mob: +385/91/3200021
E-mail: katarina@smart-invest.hr
www.smart-invest.hr
Χαρακτηριστικά
- Συμβόλαιο
- Πώληση
- Τύπος
- Οικοδομήσιμο οικόπεδο
- Εμβαδόν
- 1.168 m²
Πληροφορίες τιμής
- Τιμή
- € 1.300.000
- Τιμή ανά m²
- 1.113 €/m²
Ανακαλύψτε κάθε γωνιά του ακινήτου
Πρόσθετες επιλογές