map icon

Τριάρι νέο, ισόγειο, Lovran

Lovran
€ 599.000
3
112 m²
2
1
Βεράντα

Σημείωση

Τελευταία ενημέρωση: 17/11/2025
Περιγραφή

This description has been translated automatically and may not be accurate

κωδικός: 14586

LOVRAN, LUXURIOUS APARTMENT WITH GARDEN AND SEA VIEW IN SUPERB RESIDENTIAL COMPLEX.

For sale is a luxurious apartment, 2 bedrooms + living room, with a garden and a spacious terrace offering a spectacular view of the sea. The apartment is located in a superb new building, and is only a few minutes' walk from the sea and the center of Lovran with all the necessary amenities. Estimated completion of works 12/2024. years.

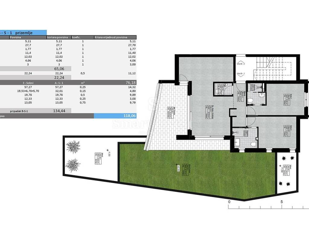
APARTMENT B-S-1
floor: ground floor
2 bedrooms, 2 bathrooms, 1 toilet
total net area of the apartment: 118.06 m2
terrace area: 22.24 m2
garden terrace area: 57.27 m2
garden area: 32.01 m2
garage parking space GPM-1: 19.78 m2
outdoor parking space PM-1: 12.33 m2
storage room SP-1: 13.05 m2

This beautiful apartment is designed for maximum comfort and luxury. It offers you a corridor, toilet, spacious living room with kitchen and dining room with access to a large terrace, and two bedrooms with en-suite bathrooms. But what makes this apartment special is the large garden terrace - an ideal place to spend time with family and friends, and three smaller gardens.

In addition, the apartment has 1 garage parking space, 1 outdoor parking space and a storage room, which provides you with additional convenience.

EQUIPMENT
heating and cooling on a heat pump in a combination of floor heating and fan coil system
external carpentry SCHUCO
high-quality ceramics and parquet
anti-burglary entrance door
alarm system

This apartment offers you an incredible luxury living space with high-quality equipment and a beautiful view of the sea, and is situated in the immediate vicinity of the center of Lovran, the sea and beaches.

For more information and a viewing appointment call: +385/99/320-0008

ID CODE: 14586

Marin Baričević
Agent s licencom
Mob: +385(0)99/320-0009
E-mail: marin@smart-invest.hr
www.smart-invest.hr

Ante Demo
Agent s licencom
Mob: +385/91/4201344
E-mail: ante@smart-invest.hr
www.smart-invest.hr
Εάν θέλετε να μάθετε περισσότερα, μπορείτε να μιλήσετε με Marin Baričević.
Χαρακτηριστικά
Τύπος
Διαμέρισμα
Συμβόλαιο
Πώληση
Όροφος
1
Εμβαδόν
112 m² | επαγγελματικό 201 m²
Δωμάτια
3
Υπνοδωμάτια
2
Μπάνια
2
Μπαλκόνι
Όχι
Βεράντα
Ναι
Γκαράζ, χώροι στάθμευσης
1 σε πάρκινγκ/κλειστό πάρκινγκ
Άλλα χαρακτηριστικά
  • Πόρτα ασφαλείας
  • Συναγερμός
Λεπτομέρεια επιφάνειας

Κατοικία

Όροφος
1
Εμβαδόν
112,0 m²
Συντελεστής
100%
Τύπος επιφάνειας
Κύρια
Συνολική επιφάνεια
112,0 m²

Γη

Όροφος
Ισόγειο
Εμβαδόν
89,0 m²
Συντελεστής
100%
Τύπος επιφάνειας
Δευτερεύουσα
Συνολική επιφάνεια
89,0 m²
Πληροφορίες τιμής
Τιμή
€ 599.000
Τιμή ανά m²
2.980 €/m²
Ενεργειακή απόδοση
  • Έτος κατασκευής

    2024
  • Κατάσταση

    Νεόδμητο / Υπό κατασκευή
  • Ενεργειακή πιστοποίηση

    Δεν υπόκειται
Ανακαλύψτε κάθε γωνιά του ακινήτου
+13
Πρόσθετες επιλογές

Επικοινώνησε με τον αγγελιοδότη

Ή