map icon

Δυάρι νέο, ισόγειο, Tar-Vabriga

Tar-Vabriga
€ 202.479
2
50 m²
1
1
Ναι
Βεράντα
Επιπλωμένο

Σημείωση

Τελευταία ενημέρωση: 17/11/2025
Περιγραφή

This description has been translated automatically and may not be accurate

κωδικός: 14018

ISTRIA - POREČ - VABRIGA, For sale is a comfortable apartment, 1 bedroom + living room, with a garden of 34 m2, in a new building with an elevator on an attractive location near the sea - only 10 minutes' walk to the nearest beach!

The modern building is built by a reliable investor with many years of experience and a reference list in residential construction.

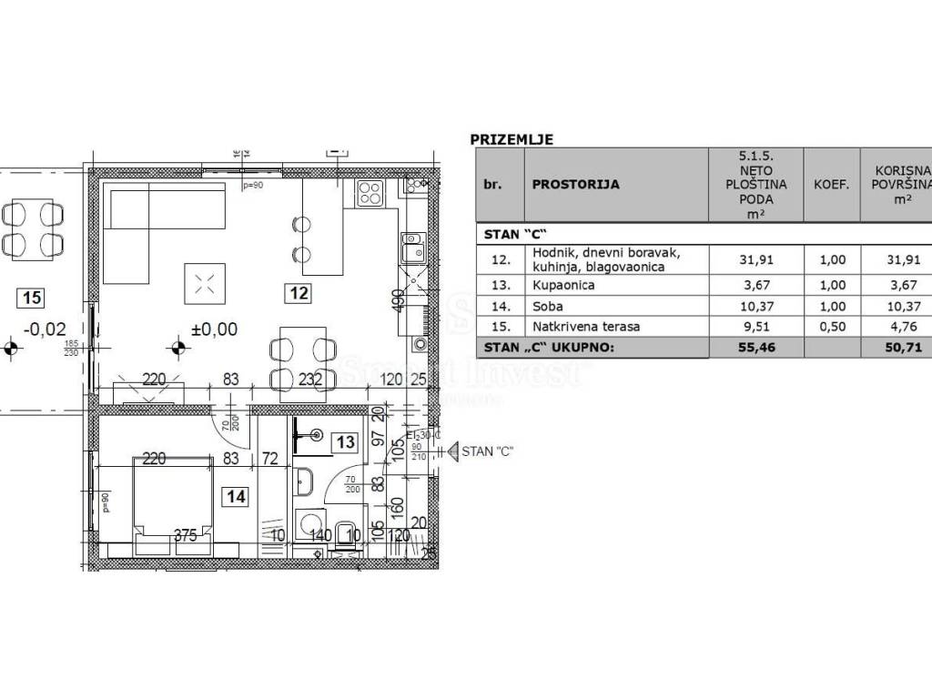
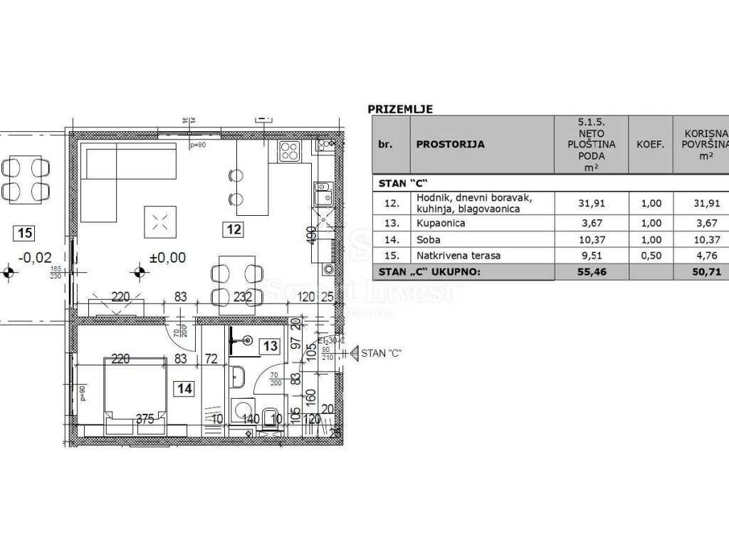
APARTMENT C with a net usable area of 50.71 m2 and a garden of 34 m2 is situated on the ground floor and consists of a corridor, living room with kitchen and dining area, bedroom, bathroom, and an covered terrace of 9.51 m2 (coefficient 0.5=4.76 m2). The apartment also has a garden of 34 m2, a storage room of 1.74 m2 and a parking space of 12.48 m2.

The apartments will be equipped with heating/cooling via heat pump air conditioning and underfloor heating in the bathrooms, and the building will have an ETICS facade and an elevator.

Very attractive location near all daily amenities, just 10 minutes' walk to the nearest beach and 10 minutes' drive to the center of Poreč.

*The stated price refers to a completely finished apartment on a turnkey basis, without furniture. The price includes 25% VAT, the buyer doesnt pay the real estate transfer tax. In case of buying on a legal entity registered in Croatia it is possible to refund full VAT after the purchase.

For more information and a viewing appointment call: +385/91/320-0021

ID CODE: 14018

Katarina Žiganto
Agent s licencom
Mob: +385/91/3200021
E-mail: katarina@smart-invest.hr
www.smart-invest.hr
Εάν θέλετε να μάθετε περισσότερα, μπορείτε να μιλήσετε με Katarina Žiganto.
Χαρακτηριστικά
Τύπος
Διαμέρισμα
Συμβόλαιο
Πώληση
Όροφος
1
Ανελκυστήρας
Ναι
Εμβαδόν
50 m² | επαγγελματικό 84 m²
Δωμάτια
2
Υπνοδωμάτια
1
Μπάνια
1
Επιπλωμένο
Ναι
Μπαλκόνι
Όχι
Βεράντα
Ναι
Κλιματισμός
Αυτόνομη, κρύο/ζέστη
Άλλα χαρακτηριστικά
  • Πόρτα ασφαλείας
Λεπτομέρεια επιφάνειας

Κατοικία

Όροφος
1
Εμβαδόν
50,0 m²
Συντελεστής
100%
Τύπος επιφάνειας
Κύρια
Συνολική επιφάνεια
50,0 m²

Γη

Όροφος
Ισόγειο
Εμβαδόν
34,0 m²
Συντελεστής
100%
Τύπος επιφάνειας
Δευτερεύουσα
Συνολική επιφάνεια
34,0 m²
Πληροφορίες τιμής
Τιμή
€ 202.479
Τιμή ανά m²
2.410 €/m²
Ενεργειακή απόδοση
  • Έτος κατασκευής

    2024
  • Κατάσταση

    Νεόδμητο / Υπό κατασκευή
  • Κλιματιστικό μηχάνημα

    Αυτόνομη, κρύο/ζέστη
  • Ενεργειακή πιστοποίηση

    Δεν υπόκειται
Ανακαλύψτε κάθε γωνιά του ακινήτου
+6
Πρόσθετες επιλογές

Επικοινώνησε με τον αγγελιοδότη

Ή