Μονοκατοικία 352 τμ, νέα, Vodnjan

€ 1
5
352 m²
3
Βεράντα

Σημείωση

Τελευταία ενημέρωση: 30/04/2026
Περιγραφή

This description has been translated automatically and may not be accurate

κωδικός: 12371

ISTRIA - VODNJAN, For sale is a luxury 4-bedrooms villa with a sauna, swimming pool and amazing view of the sea, Brijuni Islands, vineyards and olive groves!

The complex of 3 luxury villas with swimming pools is situated on an excellent location in a quiet area of Vodnjan, with a unique view of the sea and the Brijuni National Park that extends from the plot. The plot is the last building plot, after which there are only olive groves.

It is being built by a reliable developer, one of the leading developers in the region known for the high quality of construction and equipment. Planned start of construction in autumn 2022, planned completion at the end of 2023.

VILLA V3
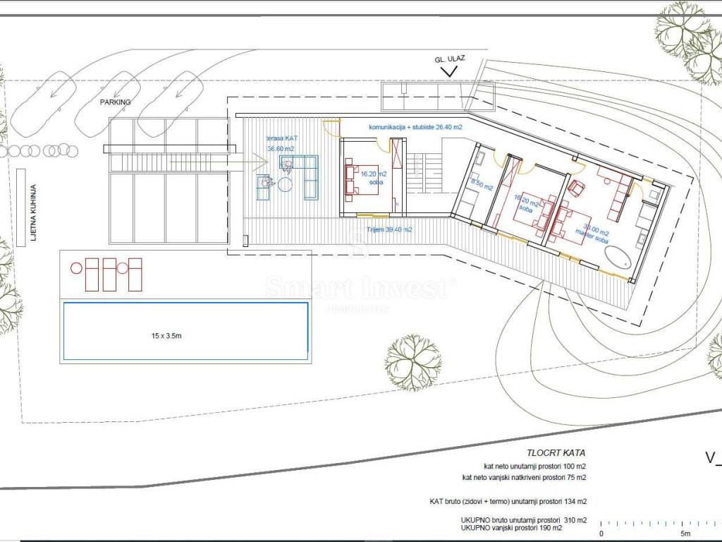
The villa of 353 sqm (net area) is situated on a landdcaped plot of 1.363 sqm. Has 4 bedrooms, 3 bathrooms + 1 toilet, a sauna with a shower.

On the ground floor is a covered entrance, hall with a wardrobe, spacious open-space living room with kitchen and dining area and with access to a big covered terrace with lounge area, one comfortable bedroom with en-suite bathroom, sauna with shower, guest toilet and laundry room.

On the first floor there is a master bedroom with en-suite bathroom, two more bedrooms with a shared bathroom, spacious covered terrace with lounge area and unique panoramic view of the sea, Brijuni Islands, vineyards and olive groves.

The territory of the villa is completely fenced and landscaped, here is a swimming pool with a sun deck, 2 parking spaces.

LOCATION
The complex is situated on an excellent, quiet location on the edge of the construction area, surrounded by vineyards and olive groves. There are several supermarkets nearby (500 m), pharmacy, restaurants, while distance from Fažana with beautiful pebble beaches is 5 km, Pula airport - 11 km.

PRICE
This villa is of high luxury, so the high quality of construction and materials is expected. In this phase, the decoration and equipment can be adapted to the wishes of the customer. 25% VAT is included in the price, the buyer is exempt from real estate sales tax. In the case of a purchase from a Croatian company, a full VAT refund is possible after the sale.

For additional information and a viewing appointment, call: +385/99/320-0008

ID CODE: 12371

Agencija Opatija
Ovlašteni posrednik
Mob: +385/99/320-0008
E-mail: office@smart-invest.hr
www.smart-invest.hr
Εάν θέλετε να μάθετε περισσότερα, μπορείτε να μιλήσετε με Agencija Opatija.
Χαρακτηριστικά
Τύπος
Μονοκατοικία
Συμβόλαιο
Πώληση
Όροφος
1
Εμβαδόν
352 m² | επαγγελματικό 1.715 m²
Δωμάτια
5
Υπνοδωμάτια
4
Μπάνια
3
Μπαλκόνι
Όχι
Βεράντα
Ναι
Κλιματισμός
Αυτόνομη, κρύο/ζέστη
Άλλα χαρακτηριστικά
  • Πόρτα ασφαλείας
  • Συναγερμός
  • Πισίνα
Λεπτομέρεια επιφάνειας

Κατοικία

Όροφος
1
Εμβαδόν
352,0 m²
Συντελεστής
100%
Τύπος επιφάνειας
Κύρια
Συνολική επιφάνεια
352,0 m²

Γη

Όροφος
Ισόγειο
Εμβαδόν
1.363,0 m²
Συντελεστής
100%
Τύπος επιφάνειας
Δευτερεύουσα
Συνολική επιφάνεια
1.363,0 m²
Πληροφορίες τιμής
Τιμή
€ 1
Τιμή ανά m²
0 €/m²
Ενεργειακή απόδοση
  • Έτος κατασκευής

    2023
  • Κατάσταση

    Νεόδμητο / Υπό κατασκευή
  • Κλιματιστικό μηχάνημα

    Αυτόνομη, κρύο/ζέστη
  • Ενεργειακή πιστοποίηση

    Δεν υπόκειται
Ανακαλύψτε κάθε γωνιά του ακινήτου
+17
Πρόσθετες επιλογές

Επικοινώνησε με τον αγγελιοδότη

Ή