Τεσσάρι νέο, τρίτος όροφος, Tar-Vabriga

€ 646.600
4
181 m²
2
3
Ναι
Μπαλκόνι
Βεράντα

Σημείωση

Τελευταία ενημέρωση: 04/02/2026
Περιγραφή

This description has been translated automatically and may not be accurate

κωδικός: 42359

ISTRIA, TAR Exclusive two-storey 3BR+LR apartment with a roof terrace and panoramic sea views

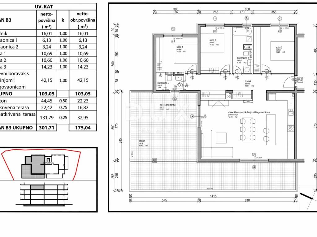
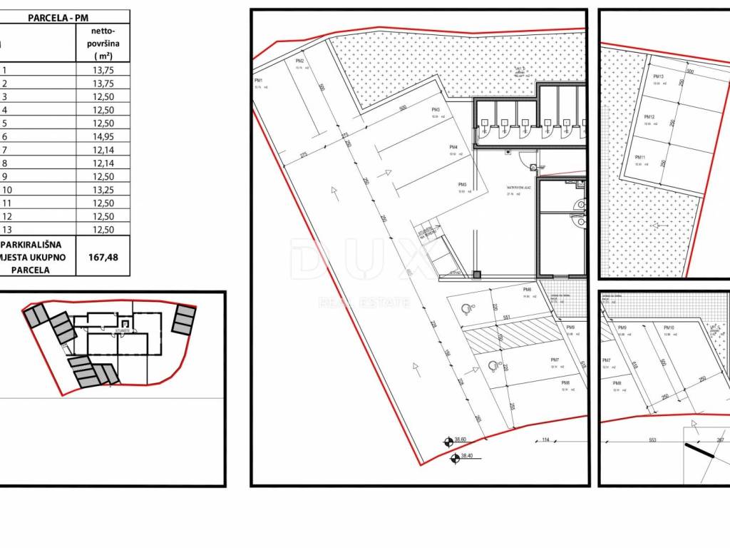
In the quiet settlement of Tara, just 350 m from the sea and a ten-minute walk to the well-maintained beaches, there is a modern new building of top quality with a total of 13 apartments. On the very third floor of the building is this unique two-storey penthouse, which extends over 175.04 m of living space and represents a combination of luxury, comfort and a superb view. APARTMENT DESCRIPTION - B3 First floor: * spacious entrance hall with a designated cloakroom * large open space area of as much as 42.15 m with a living room, kitchen and dining room, and where there is also access to a spacious, partially covered terrace that stretches the width of the entire apartment. * three spacious bedrooms. * then two modern and comfortable bathrooms. Second floor: An internal staircase leads to the roof terrace of 131.79 m, which offers a panoramic and unobstructed view of the sea and the Istrian landscape. This space offers unlimited customization options - future owners can create their own oasis with a jacuzzi, summer bar, lounge area or a space for socializing and having fun with family and friends. ADDITIONAL INFORMATION - The building is built according to the highest construction standards, and the apartment is equipped with: * earthquake-resistant construction * three-layer PVC joinery with roller shutters and mosquito nets * electric underfloor heating in all rooms * air conditioning in each room * 10 cm of high-quality facade insulation (styrofoam and wool) * security doors * an elevator connecting all floors of the building * the apartment has its own two parking spaces included in the price of the apartment, while storage rooms are available with an additional purchase. ADDITIONAL: * Planned completion of construction and move-in: 12/2025. years * Ownership in order, natural person (1/1) Ideal opportunity for a luxurious family home, holiday apartment or investment with a high return through tourist rental. This apartment is not just real estate - it is a real lifestyle choice for those who want to enjoy luxury, comfort and spectacular sea views.

Dear clients, the agency commission is charged in accordance with the General Business Conditions: www.dux-nekretnine.hr/opci-uvjeti-poslovanja

ID CODE: 42359

Loren Kečan
Agent s licencom
Mob: +385 95 576 8337
Tel: +385 91 480 8808
E-mail: loren@dux-istra.com
www.dux-istra.com
Εάν θέλετε να μάθετε περισσότερα, μπορείτε να μιλήσετε με Loren Kečan.
Χαρακτηριστικά
Τύπος
Διαμέρισμα
Συμβόλαιο
Πώληση
Όροφος
3 όροφος
Ανελκυστήρας
Ναι
Εμβαδόν
181 m²
Δωμάτια
4
Υπνοδωμάτια
3
Μπάνια
2
Μπαλκόνι
Ναι
Βεράντα
Ναι
Κλιματισμός
Αυτόνομη, κρύο/ζέστη
Πληροφορίες τιμής
Τιμή
€ 646.600
Τιμή ανά m²
3.572 €/m²
Ενεργειακή απόδοση

Κατανάλωση ενέργειας

A+

Ανακαλύψτε κάθε γωνιά του ακινήτου
+2
Πρόσθετες επιλογές

Επικοινώνησε με τον αγγελιοδότη

Ή