Τεσσάρι νέο, ισόγειο, Centar, Opatija

€ 1
4
171 m²
2
ΙΣ
Ναι
Μπαλκόνι
Βεράντα

Σημείωση

Τελευταία ενημέρωση: 06/05/2026
Περιγραφή

This description has been translated automatically and may not be accurate

κωδικός: 41240

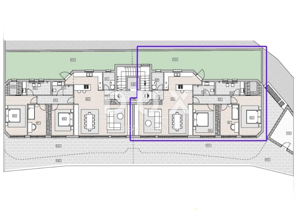
OPATIJA, CENTER - special new building with a spacious terrace, garage and sea view

Dux is a top-quality new building that stands out as currently the closest to the sea and the very center of Opatija, and at the same time available on the market. This luxurious building is located in a quiet, dead-end street with no traffic, which provides complete privacy and silence, and yet is ideally located so that you can easily walk, in just a few minutes, to the center of Opatija and the first beaches. Apartment A4 is located on the ground floor and covers 168 m, offering a high level of comfort and a functional layout. From the entrance hall you enter an open concept that combines the living room, kitchen and dining room into a harmonious, spacious and bright whole, ideal for socializing and relaxing. From this space you access an additional hallway that leads to three bedrooms and two bathrooms. The master bedroom has its own bathroom and dressing room, providing complete privacy and comfort. From each bedroom, as well as from the living room, it is possible to exit to a spacious 39m2 terrace with a beautiful view of the sea, perfect for enjoying the outdoors. The apartment also has two practical storage rooms, and from the kitchen there is access to another uncovered 10 m2 terrace, which further enriches the living space and allows you to enjoy the outdoor environment. This apartment also has two garage parking spaces and a storage room, which further increases the practicality and value of this property. The building is equipped with top-quality materials and technologies: - Schüco aluminum joinery (panorama version with thin profiles, tinted triple-layer glass) - first-class Italian ceramics - heat pump for each apartment + underfloor heating throughout the apartment - separate multi-split air conditioning system in each room - top-quality sanitary ware, floors and interior doors - elevator - garage with high ceilings - storage room for each apartment It is especially important to note that the center of Opatija or the first beach is a very gentle downhill walk, within 5 minutes of easy walking, while by car it takes literally 60 seconds. This is a truly rare opportunity to purchase a property in Opatija that combines a prime location, luxurious amenities and impeccable construction quality. To arrange a viewing of the property, call the agent with confidence - consultation in German is possible.

Dear clients, the agency commission is charged in accordance with the General Terms and Conditions: www.dux-nekretnine.hr/opci-uvjeti-poslovanja

ID CODE: 41240

Marko Šutanovac
Agent s licencom
Mob: +385 91 189 8332
Tel: +385 91 480 8808
E-mail: marko@dux-nekretnine.hr
www.dux-opatija.com
Εάν θέλετε να μάθετε περισσότερα, μπορείτε να μιλήσετε με Marko Šutanovac.
Χαρακτηριστικά
Τύπος
Διαμέρισμα
Συμβόλαιο
Πώληση
Όροφος
Ισόγειο
Ανελκυστήρας
Ναι
Εμβαδόν
171 m²
Δωμάτια
4
Υπνοδωμάτια
3
Μπάνια
2
Μπαλκόνι
Ναι
Βεράντα
Ναι
Γκαράζ, χώροι στάθμευσης
1 σε πάρκινγκ/κλειστό πάρκινγκ
Κλιματισμός
Αυτόνομη, κρύο/ζέστη
Πληροφορίες τιμής
Τιμή
€ 1
Τιμή ανά m²
0 €/m²
Ενεργειακή απόδοση

Κατανάλωση ενέργειας

A+

Ανακαλύψτε κάθε γωνιά του ακινήτου
+5
Πρόσθετες επιλογές

Επικοινώνησε με τον αγγελιοδότη

Ή