map icon

Τεσσάρι νέο, δεύτερος όροφος, Novalja

Novalja
€ 307.000
4
84 m²
2
2
Ναι
Μπαλκόνι
Βεράντα

Σημείωση

Τελευταία ενημέρωση: 17/11/2025
Περιγραφή

This description has been translated automatically and may not be accurate

κωδικός: 39833

ISLAND OF PAG, NOVALJA, exceptional 3-bedroom + living room apartment in a high-quality new building in an attractive location from a well-known investor.

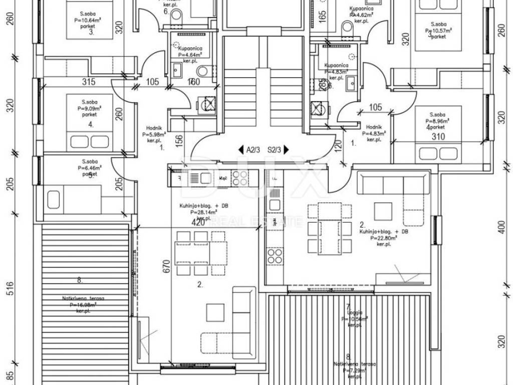
We are selling this excellent high-quality 3-bedroom + living room apartment marked A3, located on the second floor of a new residential building with a sea view. The floor area of the apartment (closed) is 69.57 m2 + covered terrace 16.98 m2 + 2 parking spaces 25.00 m2, totaling 111.55 m2 of floor area, while for the calculation with the deducted coefficients the usable area is = 84.32 m2. IDEAL APARTMENT LAYOUT, 3 separate bedrooms + living room with kitchen + 2x toilet / bathroom + storage room + covered terrace + 2 parking spaces. REST OF THE BUILDING: This is a building with 6 residential units, designed as two-bedroom and three-bedroom apartments, where each apartment has 2 parking spaces in ownership. Ideal room layout. The calculation is based on the net useful area (area with rejected coefficients). Top equipment: Rehau PVC carpentry, 7 chambers, 3 seals, three-layer glass, mosquito nets on the windows, top-quality interior carpentry, ceramics and parquet in the rooms. First-class sanitary ware - Grohe, Villeroy and Boch... Underfloor heating in all rooms, Samsung air conditioners, cooling and heating in all rooms. living rooms and rooms, glass fences... Connection for charging electric or hybrid vehicles. Planned date of completion and occupancy 15/07/2025

Dear clients, the agency commission is charged in accordance with the General Terms and Conditions. https://www.dux-nekretnine.hr/opci-uvjeti-poslovanja

ID CODE: 39833

Darko Miculinić
Vanjski suradnik
Mob: +385 91 899 5705
Tel: +385 91 480 8808
E-mail: darko@dux-nekretnine.hr
www.dux-nekretnine.hr
Εάν θέλετε να μάθετε περισσότερα, μπορείτε να μιλήσετε με Darko Miculinić.
Χαρακτηριστικά
Τύπος
Διαμέρισμα
Συμβόλαιο
Πώληση
Όροφος
2 όροφος
Ανελκυστήρας
Ναι
Εμβαδόν
84 m²
Δωμάτια
4
Υπνοδωμάτια
3
Μπάνια
2
Μπαλκόνι
Ναι
Βεράντα
Ναι
Κλιματισμός
Αυτόνομη, κρύο/ζέστη
Πληροφορίες τιμής
Τιμή
€ 307.000
Τιμή ανά m²
3.655 €/m²
Ενεργειακή απόδοση

Κατανάλωση ενέργειας

A+

Ανακαλύψτε κάθε γωνιά του ακινήτου
+18
Πρόσθετες επιλογές

Επικοινώνησε με τον αγγελιοδότη

Ή