Τριάρι νέο, πρώτος όροφος, Centar, Opatija

€ 680.000
3
107 m²
2
1
Ναι
Μπαλκόνι
Βεράντα

Σημείωση

Τελευταία ενημέρωση: 21/01/2026
Περιγραφή

This description has been translated automatically and may not be accurate

κωδικός: 35558


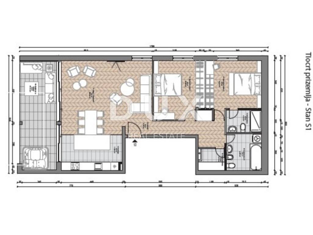
OPATIJA, CENTER - a modern apartment in a new building in a top location with a garage, a large terrace, and a jacuzzi

We offer an exclusive S1 apartment with a surface area of 106.93 m on the ground floor of a new building above the center of Opatija, with a large terrace and a garage. The apartment consists of two bedrooms with en suite bathrooms, a beautiful open space living room, dining room, and kitchen of 43 m. The large open space opens onto a 19 m terrace with a jacuzzi and an outdoor social area, providing incredible opportunities for outdoor relaxation.

The apartment is located in a new building of 10 apartments in an excellent location above the center of Opatija, guaranteeing excellent access to all the accompanying amenities of the city: the Lungomare promenade, the beach in the center, the summer stage in Opatija, and the Gervais cultural center. It is located 250 meters away from the sea. The apartment has a place in the garage and a storage room of 2 m. This is a perfect opportunity to buy real estate in Opatija, ideal for both living and tourist rental.

Dear clients, the agency commission is charged in accordance with the General Terms and Conditions. https://www.dux-nekretnine.hr/opci-uvjeti-poslovanja

ID CODE: 35558

Marko Šutanovac
Agent s licencom
Mob: +385 91 189 8332
Tel: +385 91 480 8808
E-mail: marko@dux-nekretnine.hr
www.dux-opatija.com
Εάν θέλετε να μάθετε περισσότερα, μπορείτε να μιλήσετε με Marko Šutanovac.
Χαρακτηριστικά
Τύπος
Διαμέρισμα
Συμβόλαιο
Πώληση
Όροφος
1 όροφος
Ανελκυστήρας
Ναι
Εμβαδόν
107 m²
Δωμάτια
3
Υπνοδωμάτια
2
Μπάνια
2
Μπαλκόνι
Ναι
Βεράντα
Ναι
Γκαράζ, χώροι στάθμευσης
1 σε πάρκινγκ/κλειστό πάρκινγκ
Κλιματισμός
Αυτόνομη, κρύο/ζέστη
Πληροφορίες τιμής
Τιμή
€ 680.000
Τιμή ανά m²
6.355 €/m²
Ενεργειακή απόδοση
  • Έτος κατασκευής

    2024
  • Κατάσταση

    Νεόδμητο / Υπό κατασκευή
  • Κλιματιστικό μηχάνημα

    Αυτόνομη, κρύο/ζέστη
  • Ενεργειακή πιστοποίηση

    Δεν υπόκειται
Ανακαλύψτε κάθε γωνιά του ακινήτου
+18
Πρόσθετες επιλογές

Επικοινώνησε με τον αγγελιοδότη

Ή