Τριάρι νέο, ισόγειο, Stari Medulin, Medulin

€ 291.000
3
59 m²
1
1
Βεράντα

Σημείωση

Τελευταία ενημέρωση: 04/02/2026
Περιγραφή

This description has been translated automatically and may not be accurate

κωδικός: 27775

ISTRIA, MEDULIN Apartment with garden, 450m from the center!

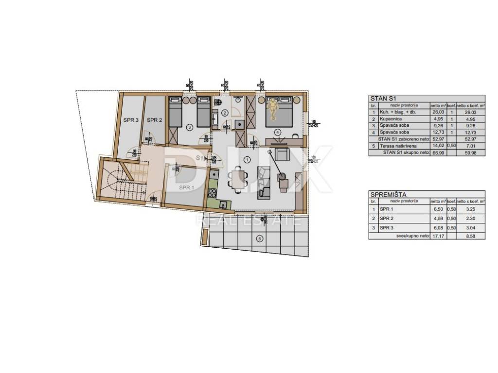
Medulin was inhabited since ancient times. It got its name from the Roman name Mutila, although the original place was already destroyed in the 2nd century BC. Today, some 6,500 people live in Medulin on an area of 32 km. The main source of income is tourism. The former village was able to develop into one of the most popular summer resorts on the one hand because of the many well-organized and beautiful beaches, above all because of the 1 km long sandy beach of Bijeca in the middle of the town, which has a slight drop into the sea, and on the other hand also because of the numerous archaeological sites. This luxurious new building is located just 450m from the beach and the center of Medulin. It is a smaller residential building with only 3 residential units, one on each floor. The property in question is located on the ground floor of the building and consists of a living room connected to the kitchen and dining room, two bedrooms and a bathroom. The advantage of this apartment is the large garden that surrounds the entire property and has a total of 166m2. During the construction, quality materials will be used both for the construction of the building and for the interior decoration. The apartment also has a storage room on the ground floor of the building and one parking space. An ideal investment opportunity for its position and a safe return on investment through rental for tourist purposes! Dear clients, the agency commission is charged in accordance with the General Business Conditions: www.dux-nekretnine.hr/opci-uvjeti-poslovanja

ID CODE: 27775

Aldin Begić
Agent pripravnik
Mob: +385 95 391 9185
Tel: +385 91 480 8808
E-mail: aldin@dux-istra.com
www.dux-istra.com

Deniro Osmanović
Agent pripravnik
Mob: +385 99 371 3802
Tel: +385 91 480 8808
E-mail: deniro@dux-istra.com
www.dux-istra.com
Εάν θέλετε να μάθετε περισσότερα, μπορείτε να μιλήσετε με Aldin Begić.
Χαρακτηριστικά
Τύπος
Διαμέρισμα
Συμβόλαιο
Πώληση
Όροφος
1
Εμβαδόν
59 m² | επαγγελματικό 225 m²
Δωμάτια
3
Υπνοδωμάτια
2
Μπάνια
1
Μπαλκόνι
Όχι
Βεράντα
Ναι
Κλιματισμός
Αυτόνομη, κρύο/ζέστη
Λεπτομέρεια επιφάνειας

Κατοικία

Όροφος
1
Εμβαδόν
59,0 m²
Συντελεστής
100%
Τύπος επιφάνειας
Κύρια
Συνολική επιφάνεια
59,0 m²

Γη

Όροφος
Ισόγειο
Εμβαδόν
166,0 m²
Συντελεστής
100%
Τύπος επιφάνειας
Δευτερεύουσα
Συνολική επιφάνεια
166,0 m²
Πληροφορίες τιμής
Τιμή
€ 291.000
Τιμή ανά m²
1.293 €/m²
Ενεργειακή απόδοση
  • Έτος κατασκευής

    2025
  • Κατάσταση

    Νεόδμητο / Υπό κατασκευή
  • Κλιματιστικό μηχάνημα

    Αυτόνομη, κρύο/ζέστη
  • Ενεργειακή πιστοποίηση

    Δεν υπόκειται
Ανακαλύψτε κάθε γωνιά του ακινήτου
+8
Πρόσθετες επιλογές

Επικοινώνησε με τον αγγελιοδότη

Ή