Μονοκατοικία 256 τμ, νέα, Rovinj

€ 400.000
5+
256 m²
3+
Ναι
Μπαλκόνι
Βεράντα

Σημείωση

Τελευταία ενημέρωση: 04/02/2026
Περιγραφή

This description has been translated automatically and may not be accurate

κωδικός: 23988

ISTRIA, ROVINJ - Comfortable modern new building with swimming pool

The most attractive picturesque Istrian town of Rovinj, with its old town center under UNESCO protection, is an eternal inspiration for romantics and artists and one of the most developed tourist destinations in Croatia.
It is located on the west coast of Istria and is adorned by a distinctly indented archipelago with as many as 14 islets and 6 rocks along 67 kilometers of coastline, which is a protected natural heritage.
A beautiful indented coast, a specific mild Mediterranean microclimate, an excellent gastronomic offer, year-round cultural events and nice and friendly hosts make this small town magical.

In the vicinity of that magical city, a comfortable modern new building with a swimming pool is for sale.
The property is characterized by a convenient location, quality of construction and modern design, which is characterized by a regular geometric form and regular lines in the space, as well as a modern interior with a compact floor plan and airy space.
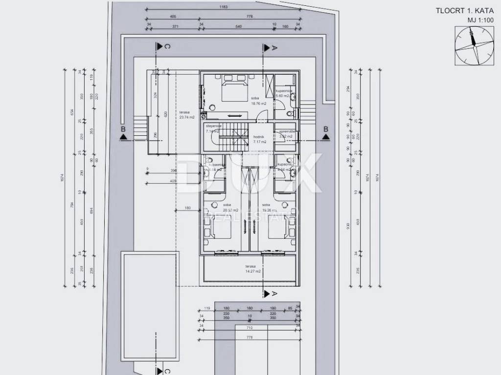
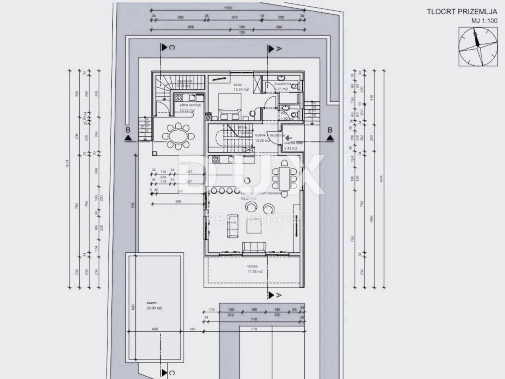
The house with a total net area of 174 m is divided into three floors; the utilitarian space and the billiard room are located in the basement, while the entrance is located on the ground floor level, which consists of an open concept space that unites the kitchen, dining room and living room with access to a covered terrace and summer kitchen, a guest toilet and a bedroom with its own bathroom. On the first floor there is a storage room and three bedrooms with private bathrooms and exits to a spacious terrace or balcony.
Complete harmony and comfort has been achieved with a minimalist garden, which contains a 32 m swimming pool with a sun deck.

The location, structure and comfort make this property an ideal opportunity for a peaceful family life as well as an investment for the purpose of tourist rental.

The stated price refers to the stage of high roh-bau condition and will increase according to the progress of the construction.

Dear clients, the agency commission is charged in accordance with the General Terms and Conditions:
www.dux-nekretnine.hr/opci-uvjeti-poslovanja

ID CODE: 23988

Lara Jović
Agent s licencom
Mob: +385 91 199 8034
Tel: +385 91 480 8808
E-mail: lara@dux-istra.com
www.dux-nekretnine.hr

Iva Zajc
Agent s licencom
Mob: +385 92 235 9472
Tel: +385 91 480 8808
E-mail: iva@dux-istra.com
www.dux-istra.com
Εάν θέλετε να μάθετε περισσότερα, μπορείτε να μιλήσετε με Lara Jović.
Χαρακτηριστικά
Τύπος
Μονοκατοικία
Συμβόλαιο
Πώληση
Όροφος
1
Ανελκυστήρας
Ναι
Εμβαδόν
256 m² | επαγγελματικό 911 m²
Δωμάτια
5+
Υπνοδωμάτια
4
Μπάνια
3+
Μπαλκόνι
Ναι
Βεράντα
Ναι
Κλιματισμός
Αυτόνομη, κρύο/ζέστη
Άλλα χαρακτηριστικά
  • Πισίνα
Λεπτομέρεια επιφάνειας

Κατοικία

Όροφος
1
Εμβαδόν
256,0 m²
Συντελεστής
100%
Τύπος επιφάνειας
Κύρια
Συνολική επιφάνεια
256,0 m²

Γη

Όροφος
Ισόγειο
Εμβαδόν
655,0 m²
Συντελεστής
100%
Τύπος επιφάνειας
Δευτερεύουσα
Συνολική επιφάνεια
655,0 m²
Πληροφορίες τιμής
Τιμή
€ 400.000
Τιμή ανά m²
439 €/m²
Ενεργειακή απόδοση
  • Έτος κατασκευής

    2023
  • Κατάσταση

    Νεόδμητο / Υπό κατασκευή
  • Κλιματιστικό μηχάνημα

    Αυτόνομη, κρύο/ζέστη
  • Ενεργειακή πιστοποίηση

    Δεν υπόκειται
Ανακαλύψτε κάθε γωνιά του ακινήτου
+14
Πρόσθετες επιλογές

Επικοινώνησε με τον αγγελιοδότη

Ή