Μονοκατοικία 312 τμ, νέα, Novalja

€ 900.000
5+
312 m²
3
Βεράντα

Σημείωση

Τελευταία ενημέρωση: 30/04/2026
Περιγραφή

This description has been translated automatically and may not be accurate

κωδικός: 13495

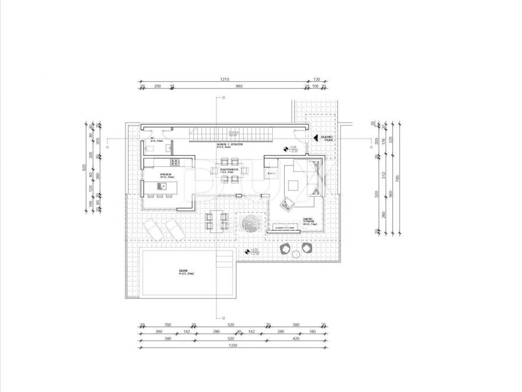
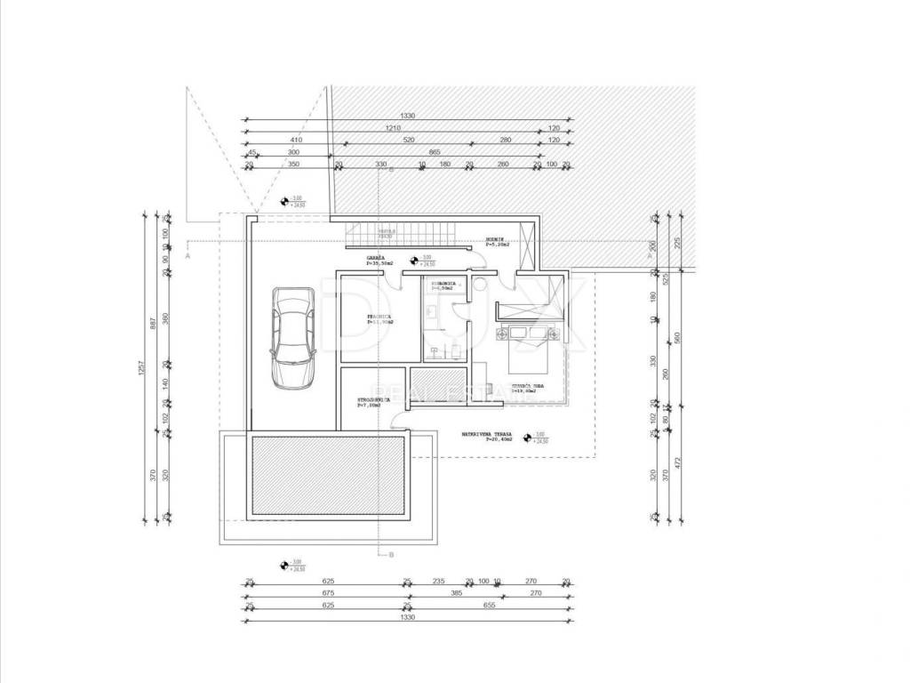
ISLAND OF PAG-JAKIŠNICA villa with pool, S + P + 1

We are selling a villa with pool which is under construction. The villa is divided into three floors where in the basement we find a garage, laundry, engine room, storage room and one bedroom with wardrobe and bathroom. On the ground floor we have guest toilets, kitchen with dining room and living room with direct access to the covered terrace, garden and pool. Upstairs we find two bedrooms with bathrooms and balconies with a total living area of 312m2. The villa will be sold turnkey by a proven investor with many years of experience in construction. Only the best materials and equipment will be used, first-class ceramics, aluminum three-layer joinery, anti-burglary doors from renowned manufacturers, etc. The planned phase of completion and moving in is one year.

Dear clients, the agency fee is charged in accordance with the General Terms and Conditions: www.dux-nekretnine.hr/opci-uvjeti-poslovanja

ID CODE: 13495

Darko Miculinić
Vanjski suradnik
Mob: +385 91 899 5705
Tel: +385 91 480 8808
E-mail: darko@dux-nekretnine.hr
www.dux-nekretnine.hr
Εάν θέλετε να μάθετε περισσότερα, μπορείτε να μιλήσετε με Darko Miculinić.
Χαρακτηριστικά
Τύπος
Μονοκατοικία
Συμβόλαιο
Πώληση
Όροφος
1
Εμβαδόν
312 m² | επαγγελματικό 602 m²
Δωμάτια
5+
Υπνοδωμάτια
4
Μπάνια
3
Μπαλκόνι
Όχι
Βεράντα
Ναι
Γκαράζ, χώροι στάθμευσης
1 σε πάρκινγκ/κλειστό πάρκινγκ
Κλιματισμός
Αυτόνομη, κρύο/ζέστη
Άλλα χαρακτηριστικά
  • Πισίνα
Λεπτομέρεια επιφάνειας

Κατοικία

Όροφος
1
Εμβαδόν
312,0 m²
Συντελεστής
100%
Τύπος επιφάνειας
Κύρια
Συνολική επιφάνεια
312,0 m²

Γη

Όροφος
Ισόγειο
Εμβαδόν
290,0 m²
Συντελεστής
100%
Τύπος επιφάνειας
Δευτερεύουσα
Συνολική επιφάνεια
290,0 m²
Πληροφορίες τιμής
Τιμή
€ 900.000
Τιμή ανά m²
1.495 €/m²
Ενεργειακή απόδοση
  • Έτος κατασκευής

    2023
  • Κατάσταση

    Νεόδμητο / Υπό κατασκευή
  • Κλιματιστικό μηχάνημα

    Αυτόνομη, κρύο/ζέστη
  • Ενεργειακή πιστοποίηση

    Δεν υπόκειται
Ανακαλύψτε κάθε γωνιά του ακινήτου
+20
Πρόσθετες επιλογές

Επικοινώνησε με τον αγγελιοδότη

Ή