1/17


Δυάρι καλή κατάσταση, σε πολλαπλά επίπεδα, Mašićeva - Dobri dol, Ζάγκρεμπ
€ 400.000
2
125 m²
1
2
Όχι
Μπαλκόνι
Επιπλωμένο
Τελευταία ενημέρωση: 17/11/2025
Περιγραφή
κωδικός: EK-793051
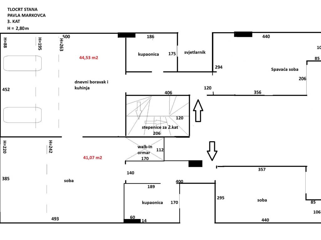
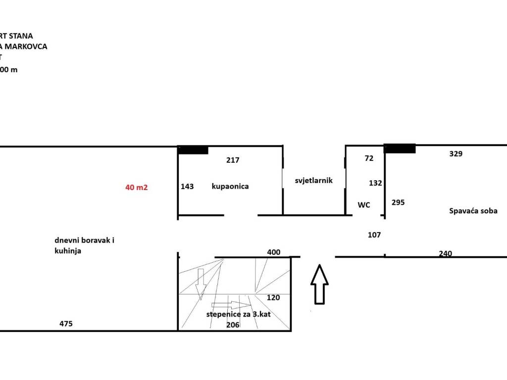
Prodaje se 5-soban stan 125m2 u mirnoj ulici Pavla Markovca kod Kvatrića.
U ZK je stan u naravi upisan kao 3 stana po cca 40m2! To omogućuje razne kombinacije kasnije kod renovacije i prodaje u budućnosti!
plinsko etažno, klima, originalna drvena stolarija
Trenutno 4 sobe, kuhinja sa blagovaonicom, 3 kupaonice, 3 hodnika, walk-in ormar i 3 hodnika
125 m2
400.000 €
moguća zamjena za manji stan 30-50m2 u širem centru ZG (Maksimir - Črnomerec) + tram zona novog ZG i nadoplatu
Za više info nazovite 095/9118117 Marko
Χαρακτηριστικά
- Τύπος
- Διαμέρισμα | Ολική ιδιοκτησία | Ακίνητο μεσαίας κατηγορίας
- Συμβόλαιο
- Πώληση
- Όροφος
- 2
- Σύνολο ορόφων
- 3
- Ανελκυστήρας
- Όχι
- Εμβαδόν
- 125 m²
- Δωμάτια
- 2
- Υπνοδωμάτια
- 1
- Κουζίνα
- Κουζίνα
- Μπάνια
- 1
- Επιπλωμένο
- Ναι
- Μπαλκόνι
- Ναι
- Θέρμανση
- Αυτόνομη, θερμαντικά σώματα, τροφοδοσία υγραέριο
- Κλιματισμός
- Αυτόνομη
Άλλα χαρακτηριστικά
- Αποθήκη
- Μονός υαλοπίνακας/ Ξύλινα κουφώματα
Λεπτομέρεια επιφάνειας
Κατοικία
- Όροφος
- 2
- Εμβαδόν
- 125,0 m²
- Συντελεστής
- 100%
- Τύπος επιφάνειας
- Κύρια
- Συνολική επιφάνεια
- 125,0 m²
Πληροφορίες τιμής
- Τιμή
- € 400.000
- Τιμή ανά m²
- 3.200 €/m²
Λεπτομέρειες κόστους
- Έξοδα θέρμανσης
- € 50/έτος
Ενεργειακή απόδοση
Κατανάλωση ενέργειας
≥ 250 kWh/m² έτοςC
Ανακαλύψτε κάθε γωνιά του ακινήτου
Πρόσθετες επιλογές