Τριάρι νέο, δεύτερος όροφος, Omiš

€ 315.750
3
63 m²
1
2
Ναι
Βεράντα

Σημείωση

Τελευταία ενημέρωση: 26/03/2026
Περιγραφή

This description has been translated automatically and may not be accurate

κωδικός: ST4505

Luxury Two-Bedroom Apartment in Nemira Only 150 m from the Beach

For sale is an elegant two-bedroom apartment located on the first floor of a modern new building in a peaceful part of Nemira, just 150 meters from beautiful pebble beaches.
This apartment offers the perfect combination of comfort, luxury, and proximity to the sea ideal for living, holidays, or as an investment.

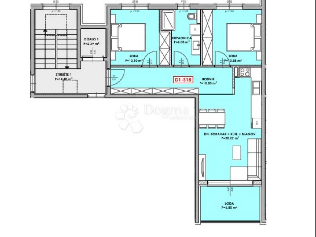
Area: 63,15 m

Layout:
The apartment consists of a spacious living room connected with the kitchen and dining area, two comfortable bedrooms, a modern bathroom, and a hallway.
It is equipped with high-quality materials and designed with elegance and comfort in mind.

A green zone surrounding the building adds extra privacy and tranquility, creating the perfect atmosphere for everyday living.

Location:
Nemira is known for its crystal-clear sea, pine forests, and beautiful beaches. The nearby towns of Omiš and Split provide quick access to all urban amenities, restaurants, and cultural attractions.

The area offers numerous opportunities for an active lifestyle rafting and zip-line on the Cetina River, hiking, and boat trips to the islands of Brač and Hvar.

Additional options:

Garage space: 1,850/m

Outdoor parking: 1,000/m

Storage room: 1,850/m

This apartment is the perfect choice for family living, a luxurious holiday retreat, or an investment with great rental potential.
If you are looking for a place that combines peace, nature, and proximity to the sea this apartment in Nemira is the ideal choice.

Contact:
Marija Bošnjak
Makarska
Tel: +385 95 37 27 471
Email: marija.bosnjak@dogma-nekretnine.com

ID CODE: ST4505

Marija Bošnjak
Asistent u posredovanju
Mob: 095/372-7471
Tel: +385 95 372 7471
E-mail: marija.bosnjak@dogma-nekretnine.com
www.dogma-nekretnine.com
Εάν θέλετε να μάθετε περισσότερα, μπορείτε να μιλήσετε με Marija Bošnjak.
Χαρακτηριστικά
Τύπος
Διαμέρισμα
Συμβόλαιο
Πώληση
Όροφος
2 όροφος
Ανελκυστήρας
Ναι
Εμβαδόν
63 m²
Δωμάτια
3
Υπνοδωμάτια
2
Μπάνια
1
Μπαλκόνι
Όχι
Βεράντα
Ναι
Γκαράζ, χώροι στάθμευσης
1 σε πάρκινγκ/κλειστό πάρκινγκ
Κλιματισμός
Αυτόνομη, κρύο/ζέστη
Πληροφορίες τιμής
Τιμή
€ 315.750
Τιμή ανά m²
5.012 €/m²
Ενεργειακή απόδοση
  • Κατάσταση

    Νεόδμητο / Υπό κατασκευή
  • Κλιματιστικό μηχάνημα

    Αυτόνομη, κρύο/ζέστη
  • Ενεργειακή πιστοποίηση

    Δεν υπόκειται
Ανακαλύψτε κάθε γωνιά του ακινήτου
+9
Πρόσθετες επιλογές

Επικοινώνησε με τον αγγελιοδότη

Ή