map icon

Τεσσάρι νέο, τρίτος όροφος, Makarska

Makarska
€ 454.238
4
133 m²
2
3
Ναι

Σημείωση

Τελευταία ενημέρωση: 18/11/2025
Περιγραφή

This description has been translated automatically and may not be accurate

κωδικός: ST4368

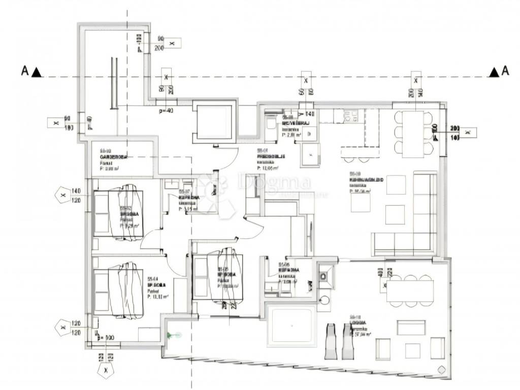
We offer a spacious and well-equipped apartment located on the third floor of a small residential building with an elevator, with a total of six residential units. Located in a quiet location, the apartment offers an ideal combination of functionality, comfort and a modern lifestyle. The apartment consists of three bedrooms, two of which have their own bathroom and dressing room, while the rest of the apartment has another separate toilet, a hallway and a spacious living room connected to the kitchen and dining room into a single unit. The living area opens onto a covered loggia with an open view of the sea. The building is fully south-oriented, and the apartment is equipped with PVC joinery with thermal and sound insulation, electric roller shutters, air conditioning in each room, video intercom and underfloor heating in the bathrooms. The apartment has one outdoor and one garage parking space, as well as a storage room in the basement of the building. Completion of the works is planned for spring 2026. For additional information and viewing, please feel free to contact us.

ID CODE: ST4368

Danijela Stojčinović
Asistent u posredovanju
Mob: 098/920-6268
Tel: +385 21 293 201
E-mail: danijela.stojcinovic@dogma-nekretnine.com
www.dogma-dalmacija.com
Εάν θέλετε να μάθετε περισσότερα, μπορείτε να μιλήσετε με Danijela Stojčinović.
Χαρακτηριστικά
Τύπος
Διαμέρισμα
Συμβόλαιο
Πώληση
Όροφος
3 όροφος
Ανελκυστήρας
Ναι
Εμβαδόν
133 m²
Δωμάτια
4
Υπνοδωμάτια
3
Μπάνια
2
Μπαλκόνι
Όχι
Βεράντα
Όχι
Γκαράζ, χώροι στάθμευσης
1 σε πάρκινγκ/κλειστό πάρκινγκ
Κλιματισμός
Αυτόνομη, κρύο/ζέστη
Πληροφορίες τιμής
Τιμή
€ 454.238
Τιμή ανά m²
3.415 €/m²
Ενεργειακή απόδοση
  • Έτος κατασκευής

    2026
  • Κατάσταση

    Νεόδμητο / Υπό κατασκευή
  • Κλιματιστικό μηχάνημα

    Αυτόνομη, κρύο/ζέστη
  • Ενεργειακή πιστοποίηση

    Δεν υπόκειται
Ανακαλύψτε κάθε γωνιά του ακινήτου
+3
Πρόσθετες επιλογές

Επικοινώνησε με τον αγγελιοδότη

Ή