Δυάρι ισόγειο, Centar, Luka, Finida, Umag

€ 252.590
2
40 m²
1
1
Ναι
Βεράντα

Σημείωση

Τελευταία ενημέρωση: 29/05/2026
Περιγραφή

This description has been translated automatically and may not be accurate

κωδικός: IS1517692

A modern apartment for sale, located in a high-quality new development in Umag, comprising a total of 57 residential units. The building is equipped with an elevator, further enhancing everyday comfort.

APP 010

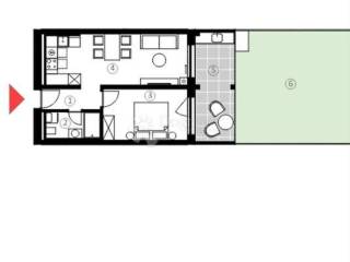
The apartment offers a net usable area of 40,24 m, plus an additional terrace of 63,65 m perfect for enjoying your morning coffee or relaxing in the evening.

Air conditioning is installed in all rooms for heating and cooling, while the bathroom features electric underfloor heating for extra comfort.

The apartments are equipped with:

- aluminum joinery with triple-glazed windows

- electric blinds and mosquito nets

- video intercom

The price includes a garage parking space and a private storage room in the basement.

The sale is conducted on a "turnkey" basis, meaning the apartment is delivered fully completed (without furniture), with finished floors, bathroom, and all installations ready for move-in.

Planned completion: June 2026.

Note: The seller is a legal entity, so the buyer does not pay real estate transfer tax.

ID CODE: IS1517692

Dogma Poreč
Mob: 091/361-1922
Tel: +385 52 771 458
E-mail: info@dogma-nekretnine.com
www.dogma-nekretnine.com
Χαρακτηριστικά
Τύπος
Διαμέρισμα
Συμβόλαιο
Πώληση
Όροφος
1
Ανελκυστήρας
Ναι
Εμβαδόν
40 m² | επαγγελματικό 103 m²
Δωμάτια
2
Υπνοδωμάτια
1
Μπάνια
1
Μπαλκόνι
Όχι
Βεράντα
Ναι
Γκαράζ, χώροι στάθμευσης
1 σε πάρκινγκ/κλειστό πάρκινγκ
Κλιματισμός
Αυτόνομη, κρύο/ζέστη
Λεπτομέρεια επιφάνειας

Κατοικία

Όροφος
1
Εμβαδόν
40,0 m²
Συντελεστής
100%
Τύπος επιφάνειας
Κύρια
Συνολική επιφάνεια
40,0 m²

Γη

Όροφος
Ισόγειο
Εμβαδόν
63,0 m²
Συντελεστής
100%
Τύπος επιφάνειας
Δευτερεύουσα
Συνολική επιφάνεια
63,0 m²
Πληροφορίες τιμής
Τιμή
€ 252.590
Τιμή ανά m²
2.452 €/m²
Ενεργειακή απόδοση
  • Έτος κατασκευής

    2026
  • Κλιματιστικό μηχάνημα

    Αυτόνομη, κρύο/ζέστη
  • Ενεργειακή πιστοποίηση

    Δεν υπόκειται
Ανακαλύψτε κάθε γωνιά του ακινήτου
+20
Πρόσθετες επιλογές

Επικοινώνησε με τον αγγελιοδότη

Ή