Οικοδομήσιμο οικόπεδο προς Πώληση

€ 95.000
644 m²

Σημείωση

Τελευταία ενημέρωση: 19/11/2025
Περιγραφή

κωδικός: IS1516001

Rajska Oaza u Istri: Vaša Prilika za Idiličan Život

Dobrodošli u Orbaniće.
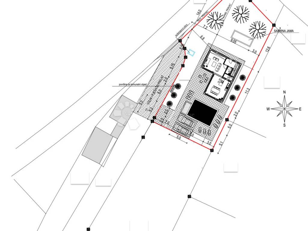
Naša parcela od 644 m2, s pravomoćnom građevinskom dozvolom, pruža vam mogućnost da ostvarite svoje snove o idiličnom domu u Istri.

Osnovne informacije:

Lokacija: Orbanići, Istra
Površina parcele: 644 m2
Građevinska dozvola: Prizemlje + 1 kat
Ukupna površina građevine: 132,66 m2
Bazen: 29,25 m2
Gotov projekt: Da
Prilaz sa postojeće prometnice: Da
Zašto odabrati ovu parcelu:

*Savršena Lokacija: Smještena u mirnom istarskom selu Orbanići, ova parcela nudi spoj privatnosti i blizine svim potrebnim sadržajima.
*Pravomoćna Građevinska Dozvola: Spremni ste za gradnju vašeg doma odmah nakon kupnje, bez čekanja na formalnosti.
*Prostrani Dizajn: S ukupnom površinom od 132,66 m2, uključujući prostrani bazen od 29,25 m2, ova parcela omogućuje vam da stvorite udoban dom po vašim željama.
*Sve što Vam Treba: S gotovim projektom i prilazom sa postojeće prometnice, sve je spremno za početak gradnje vašeg savršenog doma.

Ne propustite priliku za stvaranje svog raja u prekrasnoj Istri.
Kontaktirajte nas danas kako biste saznali više i iskoristili ovu jedinstvenu ponudu.

KARIN ŠTIMAC
+385 (0)98 286 734
karin.stimac@dogma-nekretnine.com

ID KOD AGENCIJE: IS1516001

Karin Štimac
Agent s licencom
Mob: 098/286-734
Tel: 051/271-365
E-mail: karin.stimac@dogma-nekretnine.com
www.dogma-opatija.com
Εάν θέλετε να μάθετε περισσότερα, μπορείτε να μιλήσετε με Karin Štimac.
Χαρακτηριστικά
Συμβόλαιο
Πώληση
Τύπος
Οικοδομήσιμο οικόπεδο
Εμβαδόν
644 m²
Πληροφορίες τιμής
Τιμή
€ 95.000
Τιμή ανά m²
148 €/m²
Ανακαλύψτε κάθε γωνιά του ακινήτου
+8
Πρόσθετες επιλογές

Επικοινώνησε με τον αγγελιοδότη

Ή