Τριάρι δεύτερος όροφος, Tar-Vabriga

€ 232.000
3
61 m²
1
2
Ναι
Βεράντα

Σημείωση

Τελευταία ενημέρωση: 08/04/2026
Περιγραφή

This description has been translated automatically and may not be accurate

κωδικός: IS1515934

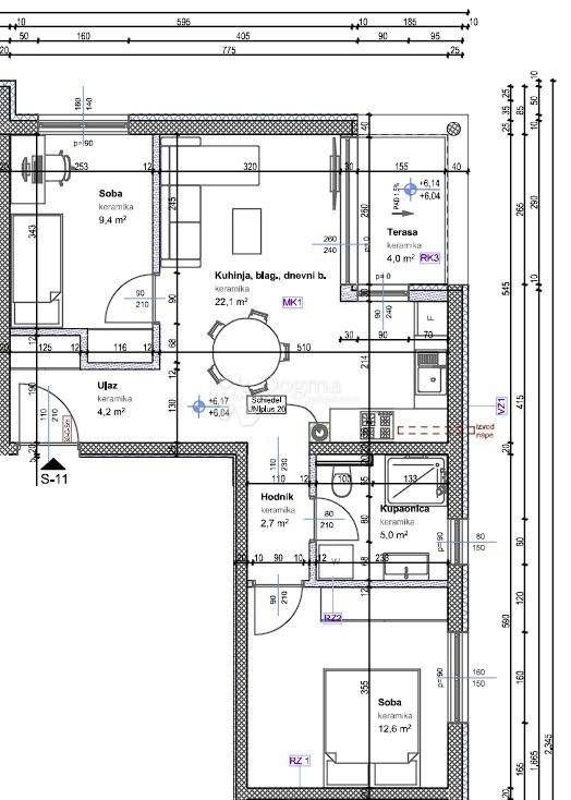
Apartment S11

Apartment S11 has a total area of 61.90 m and is located on the second floor of the building. The apartment consists of two bedrooms, a living room with a dining area and kitchen, a bathroom, a hallway, a balcony, and a separate storage room. From the hallway, you enter the living room with a dining area and kitchen, from where you exit to the balcony.

Heating is provided by a heat pump with underfloor heating, and cooling is ensured by an air conditioning unit. The apartment includes a separate storage room of 3.90 m and two parking spaces. The building is equipped with an elevator, providing easier access to the apartment.

The building is situated in an attractive and peaceful location, just 300 meters from the center of the settlement, where markets, cafes, restaurants, pharmacies, and other essential amenities are available. Novigrad is 7 km away, Poreč is 11 km away, and the sea and beach are 2000 meters away. The expected completion of construction is by the end of 2025.

Note: The listed price applies to legal entities; for private individuals, the price is increased by the VAT amount.

ID CODE: IS1515934

Karlo Šestan
Asistent u posredovanju
Mob: 091/361-1922
Tel: +385 52 771 458
E-mail: karlo.sestan@dogma-nekretnine.com
www.dogma-nekretnine.com
Εάν θέλετε να μάθετε περισσότερα, μπορείτε να μιλήσετε με Karlo Šestan.
Χαρακτηριστικά
Τύπος
Διαμέρισμα
Συμβόλαιο
Πώληση
Όροφος
2 όροφος
Ανελκυστήρας
Ναι
Εμβαδόν
61 m²
Δωμάτια
3
Υπνοδωμάτια
2
Μπάνια
1
Μπαλκόνι
Όχι
Βεράντα
Ναι
Κλιματισμός
Αυτόνομη, κρύο/ζέστη
Πληροφορίες τιμής
Τιμή
€ 232.000
Τιμή ανά m²
3.803 €/m²
Ενεργειακή απόδοση
  • Έτος κατασκευής

    2026
  • Κλιματιστικό μηχάνημα

    Αυτόνομη, κρύο/ζέστη
  • Ενεργειακή πιστοποίηση

    Δεν υπόκειται
Ανακαλύψτε κάθε γωνιά του ακινήτου
+23
Πρόσθετες επιλογές

Επικοινώνησε με τον αγγελιοδότη

Ή