Οικοδομήσιμο οικόπεδο προς Πώληση

€ 250.000
586 m²

Σημείωση

Τελευταία ενημέρωση: 22/01/2026
Περιγραφή

κωδικός: IS1515087

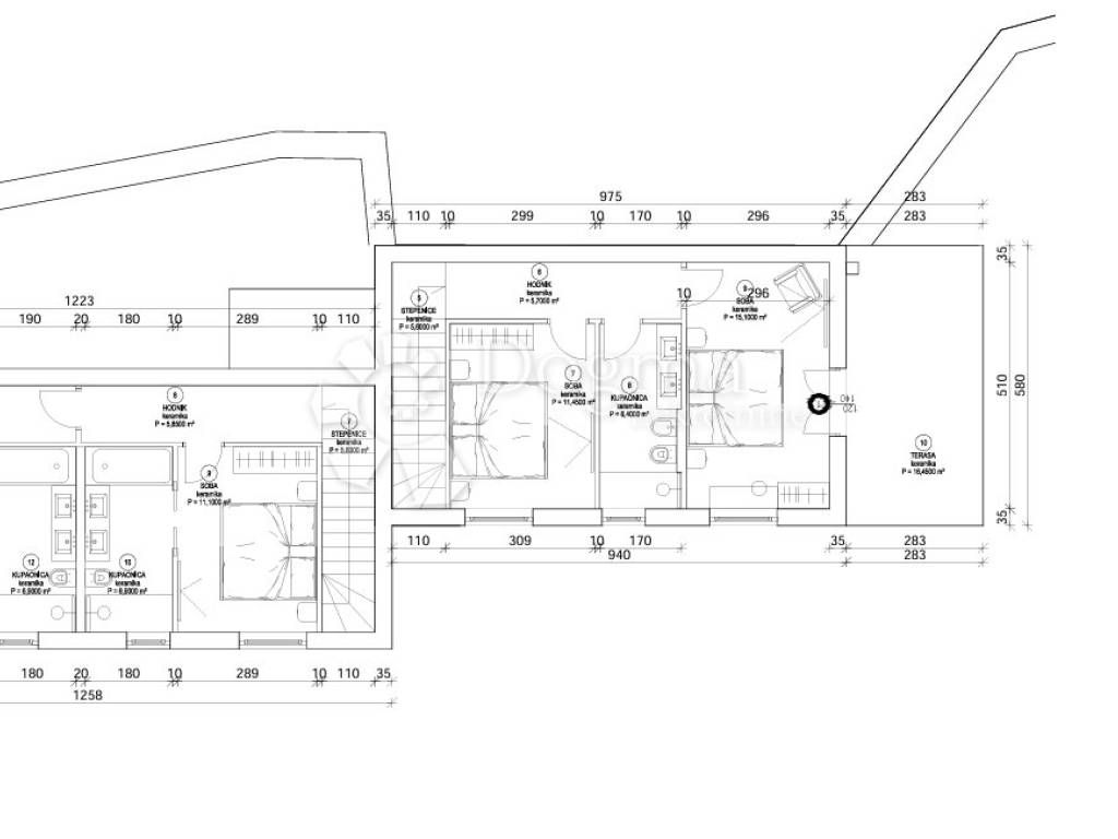
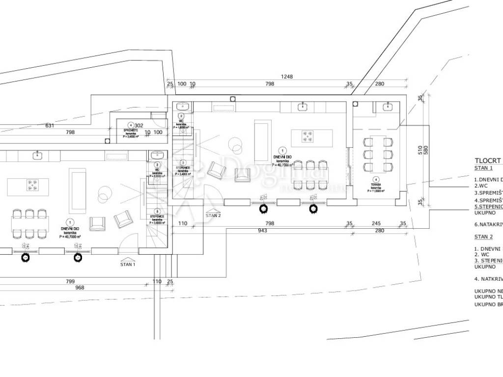
Na prodaju je građevinsko zemljište ukupne površine 586 m s pravomoćnom građevinskom dozvolom. Prema projektu, na zemljištu je predviđena izgradnja dvojne kuće ukupne bruto površine 293,79 m, koja se sastoji od dvije kuće za odmor, svaka s vlastitim bazenom.

Prva kuća obuhvaća open space dnevni boravak, kuhinju i blagovaonicu, WC, stubište, 2 spremišta i natkrivenu terasu u prizemlju. Na prvom katu nalaze se hodnik i dvije spavaće sobe, svaka s vlastitom kupaonicom. Druga kuća uključuje dnevni dio s open space dnevnim boravkom, blagovaonicom i kuhinjom, WC, stubište i natkrivenu terasu u prizemlju, te hodnik, dvije spavaće sobe i kupaonicu na prvom katu.

Zemljište se nalazi u blizini centra naselja i glavne prometnice, ali istovremeno pruža privatnost i mir budućim vlasnicima. Ova nekretnina predstavlja savršenu priliku za izgradnju kuće za vlastitu upotrebu ili luksuznih kuća na atraktivnoj lokaciji ove šarmantne općine. Idealno za one koji traže privatnost, ali žele biti u blizini svih važnih sadržaja.

ID KOD AGENCIJE: IS1515087

Gianna Brženda - DOGMA PULA
Poslovna tajnica
Tel: 052/645 444
E-mail: pula2@dogma-istra.com
www.dogma-nekretnine.com
Εάν θέλετε να μάθετε περισσότερα, μπορείτε να μιλήσετε με Gianna Brženda - DOGMA PULA.
Χαρακτηριστικά
Συμβόλαιο
Πώληση
Τύπος
Οικοδομήσιμο οικόπεδο
Εμβαδόν
586 m²
Πληροφορίες τιμής
Τιμή
€ 250.000
Τιμή ανά m²
427 €/m²
Ανακαλύψτε κάθε γωνιά του ακινήτου
+10
Πρόσθετες επιλογές

Επικοινώνησε με τον αγγελιοδότη

Ή