Οικοδομήσιμο οικόπεδο προς Πώληση

€ 117.000
617 m²

Σημείωση

Τελευταία ενημέρωση: 19/11/2025
Περιγραφή

κωδικός: IS1514681

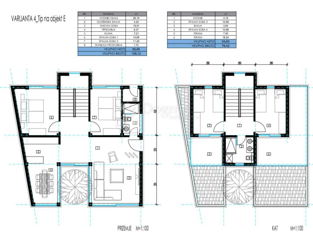
Prodaje se atraktivno građevinsko zemljište ukupne površine 617 m, smješteno na mirnoj i privlačnoj lokaciji koja je idealna za gradnju moderne kuće za odmor ili obiteljskog doma. Zemljište dolazi s gotovim glavnim projektom i predanim zahtjevom za izdavanje građevinske dozvole, što značajno olakšava i ubrzava proces gradnje.

Na zemljištu je predviđena gradnja obiteljske kuće ukupne netto korisne površine 145,62 m, koja je raspoređena na prizemlje i prvi kat. Prizemlje, površine 104,09 m, sastoji se od ulaznog hodnika i komunikacijskog prostora, prostrane kuhinje s blagovaonicom i dnevnim boravkom otvorenog koncepta, dvije spavaće sobe, dvije kupaonice, dodatnog WC-a i tehničke sobe.

Unutarnjim stepenicama dolazi se do prvog kata, koji se sastoji od hodnika, dvije spavaće sobe, jedne kupaonice i dviju velikih natkrivenih terasa, idealnih za opuštanje i uživanje na svježem zraku.

Projekt je fleksibilan i može se prilagoditi prema željama i potrebama budućeg vlasnika ili investitora, što omogućuje personalizaciju prostora prema vlastitim preferencijama.

Zemljište predstavlja idealnu priliku za sve koji žele izgraditi modernu kuću za odmor s bazenom, smještenu u mirnom i ugodnom okruženju koje nudi privatnost i opuštanje. Također, zbog svoje praktičnosti i funkcionalnosti, pogodno je i za obiteljski život. Okruženo prirodom, ovo zemljište pruža savršen balans između mira i blizine potrebnih sadržaja, nudeći priliku za stvaranje doma iz snova ili ulaganje u kvalitetnu nekretninu.

Za sve dodatne informacije i razgled nekretnine, slobodno nas kontaktirajte kako bi Vam ponudila personalizirani pristup i diskretnu uslugu pronalaska nekretnina po Vašim željama i preferencijama.

SANDRA MILETIĆ
Agent s licencom
Mob 091/988-5843
Telefon 052/639-276
sandra.miletic@dogma-nekretnine.com

LORENA KOGEJ
Agent s licencom
Mob 091/738-7200
Telefon 052/639-276
lorena.kogej@dogma-nekretnine.com

ID KOD AGENCIJE: IS1514681

Lorena Kogej
Agent s licencom
Mob: 091/738-7200
Tel: 052/639-276
E-mail: lorena.kogej@dogma-nekretnine.com
www.dogma-nekretnine.com

Sandra Miletić
Agent s licencom
Mob: 091/988-5843
Tel: 052/639-276
E-mail: sandra.miletic@dogma-nekretnine.com
www.dogma-nekretnine.com
Εάν θέλετε να μάθετε περισσότερα, μπορείτε να μιλήσετε με Lorena Kogej.
Χαρακτηριστικά
Συμβόλαιο
Πώληση
Τύπος
Οικοδομήσιμο οικόπεδο
Εμβαδόν
617 m²
Πληροφορίες τιμής
Τιμή
€ 117.000
Τιμή ανά m²
190 €/m²
Ανακαλύψτε κάθε γωνιά του ακινήτου
+7
Πρόσθετες επιλογές

Επικοινώνησε με τον αγγελιοδότη

Ή