Τριάρι νέο, πρώτος όροφος, Voštarnica - Poluotok, Ζάδαρ

€ 340.000
3
69 m²
1
1
Βεράντα

Σημείωση

Τελευταία ενημέρωση: 19/11/2025
Περιγραφή

This description has been translated automatically and may not be accurate

κωδικός: DA100062372

LUXURIOUS NEW BUILDING WITH A BEAUTIFUL VIEW OF THE CITY, THE SEA AND THE ENTIRE ZADAR CANAL!

We present to you apartments in a luxurious new building for business and residential purposes in one of the most frequented locations in the city, from which there is definitely one of the most spectacular views of the sea in Zadar. The building consists of a garage, exclusive business premises on the ground floor and 3 modern apartments on the 1st floor and a penthouse with a roof terrace on the 2nd floor of the building.
It is well connected by road to all important city routes and corridors, and in the immediate vicinity there are all the facilities necessary for a quality and fulfilling city life and vacation.
It is only a 5-minute drive from the city center and the first city beaches, while Zadar airport is a 15-minute drive away.

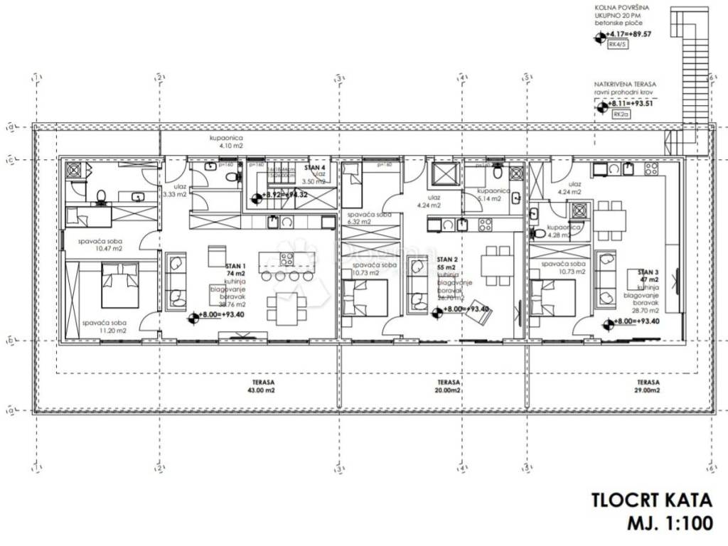
S2 - 69 m2 - 2 bedrooms + bathroom

Apartment S2 is located on the 1st floor of the building and has a total net living area of 69m2, while its gross area is 80m2. It has a southern orientation.
It consists of two bedrooms (10.73m2 and 6.32m2), an entrance (4.24m2), a bathroom (5.14m2) and a luxurious open kitchen, dining room and living room (26.70m2) from which we have direct access to terrace with an area of 23m2, from which, as we have already mentioned, one of the best views in the city!

Along with the purchase of an apartment, the purchase of a parking space is mandatory, and there is also the possibility of purchasing an additional space in the garage:
- G1 13m2 - 30,000
- G2 15m2 - 35,000

The building has a very modernist and attractive design, and the apartments will be equipped and built with top quality materials and equipment, of which we highlight:

- Facade thermal insulation from stirpor (10 cm)
- First-class ceramic floor coverings with high profiles
- Video portaon and complete video surveillance of the facility
- Heating with a heat pump
- Air conditioners in the rooms and living room
- Fire and burglary doors
- Superior aluminum carpentry with electric shutters and mosquito nets
- And much more...

THE BUYER DOES NOT PAY TAX ON REAL ESTATE TRADE!

ID CODE: DA100062372

Filip Pandurić
Agent s licencom
Mob: 099/337-5980
Tel: 052 645 444
E-mail: filip.panduric@dogma-nekretnine.com
www.dogma-istra.com

Karlo Šestan
Asistent u posredovanju
Mob: 091/361-1922
Tel: 052 770 811
E-mail: karlo.sestan@dogma-nekretnine.com
www.dogma-istra.com
Εάν θέλετε να μάθετε περισσότερα, μπορείτε να μιλήσετε με Filip Pandurić.
Χαρακτηριστικά
Τύπος
Διαμέρισμα
Συμβόλαιο
Πώληση
Όροφος
1 όροφος
Εμβαδόν
69 m²
Δωμάτια
3
Υπνοδωμάτια
2
Μπάνια
1
Μπαλκόνι
Όχι
Βεράντα
Ναι
Γκαράζ, χώροι στάθμευσης
1 σε πάρκινγκ/κλειστό πάρκινγκ
Πληροφορίες τιμής
Τιμή
€ 340.000
Τιμή ανά m²
4.928 €/m²
Ενεργειακή απόδοση
  • Έτος κατασκευής

    2024
  • Κατάσταση

    Νεόδμητο / Υπό κατασκευή
  • Ενεργειακή πιστοποίηση

    Δεν υπόκειται
Ανακαλύψτε κάθε γωνιά του ακινήτου
+6
Πρόσθετες επιλογές

Επικοινώνησε με τον αγγελιοδότη

Ή