Μονοκατοικία 430 τμ, Benkovac

€ 1.099.000
5+
430 m²
3+
Ναι
Μπαλκόνι
Βεράντα

Σημείωση

Τελευταία ενημέρωση: 19/11/2025
Περιγραφή

This description has been translated automatically and may not be accurate

κωδικός: DA100061679

VILLA WITH POOL UNDER CONSTRUCTION IN TINJ, ONLY 11 KILOMETERS FROM BIOGRAD NA MORU

An oasis of peace near touristy Biograd na Moru!
We present to you a unique opportunity - a beautiful villa with a pool under construction in the small village of Tinj, just 11 kilometers away from Biograd na Moru.

Enjoy the oasis of peace in Tinj. This splendid vacation villa is situated on a plot of 800 m2, providing you with privacy and comfort.

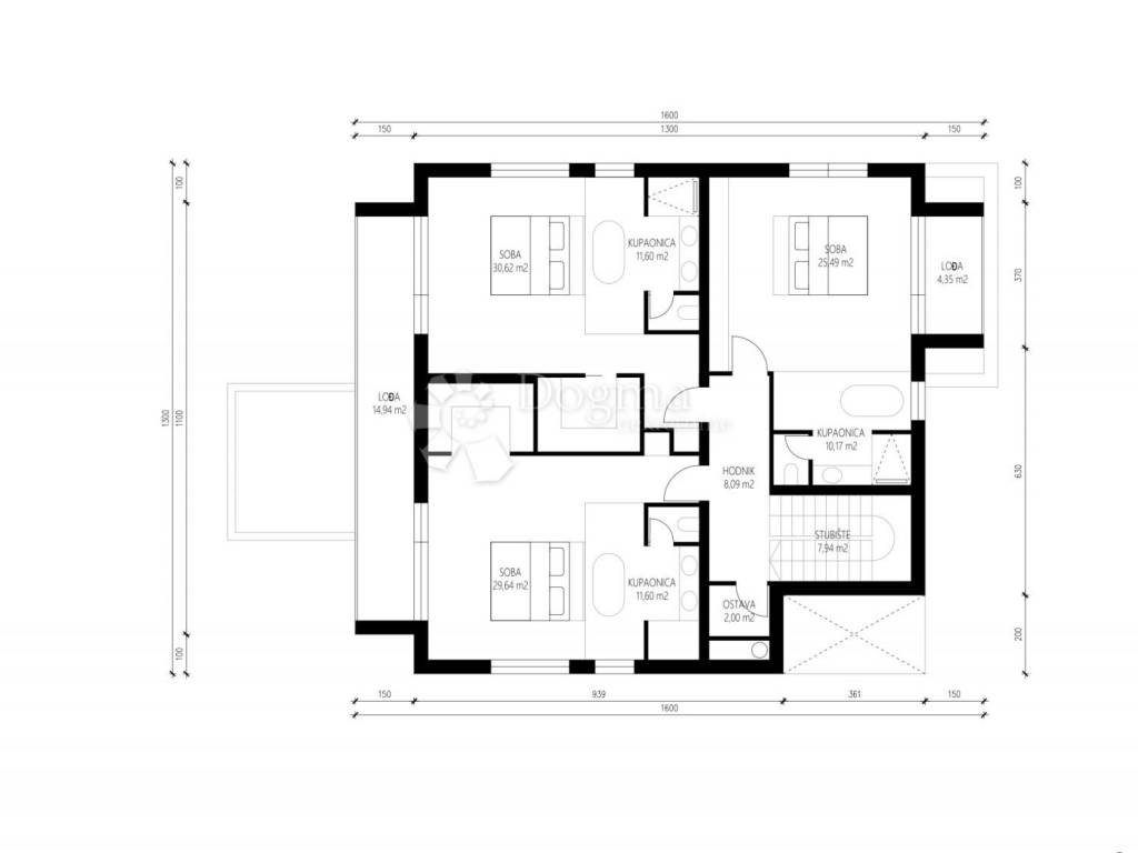
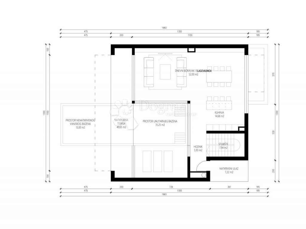
The villa comprises a basement, ground floor, and the first floor. In the basement, you'll find a tavern with a kitchen, gym, sauna, laundry room, pool machinery room, storage, and a bathroom. Internal stairs lead to the ground floor where the kitchen with a dining area, living room with access to the terrace, and an indoor pool are located. On the first floor, there are three spacious bedrooms, each with its own bathroom and access to a balcony. Two rooms have walk-in closets.

Enjoy the beauty of nature in an authentic Dalmatian ambiance surrounded by olive groves. The spacious terrace and pool create an idyllic setting for outdoor enjoyment.
This villa offers the perfect combination of the peaceful environment of a small village and quick access to the tourist city of Biograd na Moru, allowing you to enjoy long beaches, walks through pine forests, and all the amenities this popular destination offers.

The house is sold in a high shell construction without furniture and sanitary ware, giving you the opportunity to customize it according to your wishes and needs. The planned move-in date is set for 12/2024.

Tinj is a small village located 11 kilometers or about ten minutes' drive from the city of Biograd na Moru. It is well-connected to transportation, with Zadar Airport at a distance of 19 km, and the city of Zadar is 30 km away.

Enjoy luxury and privacy - reserve your home in an oasis of peace near the sea!
Contact me for more information and to arrange a viewing. Your new address for luxury living is waiting for you!

Contact:
Vedrana Bašić: +385919077396
vedrana.basic@dogma-nekretnine.com

ID CODE: DA100061679

Vedrana Bašić
Asistent u posredovanju
Mob: 091/907-7396
Tel: 023/551-400
E-mail: vedrana.basic@dogma-nekretnine.com
www.dogma-nekretnine.com
Εάν θέλετε να μάθετε περισσότερα, μπορείτε να μιλήσετε με Vedrana Bašić .
Χαρακτηριστικά
Τύπος
Μονοκατοικία
Συμβόλαιο
Πώληση
Όροφος
1
Ανελκυστήρας
Ναι
Εμβαδόν
430 m² | επαγγελματικό 1.030 m²
Δωμάτια
5+
Υπνοδωμάτια
3
Μπάνια
3+
Μπαλκόνι
Ναι
Βεράντα
Ναι
Άλλα χαρακτηριστικά
  • Πισίνα
Λεπτομέρεια επιφάνειας

Κατοικία

Όροφος
1
Εμβαδόν
430,0 m²
Συντελεστής
100%
Τύπος επιφάνειας
Κύρια
Συνολική επιφάνεια
430,0 m²

Γη

Όροφος
Ισόγειο
Εμβαδόν
600,0 m²
Συντελεστής
100%
Τύπος επιφάνειας
Δευτερεύουσα
Συνολική επιφάνεια
600,0 m²
Πληροφορίες τιμής
Τιμή
€ 1.099.000
Τιμή ανά m²
1.067 €/m²
Ενεργειακή απόδοση
  • Έτος κατασκευής

    2024
  • Ενεργειακή πιστοποίηση

    Δεν υπόκειται
Ανακαλύψτε κάθε γωνιά του ακινήτου
+14
Πρόσθετες επιλογές

Επικοινώνησε με τον αγγελιοδότη

Ή