Τριάρι νέο, ισόγειο, Privlaka

€ 325.000
3
94 m²
1
ΙΣ
Ναι
Μπαλκόνι

Σημείωση

Τελευταία ενημέρωση: 19/11/2025
Περιγραφή

This description has been translated automatically and may not be accurate

κωδικός: DA1000582

We are selling beautiful apartments in a new building in Privlaka.
Privlaka is an ideal destination for a family holiday, a place known for its sandy beaches.

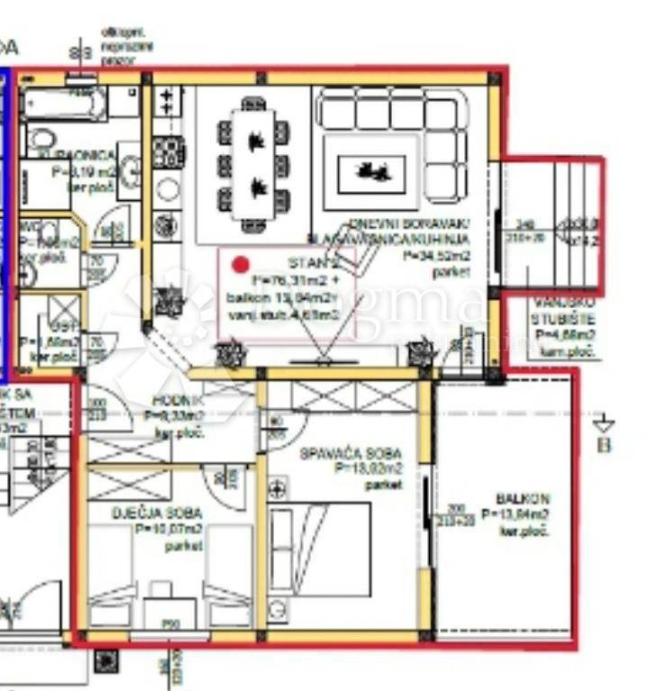
The apartment on the ground floor (S2) covers a total of 94.83m2, of which 76.31m2 is internal living space, and 4.68m2 belongs to the external staircase, and a balcony of 13.84m2.
It consists of a hallway, kitchen, dining room and living room that form one spacious unit of 34.52 m2, two spacious bedrooms, bathroom with toilet, additional toilet and storage room.
The apartment also has an 80m2 garden, so it provides enough space for outdoor living.

The apartment is located in a smaller building with a total of 5 apartments, each with a secured parking space, underfloor heating and heat pumps.
Moving in is planned for April 2024.
The apartment is in a great location, only about 200m from the sea.
It is ideal both as a tourist property and as a property for family life.
Don't miss the opportunity.
FOR ADDITIONAL INFORMATION AND VIEWING OF THE PROPERTY, CONTACT:
DANIELA STOJČINOVIĆ
GSM: +385989206268
danijela.stojcinovic@dogma-nekretnine.com

ID CODE: DA1000582

Danijela Stojčinović
Asistent u posredovanju
Mob: 098/920-6268
Tel: +385 21 293 201
E-mail: danijela.stojcinovic@dogma-nekretnine.com
www.dogma-dalmacija.com
Εάν θέλετε να μάθετε περισσότερα, μπορείτε να μιλήσετε με Danijela Stojčinović.
Χαρακτηριστικά
Τύπος
Διαμέρισμα
Συμβόλαιο
Πώληση
Όροφος
Ισόγειο
Ανελκυστήρας
Ναι
Εμβαδόν
94 m²
Δωμάτια
3
Υπνοδωμάτια
2
Μπάνια
1
Μπαλκόνι
Ναι
Βεράντα
Όχι
Πληροφορίες τιμής
Τιμή
€ 325.000
Τιμή ανά m²
3.457 €/m²
Ενεργειακή απόδοση
  • Έτος κατασκευής

    2024
  • Κατάσταση

    Νεόδμητο / Υπό κατασκευή
  • Ενεργειακή πιστοποίηση

    Δεν υπόκειται
Ανακαλύψτε κάθε γωνιά του ακινήτου
+4
Πρόσθετες επιλογές

Επικοινώνησε με τον αγγελιοδότη

Ή