Οικοδομήσιμο οικόπεδο προς Πώληση

€ 760.000
16.943 m²

Σημείωση

Τελευταία ενημέρωση: 19/11/2025
Περιγραφή

κωδικός: IS1509964

BUZET

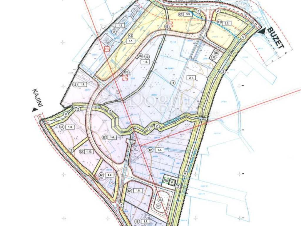
Prodaje se veliko građevinsko zemljište gospodarske namjene, ukupne površine 16.943 m2. Zemljište ima prilaz sa asfaltne ceste, te se nalazi na poziciji koja je izvrsna za izgradnju poslovnog objekta.

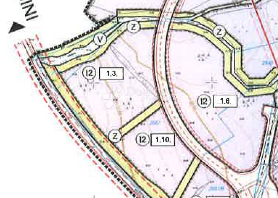
Nalazi se unutar površine oznake G - gospodarski objekti pretežito zanatske namjene I2 ili industrijske proizvodne namjene, te odgovarajuće prateće i
poslovne namjene, unutar platoa oznake 1.3, 1.6 i 1.10 i dijelom svoje površine se nalazi u površini infrastrukturnih objekata - prometnice sabirne
ceste S1.

Na površinama oznake G, platoa oznake 1.3., 1.6. i 1.10. moze se graditi samostojeća građevina ili sklop građevina gospodarski objekti pretežito zanatske namjene I2 ili industrijske proizvodne namjene, te odgovarajuće prateće i poslovne namjene.

Koeficijent izgrađenosti pojedine građevne čestice iznosi najmanje kig=0,1 i najvise kig=0,4.
Koeficient iskorištenosti iznosi najmanje kis=0,1 i najvise 0,92.

Najveća dopuštena visina građevina iznosi 9.0 m. Nadstrešnice su najveće dopuštene visine 5.0 m.
Najveći dopušteni broj etaža građevine iznosi 2 etaže uz mogućnost izgradnje 3 etaže na najaviše 1/3 izgrađene površine građevine (tlocrtne
projekcije građevine).

* U zoni su već u funkciji dva industrijska objekta (platoi 1.1 i 1.2), te je na platou 1.4 u izgradnji gospodarski objekt (proizvodnja namještaja).
* Glavna pristupna cesta sa rotora (obilaznica) do južne strane zone je u izgradnji i bit će dovršena 15.03.2024. godine.
* Infrastruktura (pristupne ceste, električna energija, vodovod i kanalizacija) su provedene i nalaze se u neposrednoj blizini predmetnih čestica, što maksimalno skraćuje vrijeme i investiciju pokretanja aktivnosti na čestici

NAPOMENA - platoi 1.3, 1.6 i 1.10 ne predstavljaju finalni oblik čestica, niti je ucrtana cesta obavezna. Ovdje se radi samo o predloženom nacrtu koji se mijenja u funkciji stvarne potrebe korisnika zone.

ID KOD AGENCIJE: IS1509964

Igor Ostojić
Asistent u posredovanju
Mob: 091/732-5577
Tel: 052 645 444
E-mail: igor.ostojic@dogma-nekretnine.com
www.dogma-istra.com
Εάν θέλετε να μάθετε περισσότερα, μπορείτε να μιλήσετε με Igor Ostojić.
Χαρακτηριστικά
Συμβόλαιο
Πώληση
Τύπος
Οικοδομήσιμο οικόπεδο
Εμβαδόν
16.943 m²
Πληροφορίες τιμής
Τιμή
€ 760.000
Τιμή ανά m²
45 €/m²
Ανακαλύψτε κάθε γωνιά του ακινήτου
+5
Πρόσθετες επιλογές

Επικοινώνησε με τον αγγελιοδότη

Ή