1/19


Μονοκατοικία 286 τμ, Privlaka
€ 772.600
Τελευταία ενημέρωση: 19/11/2025
Περιγραφή
κωδικός: DA820
ID CODE: DA820
Andrea Milak
Agent s licencom
Mob: 098/809-094
Tel: 023/551-400
E-mail: andrea.culi@dogma-nekretnine.com
www.dogma-nekretnine.com
Χαρακτηριστικά
- Τύπος
- Μονοκατοικία
- Συμβόλαιο
- Πώληση
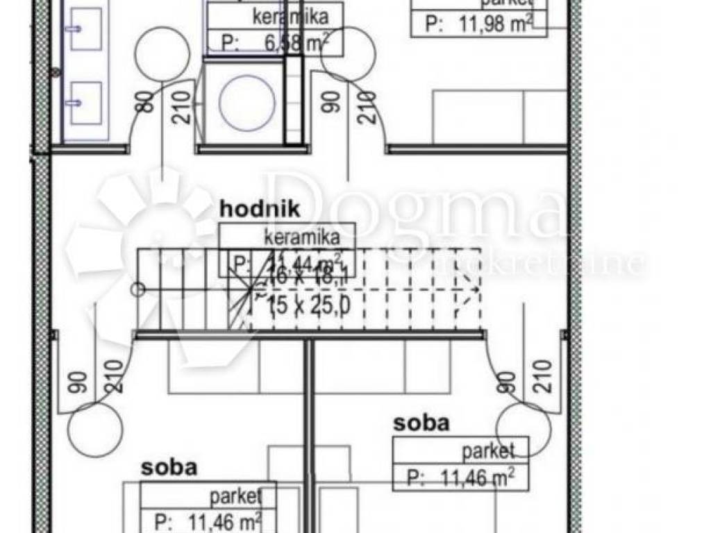
- Εμβαδόν
- 286 m²
- Δωμάτια
- 5+
- Υπνοδωμάτια
- 5
- Μπάνια
- 3+
- Μπαλκόνι
- Όχι
- Βεράντα
- Ναι
- Γκαράζ, χώροι στάθμευσης
- 1 σε πάρκινγκ/κλειστό πάρκινγκ
Πληροφορίες τιμής
- Τιμή
- € 772.600
- Τιμή ανά m²
- 2.701 €/m²
Ενεργειακή απόδοση
Έτος κατασκευής
2022Ενεργειακή πιστοποίηση
Δεν υπόκειται
Ανακαλύψτε κάθε γωνιά του ακινήτου
Πρόσθετες επιλογές