Οικοδομήσιμο οικόπεδο προς Πώληση

€ 390.000
1.239 m²

Σημείωση

Τελευταία ενημέρωση: 23/12/2025
Περιγραφή

κωδικός: 510

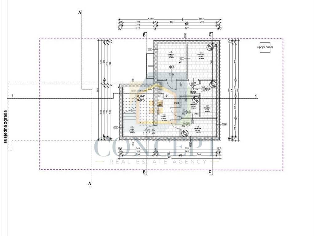
Na odličnoj lokaciji u okolici Poreča, svega 3 km od mora, prodaje se građevinsko zemljište površine 1.239 m s pravomoćnom građevinskom dozvolom za gradnju dvije zgrade s ukupno 8 stanova i dva bazena.

Svi troškovi vezani uz priključke na infrastrukturu, komunalije, doprinose i izradu dozvola su plaćeni. Građevinska bruto površina iznosi 883,16 m.

Projekt predviđa dvije zgrade:

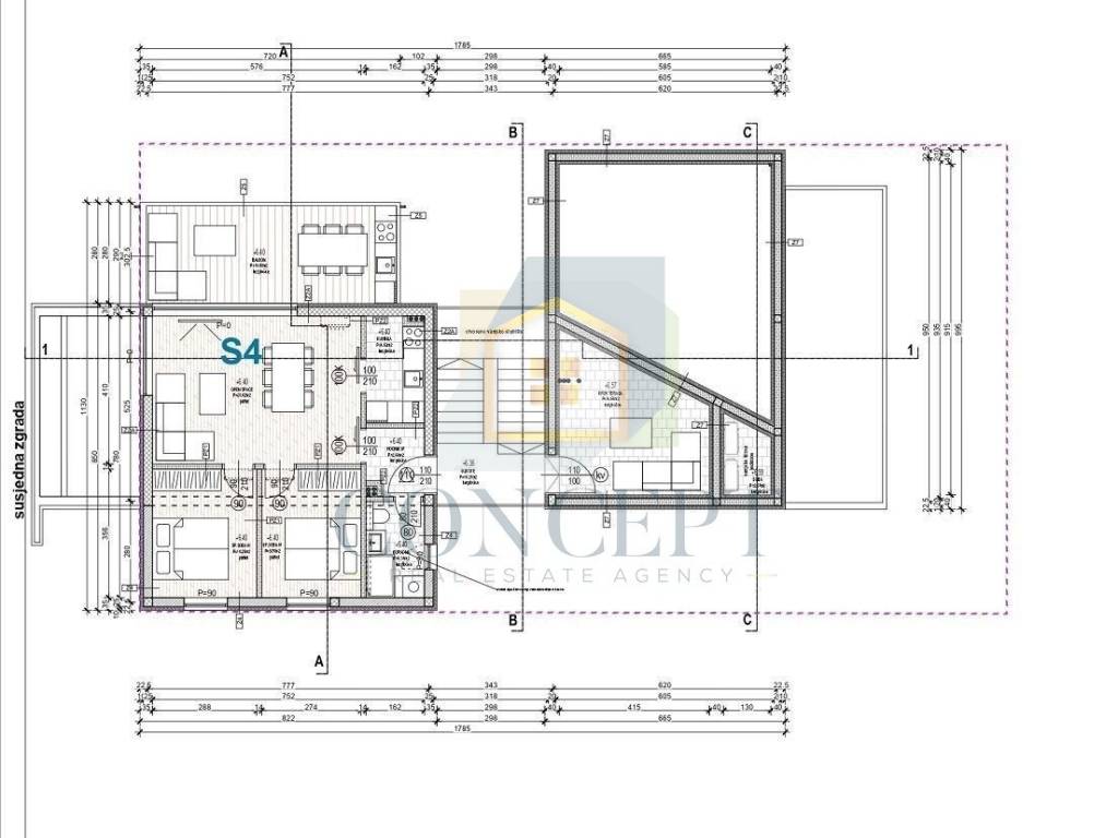
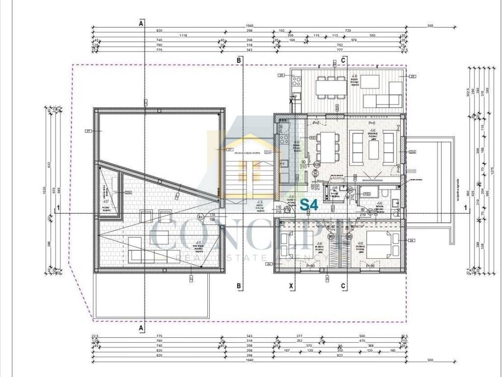
Prva zgrada sastoji se od 4 stana od približno 55 m. Stanovi imaju terase od 23 m ili 18 m, dok stan br. 4 ima i krovnu terasu. Ukupna natkrivena površina iznosi 317,99 m, nenatkrivena 144,09 m, a predviđen je i bazen površine 26,24 m.

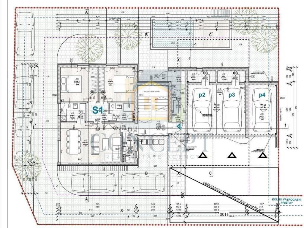
Druga zgrada sastoji se od 4 stana od približno 67 m, svaki s terasom od 18 m. Ukupna natkrivena površina iznosi 392,56 m, nenatkrivena 154,13 m, a predviđen je bazen površine 26,24 m.

Obje zgrade imaju podrume s ostavama, garaže za tri automobila, a svakom stanu pripadaju po dva parkirna mjesta. Svakoj zgradi pripada i bazen od oko 26 m, koji se mogu dodijeliti stanovima u prizemlju.

Za više informacija i dogovor oko razgleda slobodno nas kontaktirajte.
Χαρακτηριστικά
Συμβόλαιο
Πώληση
Τύπος
Οικοδομήσιμο οικόπεδο
Εμβαδόν
1.239 m²
Πληροφορίες τιμής
Τιμή
€ 390.000
Τιμή ανά m²
315 €/m²
Ανακαλύψτε κάθε γωνιά του ακινήτου
+11
Πρόσθετες επιλογές

Επικοινώνησε με τον αγγελιοδότη

Ή